Get discounts,
promos, see our
newest plans
and more!
+ 15% off any plan
See terms opt out anytime


No Thanks

Thanks for
signing up!


Use Code:

SIGNUP15

And save 15% off any plan!

Check your email for details.

CLOSE
Search Plans
     
15% Off House Plans Sitewide Ends Sunday
15% Off House Plans Sitewide Ends Sunday
15% Off House Plans Sitewide Ends Sunday

Code: SAVE15
Sale ends midnight 11/16/2025 PST

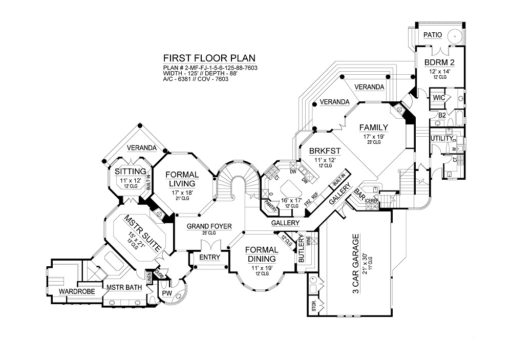
Miramar Luxury European Style House, Plan 9489

 
 

Sq Ft
6,381 FT²

Beds
5

Baths
6.5

Stories
2

Garage
3

Depth
88'

Width
125'
On Sale
$2,465.00
$2,900.00
© copyright by designer
 View All 32 Images | Photographs may reflect modified home
Sq Ft
6,381 FT²
Beds
5
Baths
6.5
Stories
2
Garage
3
Depth
88'
Width
125'
 
Click to Zoom In on Floor Plan
© copyright by designer
 
 

About This Plan

 The elegant look of this exquisite Mediterranean style house plan is perfect for those who want a house as unique and refined as they are. The 6,381 square feet and 5 bedrooms and 6.5 bath of this home means that there is no shortage of space in this plan. But even with so much space, this home is extremely personal and comfortable, while being perfect for entertaining guests. The entryway gives way to a gorgeous staircase that wraps up to the second floor. As you make your way through the home’s gallery, the space gives way to a kitchen fit for a master chef and a 2-story family room. Luxury gains a new definition with the master suite of this plan which has its own wing of the house. A massive bedroom is complemented by a sitting area, private veranda, and a master bath and walk-in closet, each room more stunning than the last. The second floor offers spaces for a study and game room, as well as a bar and 3 additional bedrooms. This house plan offers the canvas to make your dream home a reality and the space to add everything that you could ever want. 

See All Plan Options
 

FEATURES & DETAILS

Kitchen features
Butler's Pantry
Kitchen Island
Nook / Breakfast Area
Bedroom features
Primary Bdrm Main Floor
Separate Tub and Shower
Sitting Area
Foundation Options
Slab
Additional features
Dining Room
Family Room
Formal LR
Foyer
Home Office
Garage Options
Attached
Side-entry
7,603 Ft
2
Total Structure
6,381 Ft
2
Total Heated
4,138 Ft
2
1st Floor
2,243 Ft
2
2nd Floor
5
Bedrooms
6.5
Bathrooms
3
Garage
2
Stories
125' 0"
Width
88' 0"
Depth
31' 0"
Height
12' 0"
Main Floor Ceiling
11' 0"
Upper Floor Ceiling
2x6
Framing
Slab
Roof Framing
6
Primary Roof Pitch
Single
Dwelling Number

Unheated Living Space
716 Ft
2
Garage
 

Plan Package Options

 Select Plan Package
Sale: $2,465
PDF Single Build
$2,900

Digital plans emailed to you in PDF format that allows for printing copies and sharing electronically with contractors, subs, decorators, and more. This package includes a license to build the home one time.

Sale: $2,465
Sale: $3,774
5 Printed Sets
$4,440

Five Printed Sets of Residential Construction Drawings are typically 24” x 36” documents and come with a license to construct a single residence shipped to a physical address. Keep in mind PDF Plan Packages are our most popular choice which allows you to print as many copies as you need and to electronically send files to your builder, subcontractors, etc.

Sale: $3,774
Sale: $3,774
CAD + PDF Single Build
$4,440

CAD files are a complete set of construction drawings delivered electronically. They can be used for any type of modification—including major design changes and engineering—and include a release granting permission to modify the plan. Most CAD plan orders are emailed the same or next business day.
 
This package also comes with a PDF set of plans and a copyright release for making modifications and printing unlimited copies.
 
CAD files are provided in .dwg format. For details on the specific CAD program used, please refer to the PLAN DETAILS section located above the floor plan on each plan’s page.

Sale: $3,774
 Need To Reverse Plan? (Optional)
$250
Readable Reverse

Reverse house plans with readable text and dimensions 

$250
  Select Foundation Option
  Add-Ons (Optional)
INCLUDED WITH YOUR PURCHASE

Free Ground shipping in the Continental U.S.

FREE

Design consultation with the architect or designer to discuss your plan

Home Building & Product Ideas Organizer

Sub Total
$0
Free Shipping
QUESTIONS OR NEED HELP ORDERING? LIVE CHAT OR CALL US AT 866-214-2242
Plan Packages

Each set of construction documents includes detailed, dimensioned floor plans, basic electric layouts, cross sections, roof details, cabinet layouts and elevations, as well as general IRC specifications. They contain virtually all of the information required to construct your home. The typical plan set does not include any plumbing, HVAC drawings, or engineering stamps due to the wide variety of specific needs, local codes, and climatic conditions. These details and specifications are easily obtained from your builder, contractors, and/or local engineers.

BEST PRICE GUARANTEE

find the same house plan (modifications included!) and package for less on another site, show us the URL and we'll give you the difference plus an additional 5% back.

100% SATISFACTION GUARANTEE

We offer a one-time, 30-day exchange policy for unused, non-electronic plan packages in the event you aren't satisfied with your first selection.

 
 

Plan 9489  Back to plan page

Loading...