Get discounts,
promos, see our
newest plans
and more!
+ 15% off any plan
See terms opt out anytime


No Thanks

Thanks for
signing up!


Use Code:

SIGNUP15

And save 15% off any plan!

Check your email for details.

CLOSE
Search Plans
Customer Reviews
     
15% Off House Plans Sitewide Ends Sunday

Code: SAVE15
Sale ends midnight 1/11/2026 PST

Sq Ft
3,888 FT²

Beds
5

Baths
6

Stories
2

Garage
2

Depth
61'

Width
89'
From
$1,290.00
© copyright by designer
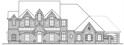
 View All 7 Images | Photographs may reflect modified home
Sq Ft
3,888 FT²
Beds
5
Baths
6
Stories
2
Garage
2
Depth
61'
Width
89'
 
Click to Zoom In on Floor Plan
© copyright by designer
 
 

About This Plan

This classic colonial luxury home will lift your spirits from the moment you enter the front door into the large foyer. Off the foyer is a large study with bath and walk-in closet with easy access to the bar. Beyond the barrel vaulted ceiling, your eyes are drawn to the family room, keeping area and kitchen, which all come together in one large living space. The family room has built-in shelves and a warming corner fireplace. An eating bar with double sink and dishwasher separates the kitchen from the keeping area and family room. From the keeping room, walk out onto the cooking patio, perfect for entertaining or family outings. The master suite offers a luxurious bath with his and hers vanities, garden tub and separate shower, and a large wardrobe with built-ins. Two family bedrooms with baths and walk-in closets on this level both have easy access to the one and two car garages, making these great teen or guest rooms. A utility room, powder room and storage area round out the first level of this luxury floor plan. The upper floor, which is considered optional or bonus space, boasts two bedrooms, two baths and a game room. 

See All Plan Options
 

FEATURES & DETAILS

Kitchen features
Country Kitchen
Kitchen Island
Nook / Breakfast Area
Bedroom features
Double Vanity Sink
Primary Bdrm Main Floor
Separate Tub and Shower
Exterior features
Covered Front Porch
Covered Rear Porch
Front Porch
Rear Porch
Foundation Options
Slab
Additional features
Bonus Room
Dining Room
Family Room
Fireplace
Foyer
Home Office
Laundry 1st Fl
Open Floor Plan
Garage Location
Front
Garage Options
Attached
Front-entry
Side-entry
5,319 Ft
2
Total Structure
3,888 Ft
2
Total Heated
2,903 Ft
2
1st Floor
985 Ft
2
2nd Floor
5
Bedrooms
6
Bathrooms
2
Garage
2
Stories
89' 0"
Width
61' 0"
Depth
35' 0"
Height
10' 0"
Main Floor Ceiling
9' 0"
Upper Floor Ceiling
2x4
Framing
Stick
Roof Framing
Single
Dwelling Number

Unheated Living Space
963 Ft
2
Garage
218 Ft
2
Porch
250 Ft
2
Patio
 

Plan Package Options

 Select Plan Package
$1,920
5 Printed Sets

Five Printed Sets of Residential Construction Drawings are typically 24” x 36” documents and come with a license to construct a single residence shipped to a physical address. Keep in mind PDF Plan Packages are our most popular choice which allows you to print as many copies as you need and to electronically send files to your builder, subcontractors, etc.

$1,920
$1,290
PDF Single Build

Digital plans emailed to you in PDF format that allows for printing copies and sharing electronically with contractors, subs, decorators, and more. This package includes a license to build the home one time.

$1,290
$1,920
CAD + PDF Single Build

This plan package is created in AutoCAD and delivered in .DWG format. CAD files are intended for use by design professionals, structural engineers, and builders to update plans for local building codes or to make revisions based on specific needs, lot requirements, and budget considerations. A complimentary PDF copy is included with this package for reference. CAD packages are delivered within 1 to 2 business days.
 
This package also comes with a copyright release for making revisions and printing unlimited copies.

For details on the specific CAD program used, please refer to the PLAN DETAILS section located above the floor plan on each plan page.

$1,920
 Need To Reverse Plan? (Optional)
$150
Readable Reverse

Reverse house plans with readable text and dimensions 

$150
  Select Foundation Option
  Add-Ons (Optional)
INCLUDED WITH YOUR PURCHASE

Free Ground shipping in the Continental U.S.

FREE

Home Building & Product Ideas Organizer

Sub Total
$0
Free Shipping
QUESTIONS OR NEED HELP ORDERING? LIVE CHAT OR CALL US AT 866-214-2242
Plan Packages

Each set of construction documents includes detailed, dimensioned floor plans, basic electric layouts, cross sections, roof details, cabinet layouts and elevations, as well as general IRC specifications. They contain virtually all of the information required to construct your home. The typical plan set does not include any plumbing, HVAC drawings, or engineering stamps due to the wide variety of specific needs, local codes, and climatic conditions. These details and specifications are easily obtained from your builder, contractors, and/or local engineers.

BEST PRICE GUARANTEE

Find the same house plan (modifications included!) and package for less on another site, show us the URL and we'll give you the difference plus an additional 5% back.

100% SATISFACTION GUARANTEE

We offer a one-time, 30-day exchange policy for unused, printed plan packages in the event you aren't satisfied with your first selection. Exchanges are subject to a 20% restocking fee.

 
 

Plan 4847  Back to plan page

Loading...