Get discounts,
promos, see our
newest plans
and more!
+ 15% off any plan
See terms opt out anytime


No Thanks

Thanks for
signing up!


Use Code:

SIGNUP15

And save 15% off any plan!

Check your email for details.

CLOSE
Search Plans
Customer Reviews
     

Torrey Pines Beautiful Southwest Style House, Plan 4293

 
 

Sq Ft
7,138 FT²

Beds
6

Baths
5.5

Stories
2

Garage
4

Depth
98'

Width
136'
From
$3,400.00
© copyright by designer
 View All 52 Images | Photographs may reflect modified home
Sq Ft
7,138 FT²
Beds
6
Baths
5.5
Stories
2
Garage
4
Depth
98'
Width
136'
 
Click to Zoom In on Floor Plan
© copyright by designer
 
 

About This Plan

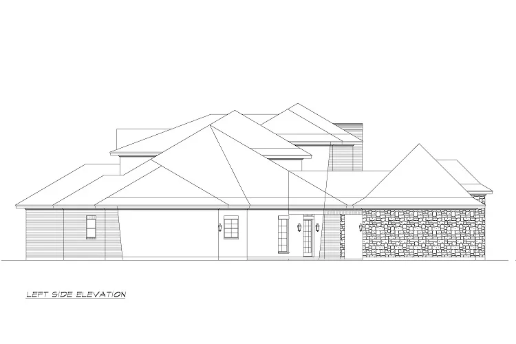
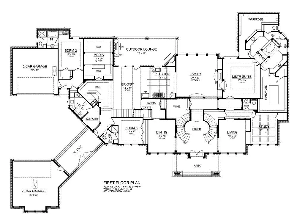
This sprawling Southwestern mansion home plan combines elegance and luxury inside and out. The exterior stone
façade is highlighted by multiple roof levels and stylish windows with an arched, two-story covered entry,
flocked with warming coach lights and enlightening sidelites. The stunning grand foyer opens into a sweeping
double curved staircase that ascends to the second floor, and is ornately decorated in wrought iron and wooden
railings with extra wide steps. As the stairs sweep upwards, the view from below offers a look into the majestic
circular landing above. The foyer is flanked by the elegant dining room and formal living room, each with arched
entranceways and floor-to-ceiling windows. The grand foyer sets the stage for drama that unfolds as one nears
the expansive two-story great room with its dramatic and stunning fireplace of stone, a wall of windows, and
built-ins. Adjacent to the foyer is a wine room that leads to the pantry and gourmet kitchen. Twelve-foot
ceilings in the breakfast room and kitchen offer an open design and state-of-the-art appliances paired with
traditional cabinetry and lodge-inspired appointments prove a great combination in this hard-working cooking
space, ideal for entertaining. Any gourmet chef would love the free-standing, center island, with plenty of
storage space below. Access to the outdoor lounge, warmed by a wood-burning fireplace with grille and a
refrigerator, accommodates both casual mealtimes and intimate conversations. Natural flow to and from these rooms
allows easy access to the backyard, making this the perfect perch for guests. The left wing of the elegant floor
plan holds the warm study with its 12-foot coffered ceiling and storage closet. Behind the study is the
magnificent master suite, compete with a 14-foot triple trey ceiling, warming fireplace, and luxurious master
bath that includes a his and hers vanity and a center tile luxury Jett bath tub embellished by massive pillars
and marble. There is also a separate glass shower and two large wardrobes with built-ins. The right wing of
this majestic home plan houses two family bedrooms, each with full baths and walk-in closets. These rooms are
separated by a big utility room, exercise room and bar. The bar offers access to a media room with a 12-foot
vaulted ceiling. There are two, two-car garages with workspace and from the front garage, a portico that leads
into the home between the two family bedrooms. A powder room near the study and master suite completes this
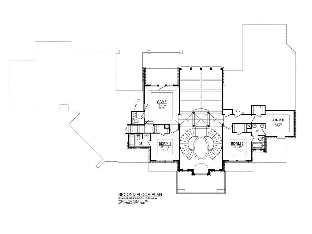
level of this home plan. Upstairs on either side of the curved staircase are two family bedrooms, each with trey
ceilings, walk-in closets, and full baths. The bedroom to the right shares a Jack-and-Jill bathroom with the
sixth bedroom, which also has a walk-in closet. A large game room with outdoor access to the upper covered
lounge and powder room complete this level of this luxury Southwestern home plan. 

See All Plan Options
 

FEATURES & DETAILS

Kitchen features
Butler's Pantry
Kitchen Island
Nook / Breakfast Area
Peninsula / Eating Bar
Walk-in Pantry
Bedroom features
Double Vanity Sink
His and Hers Primary Closets
Primary Bdrm Main Floor
Separate Tub and Shower
Split Bedrooms
Walk-in Closet
Exterior features
Breezeway
Covered Front Porch
Covered Rear Porch
Front Porch
Rear Porch
Foundation Options
Slab
Additional features
2 Story Volume
Dining Room
Exercise Room
Family Room
Fireplace
Formal LR
Foyer
Home Office
Laundry 1st Fl
Library/Media Rm
Open Floor Plan
Storage Space
Wine Cellar
Garage Location
Front
Garage Options
Attached
Front-entry
9,340 Ft
2
Total Structure
7,138 Ft
2
Total Heated
5,565 Ft
2
1st Floor
1,573 Ft
2
2nd Floor
6
Bedrooms
5.5
Bathrooms
4
Garage
2
Stories
136' 0"
Width
98' 0"
Depth
34' 0"
Height
12' 0"
Main Floor Ceiling
9' 0"
Upper Floor Ceiling
2x6
Framing
Slab
Roof Framing
7
Primary Roof Pitch
12
Secondary Roof Pitch
Single
Dwelling Number

Unheated Living Space
1,172 Ft
2
Garage
 

Plan Package Options

 Select Plan Package
$3,400
PDF Single Build

Digital plans emailed to you in PDF format that allows for printing copies and sharing electronically with contractors, subs, decorators, and more. This package includes a license to build the home one time.

$3,400
$5,120
CAD + PDF Single Build

CAD files are a complete set of construction drawings delivered electronically. They can be used for any type of modification—including major design changes and engineering—and include a release granting permission to modify the plan. Most CAD plan orders are emailed the same or next business day.
 
This package also comes with a PDF set of plans and a copyright release for making modifications and printing unlimited copies.
 
CAD files are provided in .dwg format. For details on the specific CAD program used, please refer to the PLAN DETAILS section located above the floor plan on each plan’s page.

$5,120
$5,120
5 Printed Sets

Five Printed Sets of Residential Construction Drawings are typically 24” x 36” documents and come with a license to construct a single residence shipped to a physical address. Keep in mind PDF Plan Packages are our most popular choice which allows you to print as many copies as you need and to electronically send files to your builder, subcontractors, etc.

$5,120
 Need To Reverse Plan? (Optional)
$250
Readable Reverse

Reverse house plans with readable text and dimensions 

$250
  Select Foundation Option
  Add-Ons (Optional)
INCLUDED WITH YOUR PURCHASE

Free Ground shipping in the Continental U.S.

FREE

Design consultation with the architect or designer to discuss your plan

Home Building & Product Ideas Organizer

Sub Total
$0
Free Shipping
QUESTIONS OR NEED HELP ORDERING? LIVE CHAT OR CALL US AT 866-214-2242
Plan Packages

Each set of construction documents includes detailed, dimensioned floor plans, basic electric layouts, cross sections, roof details, cabinet layouts and elevations, as well as general IRC specifications. They contain virtually all of the information required to construct your home. The typical plan set does not include any plumbing, HVAC drawings, or engineering stamps due to the wide variety of specific needs, local codes, and climatic conditions. These details and specifications are easily obtained from your builder, contractors, and/or local engineers.

BEST PRICE GUARANTEE

find the same house plan (modifications included!) and package for less on another site, show us the URL and we'll give you the difference plus an additional 5% back.

100% SATISFACTION GUARANTEE

We offer a one-time, 30-day exchange policy for unused, non-electronic plan packages in the event you aren't satisfied with your first selection.

 
 

Plan 4293  Back to plan page

Loading...