Get discounts,
promos, see our
newest plans
and more!
+ 15% off any plan
See terms opt out anytime


No Thanks

Thanks for
signing up!


Use Code:

SIGNUP15

And save 15% off any plan!

Check your email for details.

CLOSE
Search Plans
Customer Reviews
     
15% off ALL House Plans Sitewide
15% off ALL House Plans Sitewide
15% off ALL House Plans Sitewide

Code: MOM15
Sale ends midnight 5/11/2026 PST

Sq Ft
1,850 FT²

Beds
3

Baths
2.5

Stories
2

Garage
2

Depth
54' 6"

Width
40'
On Sale
$1,384.65
$1,629.00
© copyright by designer
 View All 4 Images | Photographs may reflect modified home
Sq Ft
1,850 FT²
Beds
3
Baths
2.5
Stories
2
Garage
2
Depth
54' 6"
Width
40'
 
Click to Zoom In on Floor Plan
© copyright by designer
 
 

About This Plan

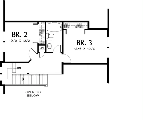
This cozy home enjoys a full slate of amenities. The formal foyer is anchored by a grand staircase. Vaulted ceilings add dimension to the great room, dining room/study, and the master bedroom. Windows flank the direct-vent gas fireplace in the great room. A little vestibule protects the privacy of the master suite. Storage space is abundant, from the walk-in kitchen pantry to generously sized bedroom closets. Additional storage space is tucked beneath the open staircase, accessible from the dining room/study. The attic is accessible from bedroom three.

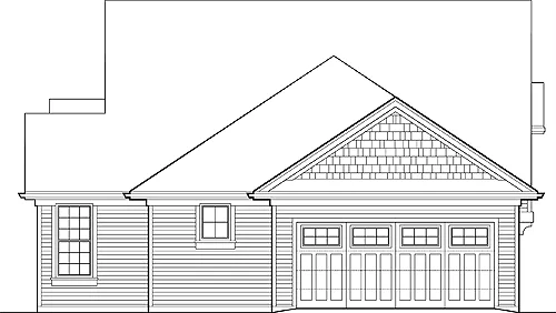
Entry from the garage is through a mud room with laundry facilities. This utility area includes a powder room and a coat closet for tidy consignment of the family's outdoor clothing, backpacks, and briefcases. There's another coat closet near the front foyer. 


See All Plan Options
 

FEATURES & DETAILS

Kitchen features
Kitchen Island
Nook / Breakfast Area
Walk-in Pantry
Bedroom features
Double Vanity Sink
Primary Bdrm Main Floor
Split Bedrooms
Walk-in Closet
Exterior features
Front Porch
Foundation Options
Basement
Crawlspace
Slab
Lot Options
Suited for narrow lot
Additional features
Dining Room
Fireplace
Foyer
Great Room
Home Office
Laundry 1st Fl
Open Floor Plan
Storage Space
Vaulted Ceilings
Garage Location
Rear
Garage Options
Attached
Rear-entry
1,850 Ft
2
Total Heated
1,348 Ft
2
1st Floor
502 Ft
2
2nd Floor
3
Bedrooms
2.5
Bathrooms
2
Garage
2
Stories
40' 0"
Width
54' 6"
Depth
25' 0"
Height
Varies' 0"
Main Floor Ceiling
8' 0"
Upper Floor Ceiling
2x6
Framing
Stick
Roof Framing
8/12
Primary Roof Pitch
Single
Dwelling Number
None
Bonus Access

Unheated Living Space
498 Ft
2
Garage
 

Plan Package Options

 Select Plan Package
 Need To Reverse Plan? (Optional)
  Select Foundation Option
  Add-Ons (Optional)
INCLUDED WITH YOUR PURCHASE

Free Ground shipping in the U.S.

FREE

Home Building & Product Ideas Organizer

Sub Total
$0
Free Shipping
QUESTIONS OR NEED HELP ORDERING? LIVE CHAT OR CALL US AT 866-214-2242
Plan Packages

Each set of construction documents typically includes detailed, dimensioned floor plans, basic electric layouts, cross sections, roof details, cabinet layouts, and elevations, as well as general IRC specifications. Please refer to the ARCHITECT or DESIGNER’S PLAN DETAILS link above the floor plan on any plan page to determine the specific details for each plan. Our house plans contain virtually all of the information required to construct your home. The typical plan set does not include plumbing, HVAC drawings, or engineering stamps due to the wide variety of specific needs, local codes, and climatic conditions. These details and specifications are easily obtained from your builder, contractors, and/or local engineers.

BEST PRICE GUARANTEE

Find the same house plan (modifications included!) and package for less on another site, show us the URL and we'll give you the difference plus an additional 10% back.

100% SATISFACTION GUARANTEE

We offer a one-time, 30-day exchange policy for unused, printed plan packages in the event you aren't satisfied with your first selection.

 
 

Plan 2531  Back to plan page

Loading...