Get discounts,
promos, see our
newest plans
and more!
+ 15% off any plan
See terms opt out anytime


No Thanks

Thanks for
signing up!


Use Code:

SIGNUP15

And save 15% off any plan!

Check your email for details.

CLOSE
Search Plans
     
20% Off House Plans Sitewide Ends Tuesday
20% Off House Plans Sitewide Ends Tuesday
20% Off House Plans Sitewide Ends Tuesday

Code: VET20
Sale ends midnight 11/11/2025 PST

Sq Ft
1,930 FT²

Beds
3

Baths
2.5

Stories
2

Garage
2

Depth
56'

Width
40'
On Sale
$1,226.40
$1,533.00
© copyright by designer
 View All 4 Images | Photographs may reflect modified home
Sq Ft
1,930 FT²
Beds
3
Baths
2.5
Stories
2
Garage
2
Depth
56'
Width
40'
 
Click to Zoom In on Floor Plan
© copyright by designer
 
 

About This Plan

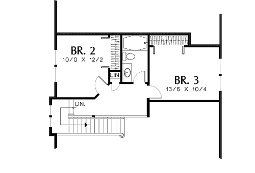
Stone detailing on the facade of this home leaves a lasting impression and complements multi-pane windows to either side. The recessed entry opens to a vaulted dining room (or make it a study) on the left and an open great room on the right. The great room has a fireplace and sports decorative column detailing that separates it from the hallway, and kitchen/nook area. An island in the kitchen contains a double sink and is just across from a walk-in pantry. The split bedroom plan puts the vaulted master suite on the first floor. It has a walk-in closet and bath with separate tub and shower and dual sinks. Family bedrooms are on the upper level and share a full bath. The service entry to the garage contains space for a washer and dryer and a laundry tub. A half-bath and broom closet are nearby. 

See All Plan Options
 

FEATURES & DETAILS

Kitchen features
Kitchen Island
Nook / Breakfast Area
Walk-in Pantry
Bedroom features
Double Vanity Sink
Primary Bdrm Main Floor
Separate Tub and Shower
Split Bedrooms
Walk-in Closet
Exterior features
Front Porch
Foundation Options
Basement
Crawlspace
Slab
Lot Options
Suited for narrow lot
Additional features
Dining Room
Fireplace
Foyer
Great Room
Home Office
Laundry 1st Fl
Open Floor Plan
Storage Space
Vaulted Ceilings
Garage Location
Rear
Garage Options
Attached
1,930 Ft
2
Total Heated
1,428 Ft
2
1st Floor
502 Ft
2
2nd Floor
3
Bedrooms
2.5
Bathrooms
2
Garage
2
Stories
40' 0"
Width
56' 0"
Depth
25' 0"
Height
Varies' 0"
Main Floor Ceiling
8' 0"
Upper Floor Ceiling
2x6
Framing
Stick
Roof Framing
8/12
Primary Roof Pitch
Single
Dwelling Number
None
Bonus Access

Unheated Living Space
440 Ft
2
Garage
 

Plan Package Options

 Select Plan Package
Sale: $1,226
PDF Single Build
$1,533

Digital plans emailed to you in PDF format that allows for printing copies and sharing electronically with contractors, subs, decorators, and more. This package includes a license to build the home one time.

Sale: $1,226
Sale: $1,466
5 Printed Sets + PDF
$1,833

Digital plan emailed to you in PDF format that allows for printing copies on a home printer or local print shop and sharing with contractors, subs, decorators, and more. PLUS five printed sets shipped and delivered 3-5 business days.

Sale: $1,466
Sale: $2,453
CAD + PDF Single Build
$3,066

CAD files are a complete set of construction drawings delivered electronically. They can be used for any type of modification—including major design changes and engineering—and include a release granting permission to modify the plan. Most CAD plan orders are emailed the same or next business day.
 
This package also comes with a PDF set of plans and a copyright release for making modifications and printing unlimited copies.
 
CAD files are provided in .dwg format. For details on the specific CAD program used, please refer to the PLAN DETAILS section located above the floor plan on each plan’s page.

Sale: $2,453
 Need To Reverse Plan? (Optional)
$250
Readable Reverse

Reverse house plans with readable text and dimensions 

$250
  Select Foundation Option
  Add-Ons (Optional)
INCLUDED WITH YOUR PURCHASE

Free Ground shipping in the Continental U.S.

FREE

Design consultation with the architect or designer to discuss your plan

Home Building & Product Ideas Organizer

Sub Total
$0
Free Shipping
QUESTIONS OR NEED HELP ORDERING? LIVE CHAT OR CALL US AT 866-214-2242
Plan Packages

Each set of construction documents includes detailed, dimensioned floor plans, basic electric layouts, cross sections, roof details, cabinet layouts and elevations, as well as general IRC specifications. They contain virtually all of the information required to construct your home. The typical plan set does not include any plumbing, HVAC drawings, or engineering stamps due to the wide variety of specific needs, local codes, and climatic conditions. These details and specifications are easily obtained from your builder, contractors, and/or local engineers.

BEST PRICE GUARANTEE

find the same house plan (modifications included!) and package for less on another site, show us the URL and we'll give you the difference plus an additional 5% back.

100% SATISFACTION GUARANTEE

We offer a one-time, 30-day exchange policy for unused, non-electronic plan packages in the event you aren't satisfied with your first selection.

 
 

Plan 2533  Back to plan page

Loading...