Get discounts,
promos, see our
newest plans
and more!
+ 15% off any plan
See terms opt out anytime


No Thanks

Thanks for
signing up!


Use Code:

SIGNUP15

And save 15% off any plan!

Check your email for details.

CLOSE
Search Plans
Customer Reviews
     
15% off ALL House Plans Sitewide
15% off ALL House Plans Sitewide
15% off ALL House Plans Sitewide

Code: HONOR
Sale ends midnight 5/31/2026 PST

Sq Ft
1,430 FT²

Beds
2

Baths
2

Stories
2

Garage
1

Depth
54'

Width
17'
On Sale
$1,231.65
$1,449.00
© copyright by designer
 View All 5 Images | Photographs may reflect modified home
Sq Ft
1,430 FT²
Beds
2
Baths
2
Stories
2
Garage
1
Depth
54'
Width
17'
 
Click to Zoom In on Floor Plan
© copyright by designer
 
 

About This Plan

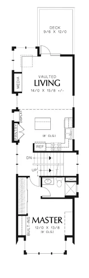
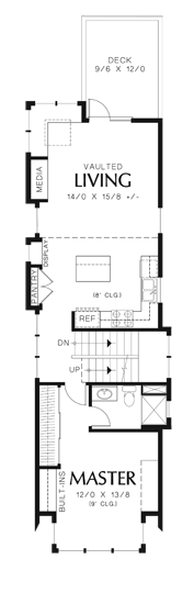
For an in-fill lot, a lake site or seaside retreat, this plan offers three floors of living and a very narrow footprint to make it conform to your needs. A high-pitched roofline accommodates an enchanting dormer window; a covered porch screens the setback entry.

The lower floor at garage level holds a bedroom with full bath and laundry alcove. Built-ins include a desk and drawers along one wall. Outdoor access leads to convenient storage for lawn equipment and other essentials.

The main level upstairs holds a vaulted living room with built-in media center and L-shaped booth seating for dining, an island kitchen with double-door pantry and display shelves, and the master suite. Look for built-ins and a private bath in the master suite. An outdoor deck lies just beyond the living area. A cozy vaulted study loft on the loft floor is graced by a huge built-in bookshelf.
 


See All Plan Options
 

FEATURES & DETAILS

Kitchen features
Country Kitchen
Kitchen Island
Walk-in Pantry
Bedroom features
2 Primary Suites
Guest Suite
Primary Bdrm Upstairs
Split Bedrooms
Exterior features
Covered Front Porch
Front Porch
Foundation Options
Basement
Crawlspace
Slab
Lot Options
Suited for narrow lot
Additional features
2 Story Volume
Bonus Room
Fireplace
Foyer
Great Room
Home Office
In-law Suite
Inverted Living
Laundry 1st Fl
Loft / Balcony
Open Floor Plan
Storage Space
Vaulted Ceilings
Garage Location
Front
Garage Options
Attached
Front-entry
1,430 Ft
2
Total Heated
436 Ft
2
1st Floor
792 Ft
2
2nd Floor
2
Bedrooms
2
Bathrooms
1
Garage
2
Stories
17' 0"
Width
54' 0"
Depth
31' 4"
Height
8' 0"
Main Floor Ceiling
Varies' 0"
Upper Floor Ceiling
2x6
Framing
Stick
Roof Framing
8/12
Primary Roof Pitch
Single
Dwelling Number
2nd Floor
Bonus Access

Unheated Living Space
238 Ft
2
Garage
202 Ft
2
Bonus Room
 

Plan Package Options

 Select Plan Package
 Need To Reverse Plan? (Optional)
  Select Foundation Option
  Add-Ons (Optional)
INCLUDED WITH YOUR PURCHASE

Free Ground shipping in the U.S.

FREE

Home Building & Product Ideas Organizer

Sub Total
$0
Free Shipping
QUESTIONS OR NEED HELP ORDERING? LIVE CHAT OR CALL US AT 866-214-2242
Plan Packages

Each set of construction documents typically includes detailed, dimensioned floor plans, basic electric layouts, cross sections, roof details, cabinet layouts, and elevations, as well as general IRC specifications. Please refer to the ARCHITECT or DESIGNER’S PLAN DETAILS link above the floor plan on any plan page to determine the specific details for each plan. Our house plans contain virtually all of the information required to construct your home. The typical plan set does not include plumbing, HVAC drawings, or engineering stamps due to the wide variety of specific needs, local codes, and climatic conditions. These details and specifications are easily obtained from your builder, contractors, and/or local engineers.

BEST PRICE GUARANTEE

Find the same house plan (modifications included!) and package for less on another site, show us the URL and we'll give you the difference plus an additional 10% back.

100% SATISFACTION GUARANTEE

We offer a one-time, 30-day exchange policy for unused, printed plan packages in the event you aren't satisfied with your first selection.

 
 

Plan 5941  Back to plan page

Loading...