Get discounts,
promos, see our
newest plans
and more!
+ 15% off any plan
See terms opt out anytime


No Thanks

Thanks for
signing up!


Use Code:

SIGNUP15

And save 15% off any plan!

Check your email for details.

CLOSE
Search Plans
Customer Reviews
     
15% off ALL House Plans Sitewide
15% off ALL House Plans Sitewide
15% off ALL House Plans Sitewide

Code: HONOR
Sale ends midnight 5/31/2026 PST

Copper Hill 2 Story Craftsman Style House, Plan 10240

 
 

Sq Ft
5,059 FT²

Beds
5

Baths
4.5

Stories
2

Garage
3

Depth
57'

Width
92'
On Sale
$1,785.00
$2,100.00
© copyright by designer
 View All 18 Images | Photographs may reflect modified home
Sq Ft
5,059 FT²
Beds
5
Baths
4.5
Stories
2
Garage
3
Depth
57'
Width
92'
 
Click to Zoom In on Floor Plan
© copyright by designer
 
 

About This Plan

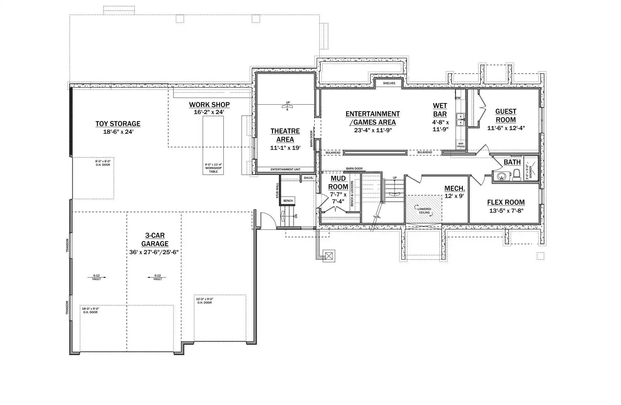
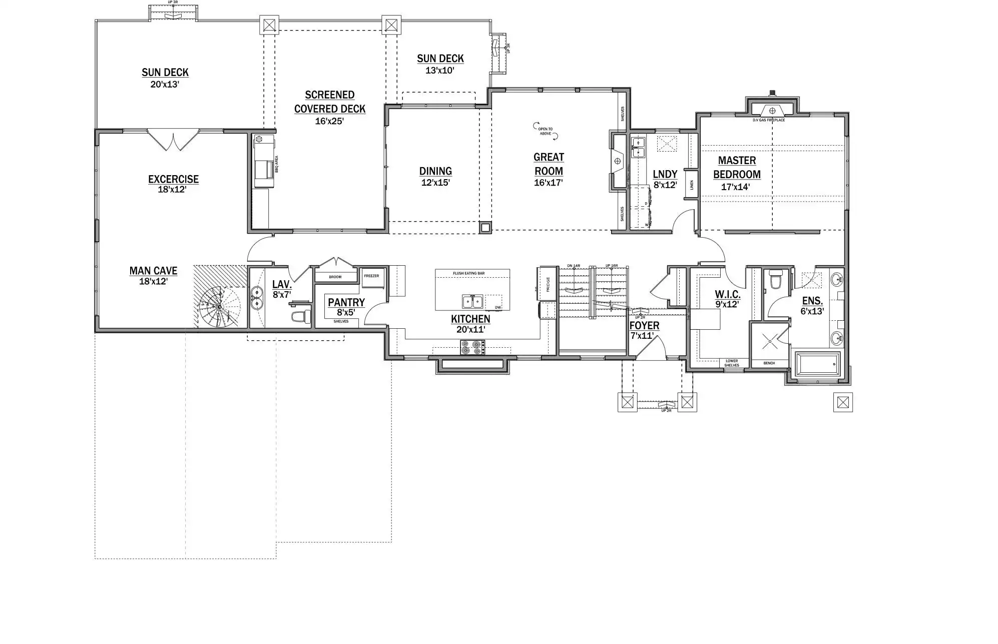
The Copper Hill house plan is a stunning modern mountain retreat, featuring timber and stone accents that enhance its rugged Craftsman charm. At its heart, a soaring two-story great room seamlessly connects to the dining area and gourmet kitchen, with access to a screened covered deck with an outdoor kitchen and two sun decks for effortless entertaining. The main-level primary suite is a private sanctuary with a fireplace and serene views, while a secluded "man cave" offers direct deck access and a spiral staircase to the lower and upper levels. Upstairs, three bedrooms, an office, and a bonus room with an open deck provide ample living space. The lower level is built for recreation, featuring a theater, game room, an additional bedroom, and a flex room, along with a spacious three-car garage that offers plenty of storage. Thoughtfully designed for those who love the outdoors and modern luxury, Copper Hill blends timeless craftsmanship with breathtaking mountain living. 

See All Plan Options
 

FEATURES & DETAILS

Kitchen features
Kitchen Island
Peninsula / Eating Bar
U-Shaped
Walk-in Pantry
Bedroom features
Double Vanity Sink
Primary Bdrm Main Floor
Separate Tub and Shower
Split Bedrooms
Walk-in Closet
Exterior features
Covered Front Porch
Covered Rear Porch
Deck
Outdoor Kitchen
Outdoor Living Space
Screened Porch/Sunroom
Lot Options
Suited for sloping lot
Suited for view lot
Additional features
Bonus Room
Dining Room
Exercise Room
Fireplace
Foyer
Great Room
Home Office
Laundry 1st Fl
Mud Room
Open Floor Plan
Rec Room
Storage Space
Vaulted Ceilings
Workshop
Garage Location
Under
Garage Options
Attached
Drive-under
Front-entry
5,059 Ft
2
Total Heated
2,450 Ft
2
1st Floor
1,456 Ft
2
2nd Floor
1,153 Ft
2
Lower Floor
5
Bedrooms
4.5
Bathrooms
3
Garage
2
Stories
92' 0"
Width
57' 0"
Depth
41' 11"
Height
9' 1"
Main Floor Ceiling
9' 1"
Upper Floor Ceiling
8' 0"
Lower Floor Ceiling
2x6
Framing
Truss
Roof Framing
12/12
Primary Roof Pitch
Single
Dwelling Number

Unheated Living Space
1,959 Ft
2
Garage
410 Ft
2
Deck
 

Plan Package Options

 Select Plan Package
 Need To Reverse Plan? (Optional)
  Select Foundation Option
  Add-Ons (Optional)
INCLUDED WITH YOUR PURCHASE

Free Ground shipping in the U.S.

FREE

Home Building & Product Ideas Organizer

Sub Total
$0
Free Shipping
QUESTIONS OR NEED HELP ORDERING? LIVE CHAT OR CALL US AT 866-214-2242
Plan Packages

Each set of construction documents typically includes detailed, dimensioned floor plans, basic electric layouts, cross sections, roof details, cabinet layouts, and elevations, as well as general IRC specifications. Please refer to the ARCHITECT or DESIGNER’S PLAN DETAILS link above the floor plan on any plan page to determine the specific details for each plan. Our house plans contain virtually all of the information required to construct your home. The typical plan set does not include plumbing, HVAC drawings, or engineering stamps due to the wide variety of specific needs, local codes, and climatic conditions. These details and specifications are easily obtained from your builder, contractors, and/or local engineers.

BEST PRICE GUARANTEE

Find the same house plan (modifications included!) and package for less on another site, show us the URL and we'll give you the difference plus an additional 10% back.

100% SATISFACTION GUARANTEE

We offer a one-time, 30-day exchange policy for unused, printed plan packages in the event you aren't satisfied with your first selection.

 
 

Plan 10240  Back to plan page

Loading...