Get discounts,
promos, see our
newest plans
and more!
+ 15% off any plan
See terms opt out anytime


No Thanks

Thanks for
signing up!


Use Code:

SIGNUP15

And save 15% off any plan!

Check your email for details.

CLOSE
Search Plans
Customer Reviews
     
15% Off House Plans Sitewide Ends Sunday
15% Off House Plans Sitewide Ends Sunday
15% Off House Plans Sitewide Ends Sunday

Code: SAVE15
Sale ends midnight 1/18/2026 PST

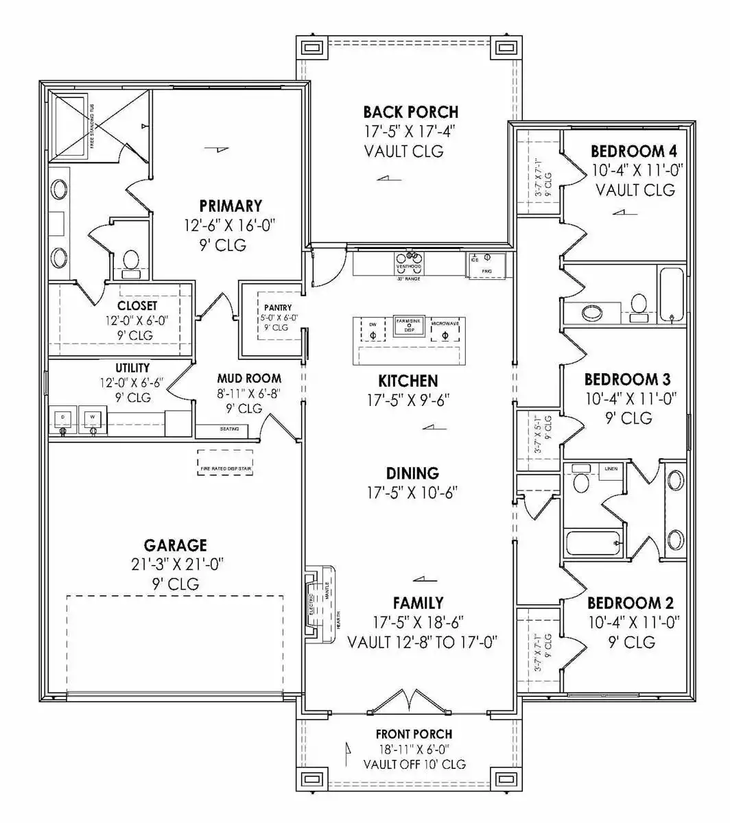
Phoenix | Exclusive 4 Bedroom Modern Ranch House, Plan 10153

 
 

Sq Ft
2,047 FT²

Beds
4

Baths
3

Stories
1

Garage
2

Depth
63' 4"

Width
55'
On Sale
$1,258.00
$1,480.00
EXCLUSIVE PLAN
© copyright by designer
 View All 27 Images | Photographs may reflect modified home | Video Tour
Sq Ft
2,047 FT²
Beds
4
Baths
3
Stories
1
Garage
2
Depth
63' 4"
Width
55'
 

 
Click to Zoom In on Floor Plan
© copyright by designer
 
 

About This Plan

Are you looking for dramatic modern ranch with angled rooflines? Give House Plan 10153 a try! With its relatively simple shape, this design is more affordable to build than many others in this category. The 2,047-square-foot interior is also perfectly suited to a growing family with four bedrooms and three bathrooms. Step inside the French door entry and the open-concept great room spreads back from the living space in front, to the dining area, to the island kitchen, all beneath a gorgeous vaulted ceiling with high windows on both ends. The bedrooms are split across the common areas, with the primary suite privately placed behind the two-car garage with easy access to the mudroom and laundry room. The primary bedroom boasts a vaulted ceiling and high windows while the luxe bathroom features a dual vanity, a Euro-style shower and tub, a toilet closet, and a walk-in closet. Across the house, two bedrooms share a divided Jack-and-Jill bath while the final bedroom is placed beside a full hall bath. This final bedroom is vaulted as well! Finally, the back covered porch has a vaulted ceiling that follows the slope of the great room for a seamless feel between indoors and out! 

If you love House Plan 10153 and would like to see it with a vaulted ceiling in only the living area, take a look at the that inspired this exclusive design—House Plan 9225.  

See All Plan Options
 

FEATURES & DETAILS

Kitchen features
Kitchen Island
Walk-in Pantry
Bedroom features
Double Vanity Sink
Primary Bdrm Main Floor
Separate Tub and Shower
Split Bedrooms
Walk-in Closet
Exterior features
Covered Front Porch
Covered Rear Porch
Lot Options
Suited for narrow lot
Suited for view lot
Additional features
Dining Room
Family Room
Fireplace
Laundry 1st Fl
Mud Room
Open Floor Plan
Vaulted Ceilings
Vaulted Great Room/Living
Vaulted Kitchen
Vaulted Primary
Garage Location
Front
Garage Options
Attached
Front-entry
2,927 Ft
2
Total Structure
2,047 Ft
2
Total Heated
4
Bedrooms
3
Bathrooms
2
Garage
1
Stories
55' 0"
Width
63' 4"
Depth
18' 6"
Height
9' 0"
Main Floor Ceiling
12' 8"
Living/Great Room Ceiling
9' 0"
Primary Ceiling
2x4
Framing
Stick
Roof Framing
3
Primary Roof Pitch
1
Secondary Roof Pitch
Single
Dwelling Number
None
Bonus Access

Unheated Living Space
467 Ft
2
Garage
114 Ft
2
Front Porch
299 Ft
2
Rear Porch
 

Plan Package Options

 Select Plan Package
 Need To Reverse Plan? (Optional)
  Select Foundation Option
  Add-Ons (Optional)
INCLUDED WITH YOUR PURCHASE

Free Ground shipping in the Continental U.S.

FREE

Home Building & Product Ideas Organizer

Sub Total
$0
Free Shipping
QUESTIONS OR NEED HELP ORDERING? LIVE CHAT OR CALL US AT 866-214-2242
Plan Packages

Each set of construction documents includes detailed, dimensioned floor plans, basic electric layouts, cross sections, roof details, cabinet layouts and elevations, as well as general IRC specifications. They contain virtually all of the information required to construct your home. The typical plan set does not include any plumbing, HVAC drawings, or engineering stamps due to the wide variety of specific needs, local codes, and climatic conditions. These details and specifications are easily obtained from your builder, contractors, and/or local engineers.

BEST PRICE GUARANTEE

Find the same house plan (modifications included!) and package for less on another site, show us the URL and we'll give you the difference plus an additional 10% back.

100% SATISFACTION GUARANTEE

We offer a one-time, 30-day exchange policy for unused, printed plan packages in the event you aren't satisfied with your first selection. Exchanges are subject to a 20% restocking fee.

 
 
 

EXPLORE ARCHITECT PREFERRED PRODUCTS

Hover over arrows for product info!
 

Plan 10153  Back to plan page

Loading...