Get discounts,
promos, see our
newest plans
and more!
+ 15% off any plan
See terms opt out anytime


No Thanks

Thanks for
signing up!


Use Code:

SIGNUP15

And save 15% off any plan!

Check your email for details.

CLOSE
Search Plans
Customer Reviews
     
America’s Top Home Plans
Trusted House Plans From America's Leading Architects & Designers

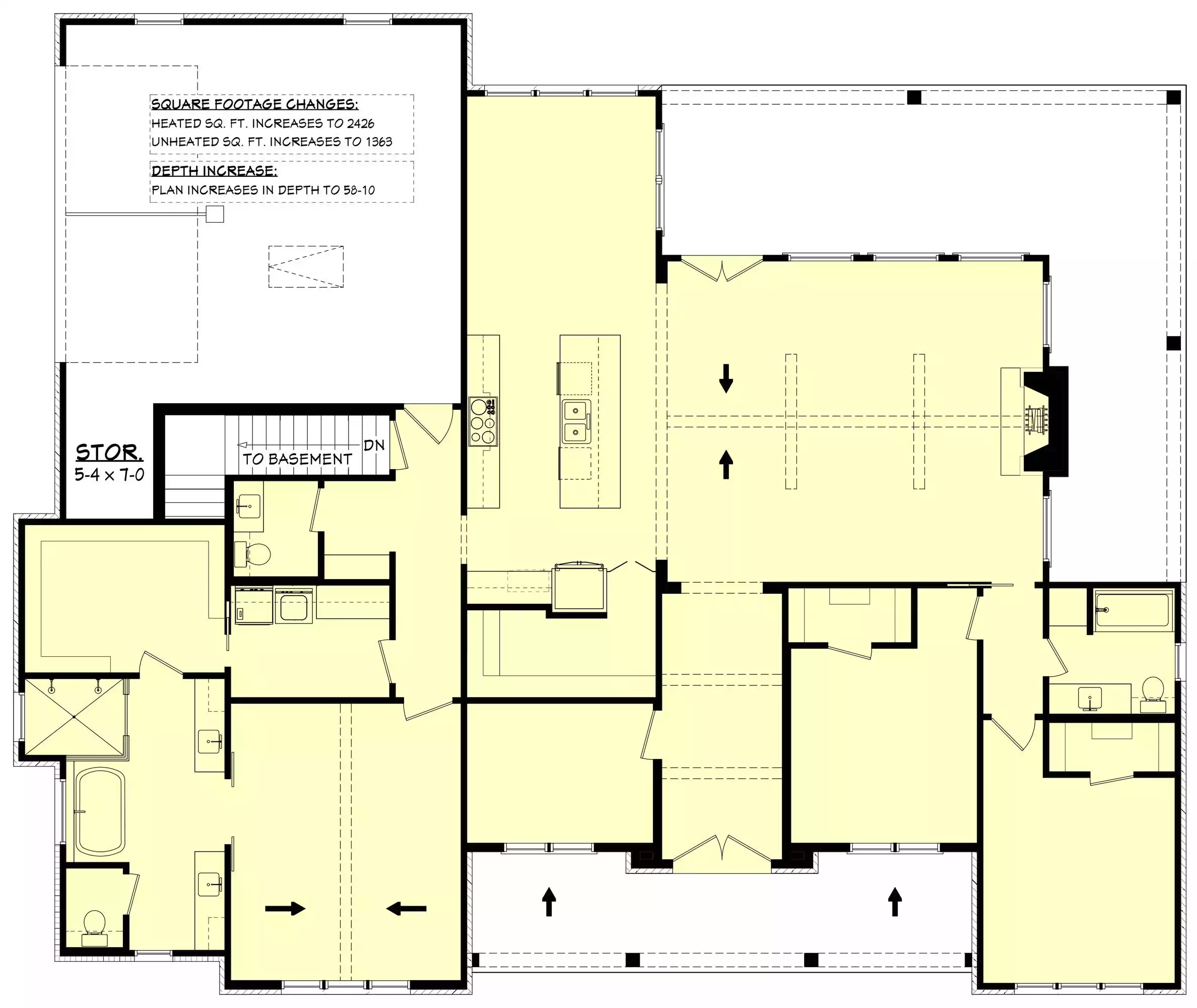
Fairgrounds Single Story Modern Farmhouse Style House, Plan 9417

 
 

Sq Ft
2,407 FT²

Beds
3

Baths
2.5

Stories
1

Garage
2

Depth
54' 6"

Width
70' 6"
From
$1,445.00
© copyright by designer
 View All 14 Images | Photographs may reflect modified home | Video Tour | 360° View
Sq Ft
2,407 FT²
Beds
3
Baths
2.5
Stories
1
Garage
2
Depth
54' 6"
Width
70' 6"
 

 
Click to Zoom In on Floor Plan
© copyright by designer
 
 

About This Plan

Welcome to Fairgrounds, a stunning transitional modern farmhouse designed to blend rustic charm with contemporary elegance. This open floor plan is perfect for modern living, featuring a Great Room with vaulted ceilings and decorative beams, bathed in natural light. As you enter, you’ll be greeted by a large front porch and wrap-around rear and side porches, perfect for outdoor relaxation and gatherings. Inside, the home boasts two spacious secondary bedrooms with walk-in closets, a dedicated office, and a generous kitchen with a cabinet-entry walk-in pantry. The highlight of Fairgrounds is the amazing oversized main suite, featuring a vaulted ceiling, separated dual vanities, a large custom walk-in shower, and a stand-alone tub, providing a spa-like experience in the comfort of your own home. 

See All Plan Options
 

FEATURES & DETAILS

Kitchen features
Kitchen Island
L-Shaped
Walk-in Pantry
Bedroom features
Double Vanity Sink
Primary Bdrm Main Floor
Separate Tub and Shower
Split Bedrooms
Walk-in Closet
Exterior features
Covered Front Porch
Covered Rear Porch
Outdoor Living Space
Wraparound Porch
Lot Options
Suited for corner lot
Suited for view lot
Additional features
Dining Room
Fireplace
Foyer
Home Office
Laundry 1st Fl
Mud Room
Open Floor Plan
Storage Space
Vaulted Great Room/Living
Vaulted Primary
Garage Location
Rear
Garage Options
Attached
Side-entry
3,681 Ft
2
Total Structure
2,407 Ft
2
Total Heated
2,407 Ft
2
1st Floor
3
Bedrooms
2.5
Bathrooms
2
Garage
1
Stories
70' 6"
Width
54' 6"
Depth
27' 4"
Height
11' 0"
Main Floor Ceiling
2x4
Framing
Stick
Roof Framing
Single
Dwelling Number
None
Bonus Access

Unheated Living Space
594 Ft
2
Garage
206 Ft
2
Front Porch
474 Ft
2
Rear Porch
 

Plan Package Options

 Select Plan Package
 Need To Reverse Plan? (Optional)
  Select Foundation Option
  Add-Ons (Optional)
INCLUDED WITH YOUR PURCHASE

Free Ground shipping in the U.S.

FREE

Home Building & Product Ideas Organizer

Sub Total
$0
Free Shipping
QUESTIONS OR NEED HELP ORDERING? LIVE CHAT OR CALL US AT 866-214-2242
Plan Packages

Each set of construction documents typically includes detailed, dimensioned floor plans, basic electric layouts, cross sections, roof details, cabinet layouts, and elevations, as well as general IRC specifications. Please refer to the ARCHITECT or DESIGNER’S PLAN DETAILS link above the floor plan on any plan page to determine the specific details for each plan. Our house plans contain virtually all of the information required to construct your home. The typical plan set does not include plumbing, HVAC drawings, or engineering stamps due to the wide variety of specific needs, local codes, and climatic conditions. These details and specifications are easily obtained from your builder, contractors, and/or local engineers.

BEST PRICE GUARANTEE

Find the same house plan (modifications included!) and package for less on another site, show us the URL and we'll give you the difference plus an additional 10% back.

100% SATISFACTION GUARANTEE

We offer a one-time, 30-day exchange policy for unused, printed plan packages in the event you aren't satisfied with your first selection.

 
 

Plan 9417  Back to plan page

Loading...