Get discounts,
promos, see our
newest plans
and more!
+ 15% off any plan
See terms opt out anytime


No Thanks

Thanks for
signing up!


Use Code:

SIGNUP15

And save 15% off any plan!

Check your email for details.

CLOSE
Search Plans
Customer Reviews
     
15% off ALL House Plans Sitewide
15% off ALL House Plans Sitewide
15% off ALL House Plans Sitewide

Code: HONOR
Sale ends midnight 5/31/2026 PST

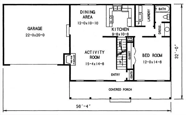
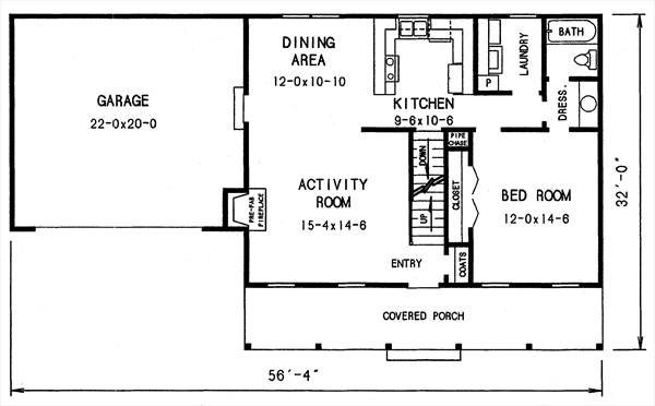
The Tifton | 3 Bedroom Country Style House, Plan 2794

 
 

Sq Ft
1,479 FT²

Beds
3

Baths
2

Stories
2

Garage
2

Depth
32'

Width
56' 4"
On Sale
$807.50
$950.00
EXCLUSIVE PLAN
© copyright by designer
 View All 4 Images | Photographs may reflect modified home
Sq Ft
1,479 FT²
Beds
3
Baths
2
Stories
2
Garage
2
Depth
32'
Width
56' 4"
 
Click to Zoom In on Floor Plan
© copyright by designer
 
 

About This Plan

This inviting home begins with a welcoming front porch that sets a warm, relaxed tone. Inside, the entry opens toward the staircase leading to the upper-level family or guest bedrooms, with a convenient coat closet nearby. The great room centers around a cozy fireplace and flows effortlessly into the dining area for comfortable, open living. The efficient U-shaped kitchen features a sink window overlooking the backyard and easy access to the basement stairs. The basement offers excellent potential for future expansion, making it ideal for a growing household. A full-size laundry room—even with added pantry storage—is a rare luxury in a home of this size. The main-level primary suite provides generous bedroom space, abundant closets, and a compartmentalized bath accessible from both the suite and the hallway. Upstairs, charming dormers and sloped ceilings give the bedrooms unique character, along with ample closet space and an additional hall bath. Classic horizontal siding, simple gables, and a covered porch complete the clean, country-inspired exterior. 


See All Plan Options
 

FEATURES & DETAILS

Kitchen features
Peninsula / Eating Bar
Bedroom features
Primary Bdrm Main Floor
Exterior features
Covered Front Porch
Front Porch
Foundation Options
Basement
Crawlspace
Slab
Walkout Basement
Lot Options
Suited for sloping lot
Additional features
Fireplace
Great Room
Laundry 1st Fl
Open Floor Plan
Garage Location
Side
Garage Options
Attached
1,479 Ft
2
Total Heated
884 Ft
2
1st Floor
595 Ft
2
2nd Floor
3
Bedrooms
2
Bathrooms
2
Garage
2
Stories
56' 4"
Width
32' 0"
Depth
24' 6"
Height
8' 0"
Main Floor Ceiling
8' 0"
Upper Floor Ceiling
2x4
Framing
Stick
Roof Framing
12/12
Primary Roof Pitch
4/12
Secondary Roof Pitch
Single
Dwelling Number
None
Bonus Access

Unheated Living Space
456 Ft
2
Garage
204 Ft
2
Porch
 

Plan Package Options

 Select Plan Package
 Need To Reverse Plan? (Optional)
  Select Foundation Option
  Add-Ons (Optional)
INCLUDED WITH YOUR PURCHASE

Free Ground shipping in the U.S.

FREE

Home Building & Product Ideas Organizer

Sub Total
$0
Free Shipping
QUESTIONS OR NEED HELP ORDERING? LIVE CHAT OR CALL US AT 866-214-2242
Plan Packages

Each set of construction documents typically includes detailed, dimensioned floor plans, basic electric layouts, cross sections, roof details, cabinet layouts, and elevations, as well as general IRC specifications. Please refer to the ARCHITECT or DESIGNER’S PLAN DETAILS link above the floor plan on any plan page to determine the specific details for each plan. Our house plans contain virtually all of the information required to construct your home. The typical plan set does not include plumbing, HVAC drawings, or engineering stamps due to the wide variety of specific needs, local codes, and climatic conditions. These details and specifications are easily obtained from your builder, contractors, and/or local engineers.

BEST PRICE GUARANTEE

Find the same house plan (modifications included!) and package for less on another site, show us the URL and we'll give you the difference plus an additional 10% back.

100% SATISFACTION GUARANTEE

We offer a one-time, 30-day exchange policy for unused, printed plan packages in the event you aren't satisfied with your first selection.

 
 

Plan 2794  Back to plan page

Loading...