Get discounts,
promos, see our
newest plans
and more!
+ 15% off any plan
See terms opt out anytime


No Thanks

Thanks for
signing up!


Use Code:

SIGNUP15

And save 15% off any plan!

Check your email for details.

CLOSE
Search Plans
Customer Reviews
     
15% off ALL House Plans Sitewide
15% off ALL House Plans Sitewide
15% off ALL House Plans Sitewide

Code: HONOR
Sale ends midnight 5/29/2026 PST

Sq Ft
1,352 FT²

Beds
3

Baths
2

Stories
1

Garage
2

Depth
36'

Width
71' 6"
On Sale
$807.50
$950.00
EXCLUSIVE PLAN
© copyright by designer
 View All 4 Images | Photographs may reflect modified home
Sq Ft
1,352 FT²
Beds
3
Baths
2
Stories
1
Garage
2
Depth
36'
Width
71' 6"
 
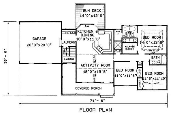
Click to Zoom In on Floor Plan
© copyright by designer
 
 

About This Plan

A warm rural feel is your first impression of this home. Plentiful windows provide light to all areas of the home. Entrance is directly into the oversized vaulted great room, which is open into the unique kitchen with dining bay.
The sink is in an overlook cabinet with a snack bar on the great room side of the counter. An abundance of storage and countertop space is provided, all directly accessible to the dining bay. A rear door is positioned here for exit to the sun deck. A laundry room, not just a laundry closet, is adjacent, and this room is even larger when using the crawl space or slab foundation for the plan. When building with a basement foundation, stairs are located in this area for easy access.
The home includes three bed rooms, all grouped together for a quiet zone. One of the front bed rooms includes a large arch topped window and a vaulted ceiling. Both family bed rooms are generously sized and share a hall bath.
The master bed room suite is accented by a tray ceiling and includes a private garden bath with vaulted ceiling, double vanity and separate shower and tub areas. A large walk-in closet is also provided to further enhance this area.
The country exterior is shown with horizontal siding, a covered wrap around front porch and multiple gable roof lines.

 

See All Plan Options
 

FEATURES & DETAILS

Kitchen features
Peninsula / Eating Bar
Bedroom features
Walk-in Closet
Exterior features
Covered Front Porch
Deck
Front Porch
Wraparound Porch
Foundation Options
Basement
Crawlspace
Daylight Basement
Slab
Lot Options
Suited for corner lot
Additional features
Great Room
Open Floor Plan
Vaulted Ceilings
Garage Location
Side
Garage Options
Attached
Side-entry
1,352 Ft
2
Total Heated
1,352 Ft
2
1st Floor
3
Bedrooms
2
Bathrooms
2
Garage
1
Stories
71' 6"
Width
36' 0"
Depth
8' 0"
Main Floor Ceiling
2x4
Framing
Stick
Roof Framing
8/12
Primary Roof Pitch
3/12
Secondary Roof Pitch
Single
Dwelling Number
1st Floor
Bonus Access

Unheated Living Space
420 Ft
2
Garage
221 Ft
2
Porch
168 Ft
2
Deck
 

Plan Package Options

 Select Plan Package
 Need To Reverse Plan? (Optional)
  Select Foundation Option
  Add-Ons (Optional)
INCLUDED WITH YOUR PURCHASE

Free Ground shipping in the U.S.

FREE

Home Building & Product Ideas Organizer

Sub Total
$0
Free Shipping
QUESTIONS OR NEED HELP ORDERING? LIVE CHAT OR CALL US AT 866-214-2242
Plan Packages

Each set of construction documents typically includes detailed, dimensioned floor plans, basic electric layouts, cross sections, roof details, cabinet layouts, and elevations, as well as general IRC specifications. Please refer to the ARCHITECT or DESIGNER’S PLAN DETAILS link above the floor plan on any plan page to determine the specific details for each plan. Our house plans contain virtually all of the information required to construct your home. The typical plan set does not include plumbing, HVAC drawings, or engineering stamps due to the wide variety of specific needs, local codes, and climatic conditions. These details and specifications are easily obtained from your builder, contractors, and/or local engineers.

BEST PRICE GUARANTEE

Find the same house plan (modifications included!) and package for less on another site, show us the URL and we'll give you the difference plus an additional 10% back.

100% SATISFACTION GUARANTEE

We offer a one-time, 30-day exchange policy for unused, printed plan packages in the event you aren't satisfied with your first selection.

 
 

Plan 1576  Back to plan page

Loading...