Get discounts,
promos, see our
newest plans
and more!
+ 15% off any plan
See terms opt out anytime


No Thanks

Thanks for
signing up!


Use Code:

SIGNUP15

And save 15% off any plan!

Check your email for details.

CLOSE
Search Plans
Customer Reviews
     
15% Off House Plans Sitewide Ends Sunday

Code: SAVE15
Sale ends midnight 1/11/2026 PST

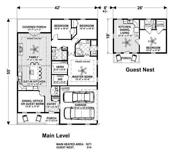
The Keyingham Place Affordable Craftsman Style House, Plan 9785

 
 

Sq Ft
1,671 FT²

Beds
4

Baths
2

Stories
1

Garage
2

Depth
55'

Width
42'
From
$1,395.00
© copyright by designer
 View All 7 Images | Photographs may reflect modified home
Sq Ft
1,671 FT²
Beds
4
Baths
2
Stories
1
Garage
2
Depth
55'
Width
42'
 
Click to Zoom In on Floor Plan
© copyright by designer
 
 

About This Plan

Gable details and tapered columns add appeal to this Craftsman style house plan, with four bedrooms, two baths and an affordable 1,671 square feet of living area. A separate guest nest with 514 square feet is perfect for adult children or aging relatives. A fireplace warms the family room in this home plan, which opens to a rear porch. The eat-in kitchen features snack space for five. His-and-hers walk-in closets are highlights in the posh master bedroom of this home design. The private bath boasts a whirlpool tub, a separate shower and two sinks. Builders point out the versatility of the front bedroom, which could be used as a dining room or a home office. Don't forget the front porch and the guest nest. 

See All Plan Options
 

FEATURES & DETAILS

Kitchen features
Kitchen Island
Foundation Options
Basement
Crawlspace
Additional features
In-law Suite
Open Floor Plan
Garage Location
Side
Garage Options
Attached
Side-entry
1,671 Ft
2
Total Heated
4
Bedrooms
2
Bathrooms
2
Garage
1
Stories
42' 0"
Width
55' 0"
Depth
23' 6"
Height
9' 0"
Main Floor Ceiling
2x6
Framing
6/12
Primary Roof Pitch
Single
Dwelling Number
None
Bonus Access

Unheated Living Space
514 Ft
2
Bonus Room
 

Plan Package Options

 Select Plan Package
$1,445
5 Printed Sets

Five Printed Sets of Residential Construction Drawings are typically 24” x 36” documents and come with a license to construct a single residence shipped to a physical address. Keep in mind PDF Plan Packages are our most popular choice which allows you to print as many copies as you need and to electronically send files to your builder, subcontractors, etc.

$1,445
$1,495
8 Printed Sets

Eight Printed Sets of Construction Drawings, typically 24” x 36” documents, with a license to construct a single residence shipped to your physical address. PDF Plan Packages are our most popular choice which allows you to print as many copies as you need and to electronically send files to your builder, subcontractors, bank/mortgage reps, material stores, decorators and more.

$1,495
$895
PDF Bid Set
PDFs NOW!™

Home plans stamped "NOT FOR CONSTRUCTION" for cost estimating and bidding purposes only; a minimum 5 set plan package must be purchased within 90 days for a license to build plan set; a credit will be applied towards your house plan upgrade

$895
$1,395
PDF Single Build
PDFs NOW!™

Digital plans emailed to you in PDF format that allows for printing copies and sharing electronically with contractors, subs, decorators, and more. This package includes a license to build the home one time.

$1,395
$1,895
CAD + PDF Single Build

This plan package is created in AutoCAD and delivered in .DWG format. CAD files are intended for use by design professionals, structural engineers, and builders to update plans for local building codes or to make revisions based on specific needs, lot requirements, and budget considerations. A complimentary PDF copy is included with this package for reference. CAD packages are delivered within 1 to 2 business days.
 
This package also comes with a copyright release for making revisions and printing unlimited copies.

For details on the specific CAD program used, please refer to the PLAN DETAILS section located above the floor plan on each plan page.

$1,895
 Need To Reverse Plan? (Optional)
$295
Readable Reverse

Reverse house plans with readable text and dimensions 

$295
  Select Foundation Option
  Add-Ons (Optional)
INCLUDED WITH YOUR PURCHASE

Free Ground shipping in the Continental U.S.

FREE

Home Building & Product Ideas Organizer

Sub Total
$0
Free Shipping
QUESTIONS OR NEED HELP ORDERING? LIVE CHAT OR CALL US AT 866-214-2242
Plan Packages

Each set of construction documents includes detailed, dimensioned floor plans, basic electric layouts, cross sections, roof details, cabinet layouts and elevations, as well as general IRC specifications. They contain virtually all of the information required to construct your home. The typical plan set does not include any plumbing, HVAC drawings, or engineering stamps due to the wide variety of specific needs, local codes, and climatic conditions. These details and specifications are easily obtained from your builder, contractors, and/or local engineers.

BEST PRICE GUARANTEE

Find the same house plan (modifications included!) and package for less on another site, show us the URL and we'll give you the difference plus an additional 5% back.

100% SATISFACTION GUARANTEE

We offer a one-time, 30-day exchange policy for unused, printed plan packages in the event you aren't satisfied with your first selection. Exchanges are subject to a 20% restocking fee.

 
 

Plan 9785  Back to plan page

Loading...