Get discounts,
promos, see our
newest plans
and more!
+ 15% off any plan
See terms opt out anytime


No Thanks

Thanks for
signing up!


Use Code:

SIGNUP15

And save 15% off any plan!

Check your email for details.

CLOSE
Search Plans
Customer Reviews
     
15% off ALL House Plans Sitewide
15% off ALL House Plans Sitewide
15% off ALL House Plans Sitewide

Code: HONOR
Sale ends midnight 5/31/2026 PST

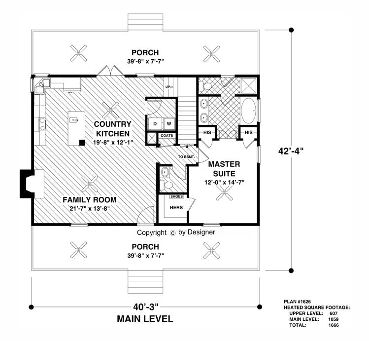
The Greystone Cottage | 3 Bedroom Craftsman Style House, Plan 3061

 
 

Sq Ft
1,666 FT²

Beds
3

Baths
2.5

Stories
2

Garage
2

Depth
42' 4"

Width
40' 3"
On Sale
$1,100.75
$1,295.00
© copyright by designer
 View All 5 Images | Photographs may reflect modified home
Sq Ft
1,666 FT²
Beds
3
Baths
2.5
Stories
2
Garage
2
Depth
42' 4"
Width
40' 3"
 
Click to Zoom In on Floor Plan
© copyright by designer
 
 

About This Plan

This charming Craftsman-style house plan features a nostalgic full-width front porch, offering a warm and timeless curb appeal that never goes out of style. Designed with an efficient layout and open floor plan, this home is perfect for today’s modern lifestyles while staying true to classic architectural elements. The drive-under 2-car garage maximizes space on a smaller lot, and the unfinished basement offers ample room for storage or future expansion. 

Inside, a glass-paneled front door welcomes you into a spacious living area where the open family room and country-style kitchen blend seamlessly—ideal for gatherings and everyday living. French doors lead to a covered back porch that spans the width of the home, providing additional outdoor living space to relax or entertain.

The private primary suite includes all the most-desired features: a generous walk-in closet, a luxurious bathroom with garden tub and separate shower, and direct access to the rear porch for morning coffee or evening wind-downs. 


See All Plan Options
 

FEATURES & DETAILS

Foundation Options
Basement
Crawlspace
Slab
Garage Location
Under
Garage Options
Attached
Drive-under
1,666 Ft
2
Total Heated
1,059 Ft
2
1st Floor
607 Ft
2
2nd Floor
3
Bedrooms
2.5
Bathrooms
2
Garage
2
Stories
40' 3"
Width
42' 4"
Depth
24' 0"
Height
8' 0"
Main Floor Ceiling
8' 0"
Upper Floor Ceiling
2x4
Framing
Stick
Roof Framing
8/12
Primary Roof Pitch
Single
Dwelling Number

Unheated Living Space
 

Plan Package Options

 Select Plan Package
 Need To Reverse Plan? (Optional)
  Select Foundation Option
  Add-Ons (Optional)
INCLUDED WITH YOUR PURCHASE

Free Ground shipping in the U.S.

FREE

Home Building & Product Ideas Organizer

Sub Total
$0
Free Shipping
QUESTIONS OR NEED HELP ORDERING? LIVE CHAT OR CALL US AT 866-214-2242
Plan Packages

Each set of construction documents typically includes detailed, dimensioned floor plans, basic electric layouts, cross sections, roof details, cabinet layouts, and elevations, as well as general IRC specifications. Please refer to the ARCHITECT or DESIGNER’S PLAN DETAILS link above the floor plan on any plan page to determine the specific details for each plan. Our house plans contain virtually all of the information required to construct your home. The typical plan set does not include plumbing, HVAC drawings, or engineering stamps due to the wide variety of specific needs, local codes, and climatic conditions. These details and specifications are easily obtained from your builder, contractors, and/or local engineers.

BEST PRICE GUARANTEE

Find the same house plan (modifications included!) and package for less on another site, show us the URL and we'll give you the difference plus an additional 10% back.

100% SATISFACTION GUARANTEE

We offer a one-time, 30-day exchange policy for unused, printed plan packages in the event you aren't satisfied with your first selection.

Customer Reviews of House Plan 3061
3/11/2015
Jason
Customer Review:
Working with The House Designers to obtain my house plans was a great experience. Their staff was courteous and professional. The house site has been obtained and plans are currently underway to break ground in the next few weeks. My partner and I could now be more pleased! We are excited about documenting the building process from start to finish through photos to share with our family and friends.
7/10/2014
Franklin W. of Plattsburg, MO
Customer Review:
I bought a bid set to be able to bid the house for a prospective homeowner and it worked very well for me.

SEE All Reviews
 
 

Plan 3061  Back to plan page

Loading...