Get discounts,
promos, see our
newest plans
and more!
+ 15% off any plan
See terms opt out anytime


No Thanks

Thanks for
signing up!


Use Code:

SIGNUP15

And save 15% off any plan!

Check your email for details.

CLOSE
Search Plans
     
20% Off House Plans Sitewide Ends Tuesday
20% Off House Plans Sitewide Ends Tuesday
20% Off House Plans Sitewide Ends Tuesday

Code: VET20
Sale ends midnight 11/11/2025 PST

Sq Ft
3,280 FT²

Beds
4

Baths
3.5

Stories
2

Garage
3

Depth
92' 6"

Width
122' 4"
On Sale
$1,040.00
$1,300.00
© copyright by designer
 View All 4 Images | Photographs may reflect modified home
Sq Ft
3,280 FT²
Beds
4
Baths
3.5
Stories
2
Garage
3
Depth
92' 6"
Width
122' 4"
 
Click to Zoom In on Floor Plan
© copyright by designer
 
 

About This Plan

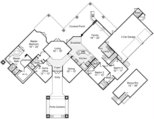
This design takes advantage of a large lot of a cul-de-sac lot. The impact of the curb appeal of this plan cannot be adequately described. Its presence and impact are, however undeniable. A porte-cochere welcomes guests to the main entrance of the home and, from the moment you enter the foyer, spectacular views in all directions greet you. The diamond shaped living room overflows onto the outdoor living space with mitered glass walls and French doors. Corner windows are found in the formal dining room. Opposite the dining room is the den/guest suite, which enjoys a private powder/bath. The double doors lead into the master suite, which has a windowed bed wall and bay window sitting area, with French doors to the outdoor living space. The master bath is in tune with the health conscious family of today with all the favorite amenities, like soaking tub, dual vanities, walk-in shower, private toilet chamber and walk-in closet. A raised exercise area with low walls of glass block and ample space for the latest equipment makes workouts pleasurable. The family wing of this home comes complete with a spectacular gourmet kitchen, huge pantry and much counter and cabinet space. The nook overlooks the rear yard, while the family gathering space is roomy and inviting, with fireplace/media wall and 16 pocket sliding doors to the patio. A convenient lavatory is off the utility room and a staircase leads to the bonus/game room over the three-car garage. The two secondary bedrooms are amply sized and share a private bath. Note the summer kitchen on the patio, with garage access, as well as the pool bath and storage. 

See All Plan Options
 

FEATURES & DETAILS

Kitchen features
Kitchen Island
Nook / Breakfast Area
Peninsula / Eating Bar
Walk-in Pantry
Bedroom features
Double Vanity Sink
Primary Bdrm Main Floor
Separate Tub and Shower
Split Bedrooms
Walk-in Closet
Exterior features
Breezeway
Covered Front Porch
Covered Rear Porch
Front Porch
Rear Porch
Foundation Options
Slab
Lot Options
Suited for corner lot
Suited for view lot
Additional features
Arches
Bonus Room
Dining Room
Family Room
Fireplace
Formal LR
Foyer
Great Room
Home Office
Laundry 1st Fl
Library/Media Rm
Mud Room
Open Floor Plan
Unfinished Space
Vaulted Ceilings
Garage Location
Side
Garage Options
Attached
3,280 Ft
2
Total Heated
2,977 Ft
2
1st Floor
303 Ft
2
2nd Floor
4
Bedrooms
3.5
Bathrooms
3
Garage
2
Stories
122' 4"
Width
92' 6"
Depth
12' 0"
Main Floor Ceiling
8' 0"
Upper Floor Ceiling
2x4
Framing
Truss
Roof Framing
6/12
Primary Roof Pitch
Single
Dwelling Number

Unheated Living Space
739 Ft
2
Garage
491 Ft
2
Porch
883 Ft
2
Patio
 

Plan Package Options

 Select Plan Package
Sale: $1,040
PDF Single Build
$1,300

Digital plans emailed to you in PDF format that allows for printing copies and sharing electronically with contractors, subs, decorators, and more. This package includes a license to build the home one time.

Sale: $1,040
Sale: $1,200
5 Printed Sets
$1,500

Five Printed Sets of Residential Construction Drawings are typically 24” x 36” documents and come with a license to construct a single residence shipped to a physical address. Keep in mind PDF Plan Packages are our most popular choice which allows you to print as many copies as you need and to electronically send files to your builder, subcontractors, etc.

Sale: $1,200
Sale: $1,320
5 Printed Sets + PDF
$1,650

Digital plan emailed to you in PDF format that allows for printing copies on a home printer or local print shop and sharing with contractors, subs, decorators, and more. PLUS five printed sets shipped and delivered 3-5 business days.

Sale: $1,320
  Select Foundation Option
  Add-Ons (Optional)
INCLUDED WITH YOUR PURCHASE

Free Ground shipping in the Continental U.S.

FREE

Design consultation with the architect or designer to discuss your plan

Home Building & Product Ideas Organizer

Sub Total
$0
Free Shipping
QUESTIONS OR NEED HELP ORDERING? LIVE CHAT OR CALL US AT 866-214-2242
Plan Packages

Each set of construction documents includes detailed, dimensioned floor plans, basic electric layouts, cross sections, roof details, cabinet layouts and elevations, as well as general IRC specifications. They contain virtually all of the information required to construct your home. The typical plan set does not include any plumbing, HVAC drawings, or engineering stamps due to the wide variety of specific needs, local codes, and climatic conditions. These details and specifications are easily obtained from your builder, contractors, and/or local engineers.

BEST PRICE GUARANTEE

find the same house plan (modifications included!) and package for less on another site, show us the URL and we'll give you the difference plus an additional 5% back.

100% SATISFACTION GUARANTEE

We offer a one-time, 30-day exchange policy for unused, non-electronic plan packages in the event you aren't satisfied with your first selection.

 
 

Plan 4120  Back to plan page

Loading...