Get discounts,
promos, see our
newest plans
and more!
+ 15% off any plan
See terms opt out anytime


No Thanks

Thanks for
signing up!


Use Code:

SIGNUP15

And save 15% off any plan!

Check your email for details.

CLOSE
Search Plans
     
15% Off House Plans Sitewide Ends Sunday
15% Off House Plans Sitewide Ends Sunday
15% Off House Plans Sitewide Ends Sunday

Code: SAVE15
Sale ends midnight 11/16/2025 PST

Sq Ft
3,076 FT²

Beds
4

Baths
2.5

Stories
2

Garage
3

Depth
81'

Width
28'
On Sale
$1,657.50
$1,950.00
© copyright by designer
 View All 14 Images | Photographs may reflect modified home
Sq Ft
3,076 FT²
Beds
4
Baths
2.5
Stories
2
Garage
3
Depth
81'
Width
28'
 
Click to Zoom In on Floor Plan
© copyright by designer
 
 

About This Plan

 

See All Plan Options
 

FEATURES & DETAILS

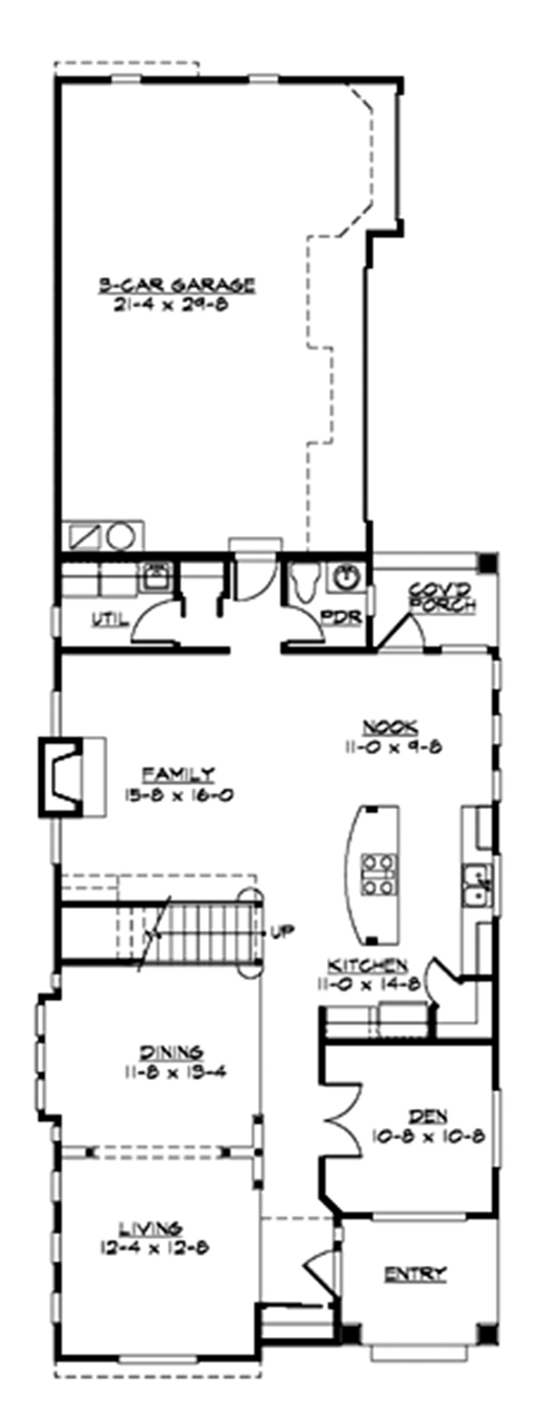
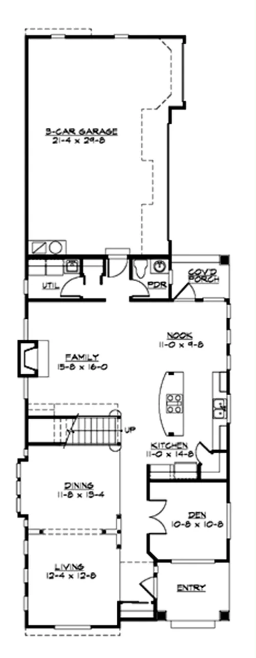
Kitchen features
Kitchen Island
Nook / Breakfast Area
Walk-in Pantry
Exterior features
Covered Front Porch
Rear Porch
Foundation Options
Crawlspace
Lot Options
Suited for narrow lot
Additional features
Bonus Room
Dining Room
Family Room
Fireplace
Formal LR
Home Office
Laundry 1st Fl
Loft / Balcony
Vaulted Ceilings
Garage Location
Rear
Garage Options
Attached
Rear-entry
Side-entry
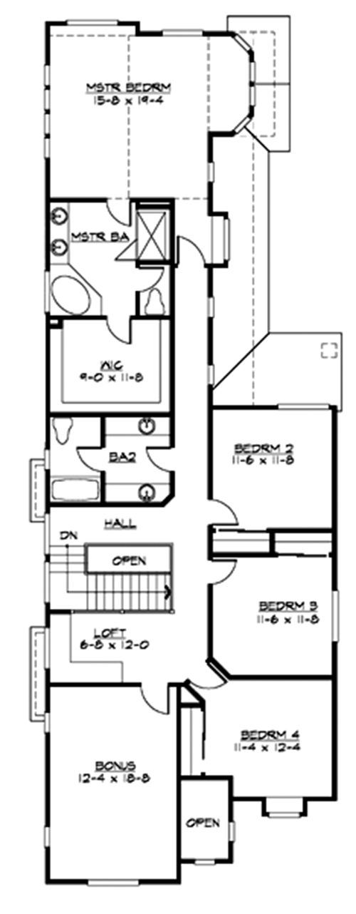
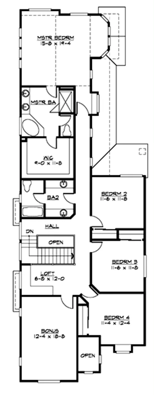
3,076 Ft
2
Total Heated
1,300 Ft
2
1st Floor
1,776 Ft
2
2nd Floor
4
Bedrooms
2.5
Bathrooms
3
Garage
2
Stories
28' 0"
Width
81' 0"
Depth
27' 6"
Height
9' 0"
Main Floor Ceiling
8' 0"
Upper Floor Ceiling
2x6
Framing
Truss
Roof Framing
8
Primary Roof Pitch
5
Secondary Roof Pitch
Single
Dwelling Number
2nd Floor
Bonus Access

Unheated Living Space
620 Ft
2
Garage
 

Plan Package Options

 Select Plan Package
Sale: $1,658
PDF Single Build
$1,950

Digital plans emailed to you in PDF format that allows for printing copies and sharing electronically with contractors, subs, decorators, and more. This package includes a license to build the home one time.

Sale: $1,658
Sale: $2,762
CAD + PDF Unlimited Build
$3,250

CAD files are a complete set of construction drawings delivered electronically. They can be used for any type of modification—including major design changes and engineering—and include a release granting permission to modify the plan. Most CAD plan orders are emailed the same or next business day.
 
This package also comes with a PDF set of plans and a multi-use building license, granting permission to construct the home an unlimited number of times, along with a copyright release for making modifications and printing unlimited copies.
 
CAD files are provided in .dwg format. For details on the specific CAD program used, please refer to the PLAN DETAILS section located above the floor plan on each plan’s page.

Sale: $2,762
 Need To Reverse Plan? (Optional)
$300
Readable Reverse

Reverse house plans with readable text and dimensions 

$300
  Select Foundation Option
  Add-Ons (Optional)
INCLUDED WITH YOUR PURCHASE

Free Ground shipping in the Continental U.S.

FREE

Design consultation with the architect or designer to discuss your plan

Home Building & Product Ideas Organizer

Sub Total
$0
Free Shipping
IMPORTANT NOTE: Due to state regulations, this home is not available for purchase in the State of Washington. Contact us for more information.

Note: This plan cannot be purchased for construction in Washington State.
QUESTIONS OR NEED HELP ORDERING? LIVE CHAT OR CALL US AT 866-214-2242
Plan Packages

Each set of construction documents includes detailed, dimensioned floor plans, basic electric layouts, cross sections, roof details, cabinet layouts and elevations, as well as general IRC specifications. They contain virtually all of the information required to construct your home. The typical plan set does not include any plumbing, HVAC drawings, or engineering stamps due to the wide variety of specific needs, local codes, and climatic conditions. These details and specifications are easily obtained from your builder, contractors, and/or local engineers.

BEST PRICE GUARANTEE

find the same house plan (modifications included!) and package for less on another site, show us the URL and we'll give you the difference plus an additional 5% back.

100% SATISFACTION GUARANTEE

We offer a one-time, 30-day exchange policy for unused, non-electronic plan packages in the event you aren't satisfied with your first selection.

 
 

Plan 3353  Back to plan page

Loading...