Get discounts,
promos, see our
newest plans
and more!
+ 15% off any plan
See terms opt out anytime


No Thanks

Thanks for
signing up!


Use Code:

SIGNUP15

And save 15% off any plan!

Check your email for details.

CLOSE
Search Plans
Customer Reviews
     
22% Off House Plans Sitewide Ends Sunday

Code: SAVE22
Sale ends midnight 12/7/2025 PST

Sq Ft
2,584 FT²

Beds
4

Baths
3.5

Stories
2

Garage
2

Depth
72' 8"

Width
30'
From
$1,075.00
© copyright by designer
 View All 8 Images | Photographs may reflect modified home
Sq Ft
2,584 FT²
Beds
4
Baths
3.5
Stories
2
Garage
2
Depth
72' 8"
Width
30'
 
Click to Zoom In on Floor Plan
© copyright by designer
 
 

About This Plan

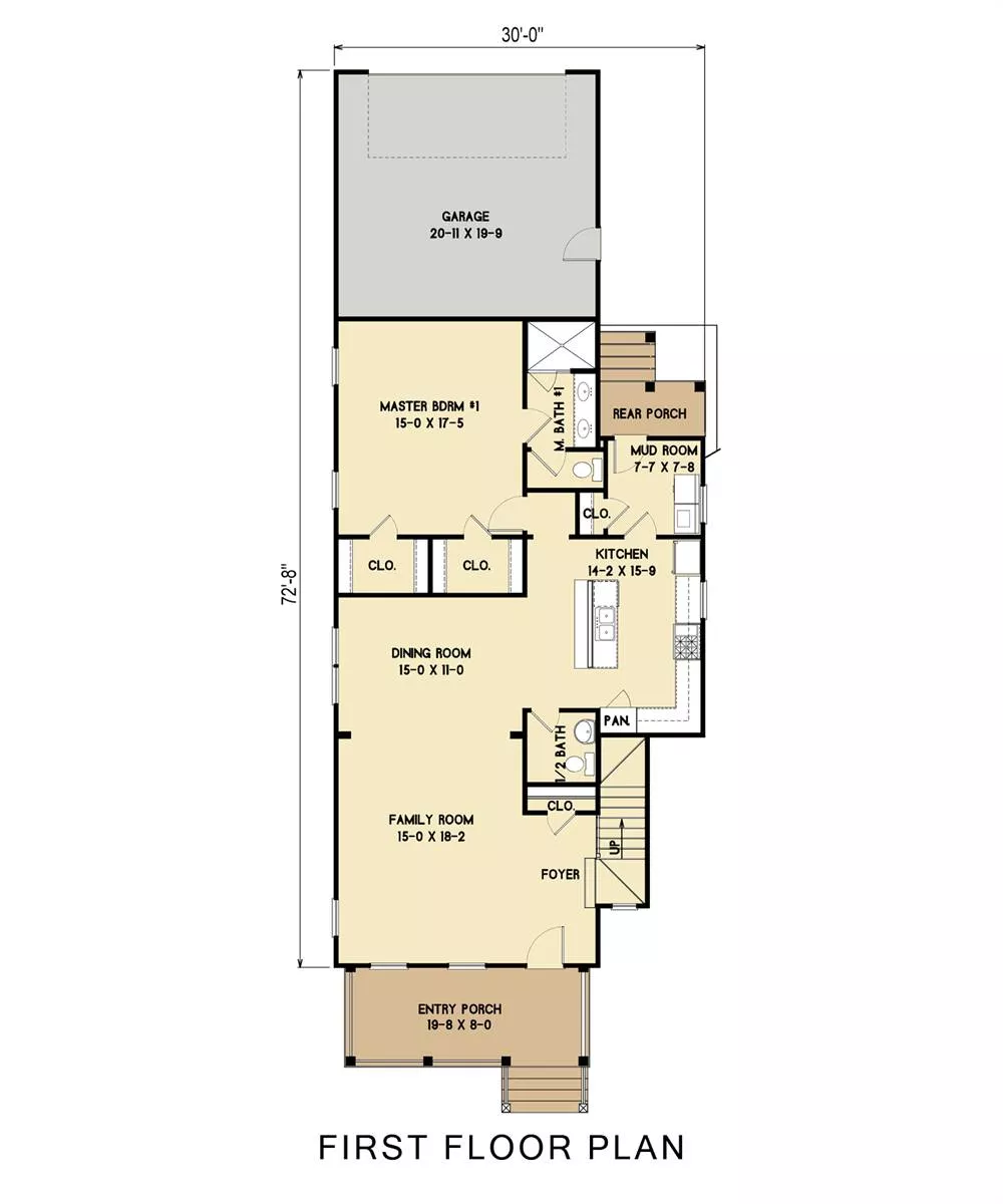
This plan is ideal for a coastal building site. The two-story front porch provides outdoor living space to take advantage of prevailing breezes as well as views of beach surroundings. This plan has been popular in urban settings too, offering two spacious master bedroom suites, one on each floor, well suited for an elderly parent on the first floor. The attached two-car garage at the rear allows for alley access. The garage has been omitted in some projects, instead providing a garage that can be accessed from the street at the front of the house. Since the house plan is narrow, the front access option can either be a driveway by the side of the house to a detached garage at the rear of the lot, or attached to the side of the house. Inside the home, you'll appreciate that the living areas are open, for easy entertaining. Note the crackling fireplace in the family room. A half-bath allows guests to freshen up after a long drive. 

See All Plan Options
 

FEATURES & DETAILS

Kitchen features
Kitchen Island
Nook / Breakfast Area
Walk-in Pantry
Bedroom features
2 Primary Suites
Double Vanity Sink
His and Hers Primary Closets
Primary Bdrm Main Floor
Primary Bdrm Upstairs
Separate Tub and Shower
Sitting Area
Walk-in Closet
Exterior features
Breezeway
Covered Front Porch
Covered Rear Porch
Front Porch
Rear Porch
Foundation Options
Crawlspace
Lot Options
Suited for narrow lot
Additional features
Dining Room
Family Room
Laundry 1st Fl
Open Floor Plan
Garage Options
Detached
None
2,951 Ft
2
Total Structure
2,584 Ft
2
Total Heated
1,395 Ft
2
1st Floor
1,189 Ft
2
2nd Floor
4
Bedrooms
3.5
Bathrooms
2
Garage
2
Stories
30' 0"
Width
72' 8"
Depth
31' 11"
Height
9' 0"
Main Floor Ceiling
9' 0"
Upper Floor Ceiling
2x4
Framing
Stick
Roof Framing
8/12
Primary Roof Pitch
4/12
Secondary Roof Pitch
Single
Dwelling Number

Unheated Living Space
430 Ft
2
Garage
367 Ft
2
Porch
51 Ft
2
Deck
 

Plan Package Options

 Select Plan Package
$250
PDF Bid Set

Home plans stamped "NOT FOR CONSTRUCTION" for cost estimating and bidding purposes only; a minimum 5 set plan package must be purchased within 90 days for a license to build plan set; a credit will be applied towards your house plan upgrade

$250
$1,075
PDF Single Build

Digital plans emailed to you in PDF format that allows for printing copies and sharing electronically with contractors, subs, decorators, and more. This package includes a license to build the home one time.

$1,075
$1,175
5 Printed Sets

Five Printed Sets of Residential Construction Drawings are typically 24” x 36” documents and come with a license to construct a single residence shipped to a physical address. Keep in mind PDF Plan Packages are our most popular choice which allows you to print as many copies as you need and to electronically send files to your builder, subcontractors, etc.

$1,175
$1,865
CAD + PDF Single Build

CAD files are a complete set of construction drawings delivered electronically. They can be used for any type of modification—including major design changes and engineering—and include a release granting permission to modify the plan. Most CAD plan orders are emailed the same or next business day.
 
This package also comes with a PDF set of plans and a copyright release for making modifications and printing unlimited copies.
 
CAD files are provided in .dwg format. For details on the specific CAD program used, please refer to the PLAN DETAILS section located above the floor plan on each plan’s page.

$1,865
 Need To Reverse Plan? (Optional)
$150
Readable Reverse

Reverse house plans with readable text and dimensions 

$150
  Select Foundation Option
  Add-Ons (Optional)
INCLUDED WITH YOUR PURCHASE

Free Ground shipping in the Continental U.S.

FREE

Design consultation with the architect or designer to discuss your plan

Home Building & Product Ideas Organizer

Sub Total
$0
Free Shipping
QUESTIONS OR NEED HELP ORDERING? LIVE CHAT OR CALL US AT 866-214-2242
Plan Packages

Each set of construction documents includes detailed, dimensioned floor plans, basic electric layouts, cross sections, roof details, cabinet layouts and elevations, as well as general IRC specifications. They contain virtually all of the information required to construct your home. The typical plan set does not include any plumbing, HVAC drawings, or engineering stamps due to the wide variety of specific needs, local codes, and climatic conditions. These details and specifications are easily obtained from your builder, contractors, and/or local engineers.

BEST PRICE GUARANTEE

find the same house plan (modifications included!) and package for less on another site, show us the URL and we'll give you the difference plus an additional 5% back.

100% SATISFACTION GUARANTEE

We offer a one-time, 30-day exchange policy for unused, non-electronic plan packages in the event you aren't satisfied with your first selection.

 
 

Plan 1611  Back to plan page

Loading...