Get discounts,
promos, see our
newest plans
and more!
+ 15% off any plan
See terms opt out anytime


No Thanks

Thanks for
signing up!


Use Code:

SIGNUP15

And save 15% off any plan!

Check your email for details.

CLOSE
Search Plans
     

Sq Ft
1,807 FT²

Beds
3

Baths
2

Stories
1

Garage
2

Depth
78'

Width
38'
From
$1,655.00
© copyright by designer
 View All 4 Images | Photographs may reflect modified home
Sq Ft
1,807 FT²
Beds
3
Baths
2
Stories
1
Garage
2
Depth
78'
Width
38'
 
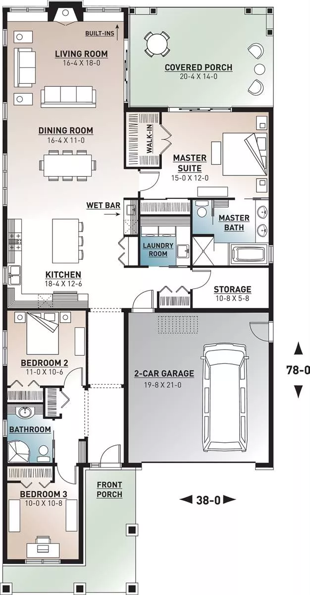
Click to Zoom In on Floor Plan
© copyright by designer
 
 

About This Plan

Craftsman details make this one-story home design a favorite in any neighborhood. A bonus area above the garage and foyer is easily accessed via fold-down stairs. The gourmet kitchen is open and inviting, with space for three stools at the island. The family chef can prepare the dinner table while participating in the conversation in the versatile great room. The peaceful master suite opens to a covered terrace for evening stargazing. 

See All Plan Options
 

FEATURES & DETAILS

Kitchen features
Kitchen Island
Foundation Options
Crawlspace
Slab
Lot Options
Suited for narrow lot
Additional features
Great Room
Garage Location
Front
Garage Options
Attached
Front-entry
1,807 Ft
2
Total Heated
3
Bedrooms
2
Bathrooms
2
Garage
1
Stories
38' 0"
Width
78' 0"
Depth
19' 11"
Height
9' 0"
Main Floor Ceiling
2x6
Framing
Truss
Roof Framing
6/12
Primary Roof Pitch
Single
Dwelling Number
2nd Floor
Bonus Access

Unheated Living Space
441 Ft
2
Garage
336 Ft
2
Porch
324 Ft
2
Bonus Room
 

Plan Package Options

 Select Plan Package
$1,655
PDF Single Build

Digital plans emailed to you in PDF format that allows for printing copies and sharing electronically with contractors, subs, decorators, and more. This package includes a license to build the home one time.

$1,655
$1,795
3 sets + PDF
Please allow 3-5 days for delivery
$1,795
$2,655
CAD + PDF Single Build

CAD files are a complete set of construction drawings delivered electronically. They can be used for any type of modification—including major design changes and engineering—and include a release granting permission to modify the plan. Most CAD plan orders are emailed the same or next business day.
 
This package also comes with a PDF set of plans and a copyright release for making modifications and printing unlimited copies.
 
CAD files are provided in .dwg format. For details on the specific CAD program used, please refer to the PLAN DETAILS section located above the floor plan on each plan’s page.

$2,655
 Need To Reverse Plan? (Optional)
$250
Readable Reverse

Reverse house plans with readable text and dimensions 

$250
  Select Foundation Option
  Add-Ons (Optional)
INCLUDED WITH YOUR PURCHASE

Free Ground shipping in the Continental U.S.

FREE

Design consultation with the architect or designer to discuss your plan

Home Building & Product Ideas Organizer

Sub Total
$0
Free Shipping
Please allow 3-5 business days for delivery of this plan Please check our PDFs NOW collection for plans that can be downloaded and received immediately or live chat us to help you find a similar plan available now.
QUESTIONS OR NEED HELP ORDERING? LIVE CHAT OR CALL US AT 866-214-2242
Plan Packages

Each set of construction documents includes detailed, dimensioned floor plans, basic electric layouts, cross sections, roof details, cabinet layouts and elevations, as well as general IRC specifications. They contain virtually all of the information required to construct your home. The typical plan set does not include any plumbing, HVAC drawings, or engineering stamps due to the wide variety of specific needs, local codes, and climatic conditions. These details and specifications are easily obtained from your builder, contractors, and/or local engineers.

BEST PRICE GUARANTEE

find the same house plan (modifications included!) and package for less on another site, show us the URL and we'll give you the difference plus an additional 5% back.

100% SATISFACTION GUARANTEE

We offer a one-time, 30-day exchange policy for unused, non-electronic plan packages in the event you aren't satisfied with your first selection.

 
 

Plan 4770  Back to plan page

Loading...