Get discounts,
promos, see our
newest plans
and more!
+ 15% off any plan
See terms opt out anytime


No Thanks

Thanks for
signing up!


Use Code:

SIGNUP15

And save 15% off any plan!

Check your email for details.

CLOSE
Search Plans
Customer Reviews
     
15% off ALL House Plans Sitewide
15% off ALL House Plans Sitewide
15% off ALL House Plans Sitewide

Code: HONOR
Sale ends midnight 5/31/2026 PST

Cambridge Attractive Craftsman Style House, Plan 9527

 
 

Sq Ft
2,141 FT²

Beds
4

Baths
2.5

Stories
2

Garage
2

Depth
56'

Width
40'
On Sale
$1,406.75
$1,655.00
© copyright by designer
 View All 6 Images | Photographs may reflect modified home
Sq Ft
2,141 FT²
Beds
4
Baths
2.5
Stories
2
Garage
2
Depth
56'
Width
40'
 
Click to Zoom In on Floor Plan
© copyright by designer
 
 

About This Plan

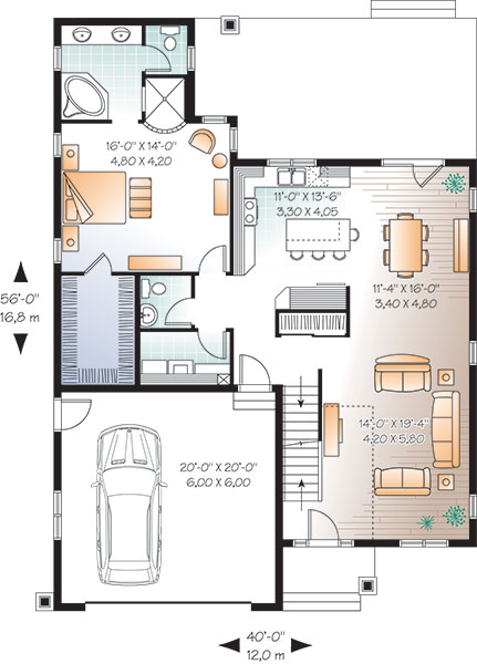
Decorative brackets and a single column lend a Craftsman feel to the facade of this two-story house plan, with four bedrooms, 2.5 baths and 2,141 square feet of living area. Visitors will step into the dramatic foyer of this home plan and then the sizable great room for good conversation. The open kitchen features island snack space for four. The tasteful dining room is perfect for any meal. When the weather is nice, consider serving dinner on the rear deck, beyond French doors. After a busy day, retire to the deluxe master bedroom with walk-in closet. The private bath boasts an oval tub, a glass-block shower and two sinks. On the upper floor of this home design, three bedrooms share a compartmentalized bath. Builders point out the versatile loft area, where you will enjoy curling up with a favorite novel. 

See All Plan Options
 

FEATURES & DETAILS

Kitchen features
Kitchen Island
Bedroom features
Double Vanity Sink
Guest Suite
His and Hers Primary Closets
Primary Bdrm Main Floor
Separate Tub and Shower
Sitting Area
Split Bedrooms
Walk-in Closet
Exterior features
Covered Front Porch
Covered Rear Porch
Front Porch
Rear Porch
Foundation Options
Basement
Crawlspace
Daylight Basement
Slab
Lot Options
Suited for narrow lot
Additional features
2 Story Volume
Family Room
Great Room
Laundry 1st Fl
Library/Media Rm
Open Floor Plan
Unfinished Space
Vaulted Ceilings
Garage Location
Front
Garage Options
Attached
Front-entry
2,141 Ft
2
Total Heated
1,352 Ft
2
1st Floor
789 Ft
2
2nd Floor
4
Bedrooms
2.5
Bathrooms
2
Garage
2
Stories
40' 0"
Width
56' 0"
Depth
25' 1"
Height
9' 0"
Main Floor Ceiling
8' 0"
Upper Floor Ceiling
2x6
Framing
Truss
Roof Framing
8/12
Primary Roof Pitch
10/12
Secondary Roof Pitch
Single
Dwelling Number
None
Bonus Access

Unheated Living Space
438 Ft
2
Garage
 

Plan Package Options

 Select Plan Package
 Need To Reverse Plan? (Optional)
  Select Foundation Option
  Add-Ons (Optional)
INCLUDED WITH YOUR PURCHASE

Free Ground shipping in the U.S.

FREE

Home Building & Product Ideas Organizer

Sub Total
$0
Free Shipping
Please allow 3-5 business days for delivery of this plan Please check our PDFs NOW collection for plans that can be downloaded and received immediately or live chat us to help you find a similar plan available now.
QUESTIONS OR NEED HELP ORDERING? LIVE CHAT OR CALL US AT 866-214-2242
Plan Packages

Each set of construction documents typically includes detailed, dimensioned floor plans, basic electric layouts, cross sections, roof details, cabinet layouts, and elevations, as well as general IRC specifications. Please refer to the ARCHITECT or DESIGNER’S PLAN DETAILS link above the floor plan on any plan page to determine the specific details for each plan. Our house plans contain virtually all of the information required to construct your home. The typical plan set does not include plumbing, HVAC drawings, or engineering stamps due to the wide variety of specific needs, local codes, and climatic conditions. These details and specifications are easily obtained from your builder, contractors, and/or local engineers.

BEST PRICE GUARANTEE

Find the same house plan (modifications included!) and package for less on another site, show us the URL and we'll give you the difference plus an additional 10% back.

100% SATISFACTION GUARANTEE

We offer a one-time, 30-day exchange policy for unused, printed plan packages in the event you aren't satisfied with your first selection.

Customer Reviews of House Plan 9527
5/12/2020
Anonymous
Customer Review:
This was our first time ordering plans online. We were pleased with the process. Christine was very helpful with answering our questions. Plans were delivered on time.

SEE All Reviews
 
 

Plan 9527  Back to plan page

Loading...