Get discounts,
promos, see our
newest plans
and more!
+ 15% off any plan
See terms opt out anytime


No Thanks

Thanks for
signing up!


Use Code:

SIGNUP15

And save 15% off any plan!

Check your email for details.

CLOSE
Search Plans
     
20% Off House Plans Sitewide Ends Tuesday
20% Off House Plans Sitewide Ends Tuesday
20% Off House Plans Sitewide Ends Tuesday

Code: VET20
Sale ends midnight 11/11/2025 PST

Sq Ft
6,612 FT²

Beds
5

Baths
5.5

Stories
2

Garage
3

Depth
97' 5"

Width
80' 11"
On Sale
$2,320.00
$2,900.00
© copyright by designer
 View All 50 Images | Photographs may reflect modified home
Sq Ft
6,612 FT²
Beds
5
Baths
5.5
Stories
2
Garage
3
Depth
97' 5"
Width
80' 11"
 
Click to Zoom In on Floor Plan
© copyright by designer
 
 

About This Plan

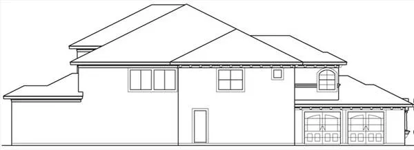
This luxury Mediterranean home will bring your dreams to your doorstep. The two-story foyer with winding stairs is flanked through the groin vault ceiling by a cozy study with built-ins and coffered ceiling. On the opposite side is the elegant dining room with access to the butlery and island kitchen for ease in serving. Through the gallery is the formal living room with its bank of windows that view the landscaped yard. The master suite boasts a sitting area near a corner fireplace. A lavish bath with his and hers vanities, separate shower, tub and large wardrobe completes this luxurious master suite. On the opposite side of the house is the family room with coffered ceiling, corner fireplace and rear yard view. Upstairs are two versatile bonus rooms, three family bedrooms with walk-in closets and full baths, a game room, a media room, a bar, a tech room, a powder room, a gallery, and a balcony.
 

See All Plan Options
 

FEATURES & DETAILS

Kitchen features
Butler's Pantry
Country Kitchen
Kitchen Island
Nook / Breakfast Area
Walk-in Pantry
Bedroom features
Double Vanity Sink
Guest Suite
Primary Bdrm Main Floor
Separate Tub and Shower
Sitting Area
Split Bedrooms
Walk-in Closet
Exterior features
Covered Front Porch
Covered Rear Porch
Deck
Front Porch
Rear Porch
Foundation Options
Slab
Lot Options
Suited for corner lot
Suited for view lot
Additional features
2 Story Volume
Arches
Dining Room
Family Room
Fireplace
Formal LR
Foyer
Home Office
In-law Suite
Laundry 1st Fl
Library/Media Rm
Rec Room
Storage Space
Unfinished Space
Vaulted Ceilings
Wine Cellar
Garage Location
Front
Garage Options
Attached
Front-entry
Side-entry
9,098 Ft
2
Total Structure
6,612 Ft
2
Total Heated
4,100 Ft
2
1st Floor
2,512 Ft
2
2nd Floor
5
Bedrooms
5.5
Bathrooms
3
Garage
2
Stories
80' 11"
Width
97' 5"
Depth
35' 2"
Height
10' 0"
Main Floor Ceiling
9' 0"
Upper Floor Ceiling
2x4
Framing
Stick
Roof Framing
6
Primary Roof Pitch
Single
Dwelling Number

Unheated Living Space
938 Ft
2
Garage
37 Ft
2
Porch
412 Ft
2
Deck
433 Ft
2
Patio
 

Plan Package Options

 Select Plan Package
Sale: $2,320
PDF Single Build
$2,900

Digital plans emailed to you in PDF format that allows for printing copies and sharing electronically with contractors, subs, decorators, and more. This package includes a license to build the home one time.

Sale: $2,320
Sale: $3,552
5 Printed Sets
$4,440

Five Printed Sets of Residential Construction Drawings are typically 24” x 36” documents and come with a license to construct a single residence shipped to a physical address. Keep in mind PDF Plan Packages are our most popular choice which allows you to print as many copies as you need and to electronically send files to your builder, subcontractors, etc.

Sale: $3,552
Sale: $3,552
CAD + PDF Single Build
$4,440

CAD files are a complete set of construction drawings delivered electronically. They can be used for any type of modification—including major design changes and engineering—and include a release granting permission to modify the plan. Most CAD plan orders are emailed the same or next business day.
 
This package also comes with a PDF set of plans and a copyright release for making modifications and printing unlimited copies.
 
CAD files are provided in .dwg format. For details on the specific CAD program used, please refer to the PLAN DETAILS section located above the floor plan on each plan’s page.

Sale: $3,552
 Need To Reverse Plan? (Optional)
$250
Readable Reverse

Reverse house plans with readable text and dimensions 

$250
  Select Foundation Option
  Add-Ons (Optional)
INCLUDED WITH YOUR PURCHASE

Free Ground shipping in the Continental U.S.

FREE

Design consultation with the architect or designer to discuss your plan

Home Building & Product Ideas Organizer

Sub Total
$0
Free Shipping
QUESTIONS OR NEED HELP ORDERING? LIVE CHAT OR CALL US AT 866-214-2242
Plan Packages

Each set of construction documents includes detailed, dimensioned floor plans, basic electric layouts, cross sections, roof details, cabinet layouts and elevations, as well as general IRC specifications. They contain virtually all of the information required to construct your home. The typical plan set does not include any plumbing, HVAC drawings, or engineering stamps due to the wide variety of specific needs, local codes, and climatic conditions. These details and specifications are easily obtained from your builder, contractors, and/or local engineers.

BEST PRICE GUARANTEE

find the same house plan (modifications included!) and package for less on another site, show us the URL and we'll give you the difference plus an additional 5% back.

100% SATISFACTION GUARANTEE

We offer a one-time, 30-day exchange policy for unused, non-electronic plan packages in the event you aren't satisfied with your first selection.

 
 

Plan 4700  Back to plan page

Loading...