Get discounts,
promos, see our
newest plans
and more!
+ 15% off any plan
See terms opt out anytime


No Thanks

Thanks for
signing up!


Use Code:

SIGNUP15

And save 15% off any plan!

Check your email for details.

CLOSE
Search Plans
Customer Reviews
     
15% off ALL House Plans Sitewide
15% off ALL House Plans Sitewide
15% off ALL House Plans Sitewide

Code: HONOR
Sale ends midnight 5/29/2026 PST

Sq Ft
2,525 FT²

Beds
3

Baths
2.5

Stories
2

Garage
2

Depth
45' 6"

Width
53'
On Sale
$1,746.75
$2,055.00
© copyright by designer
 View All 7 Images | Photographs may reflect modified home
Sq Ft
2,525 FT²
Beds
3
Baths
2.5
Stories
2
Garage
2
Depth
45' 6"
Width
53'
 
Click to Zoom In on Floor Plan
© copyright by designer
 
 

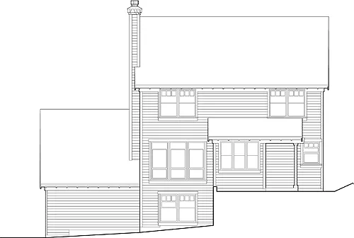
About This Plan

Designed for a side sloping lot, this dwelling provides unusual flexibility and abundant space for your family to grow and change. At the lower foundation level, space is reserved for a private bedroom and bath suite. On the main floor, a bonus room with a dormer offers quarters for a home office, a playroom, a teen retreat, or whatever facilities suit your family. Storage abounds at every level. Magnificent features accent the main floor. Windows and the front door are crowned with transoms. The formal foyer soars two stories high. Eight-foot-tall columns help define the living and dining rooms. Impressive French doors open to the private den and to the bonus room. Comfort and convenience reign in the communal area across the rear of the house. The gourmet kitchen revolves around an island with a downdraft cooktop and snack bar. Wrapped in windows, the adjacent dining nook provides a sunny site for family meals. The family room is cheered by a fireplace.

The top floor houses the master suite, two additional bedrooms, a bath with a laundry chute and linen storage, and a large linen closet. The glamorous master suite provides the ultimate retreat for two. Accessed by double doors, the master bedroom features a tray ceiling and handsome built-in storage. A passageway to the bath is flanked by walk-in closets.

The bath is fitted with two independent vanities, a whirlpool tub, a shower, and a private toilet enclosure. 


See All Plan Options
 

FEATURES & DETAILS

Foundation Options
Slab
Additional features
Home Office
Garage Location
Under
Garage Options
Attached
2,525 Ft
2
Total Heated
1,366 Ft
2
1st Floor
1,159 Ft
2
2nd Floor
3
Bedrooms
2.5
Bathrooms
2
Garage
2
Stories
53' 0"
Width
45' 6"
Depth
42' 0"
Height
9' 1"' 0"
Main Floor Ceiling
8' 1"' 0"
Upper Floor Ceiling
2x6
Framing
Truss
Roof Framing
8/12
Primary Roof Pitch
Single
Dwelling Number

Unheated Living Space
465 Ft
2
Bonus Room
Collections
 

Plan Package Options

 Select Plan Package
 Need To Reverse Plan? (Optional)
  Select Foundation Option
  Add-Ons (Optional)
INCLUDED WITH YOUR PURCHASE

Free Ground shipping in the U.S.

FREE

Home Building & Product Ideas Organizer

Sub Total
$0
Free Shipping
QUESTIONS OR NEED HELP ORDERING? LIVE CHAT OR CALL US AT 866-214-2242
Plan Packages

Each set of construction documents typically includes detailed, dimensioned floor plans, basic electric layouts, cross sections, roof details, cabinet layouts, and elevations, as well as general IRC specifications. Please refer to the ARCHITECT or DESIGNER’S PLAN DETAILS link above the floor plan on any plan page to determine the specific details for each plan. Our house plans contain virtually all of the information required to construct your home. The typical plan set does not include plumbing, HVAC drawings, or engineering stamps due to the wide variety of specific needs, local codes, and climatic conditions. These details and specifications are easily obtained from your builder, contractors, and/or local engineers.

BEST PRICE GUARANTEE

Find the same house plan (modifications included!) and package for less on another site, show us the URL and we'll give you the difference plus an additional 10% back.

100% SATISFACTION GUARANTEE

We offer a one-time, 30-day exchange policy for unused, printed plan packages in the event you aren't satisfied with your first selection.

 
 

Plan 2611  Back to plan page

Loading...