Get discounts,
promos, see our
newest plans
and more!
+ 15% off any plan
See terms opt out anytime


No Thanks

Thanks for
signing up!


Use Code:

SIGNUP15

And save 15% off any plan!

Check your email for details.

CLOSE
Search Plans
Customer Reviews
     
17% Off House Plans Sitewide Ends Sunday
17% Off House Plans Sitewide Ends Sunday
17% Off House Plans Sitewide Ends Sunday

Code: SAVE17
Sale ends midnight 12/14/2025 PST

Sq Ft
2,684 FT²

Beds
4

Baths
3

Stories
1.5

Garage
3

Depth
57'

Width
62' 4"
On Sale
$954.50
$1,150.00
© copyright by designer
 View All 3 Images | Photographs may reflect modified home
Sq Ft
2,684 FT²
Beds
4
Baths
3
Stories
1.5
Garage
3
Depth
57'
Width
62' 4"
 
Click to Zoom In on Floor Plan
© copyright by designer
 
 

About This Plan

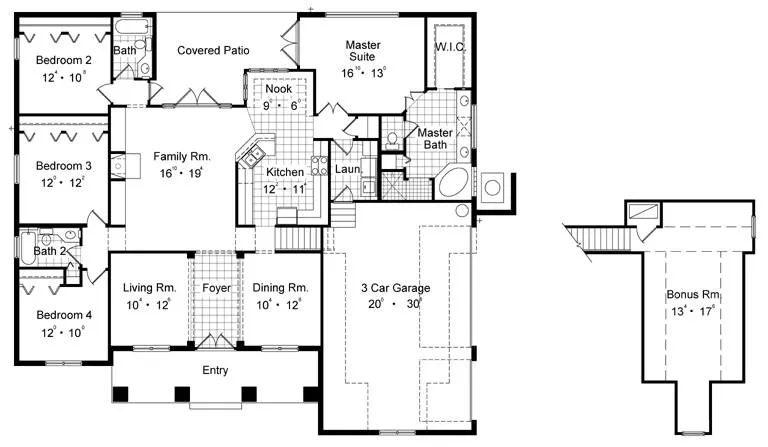
A new twist on an old favorite, our Hds-1758 and Hds-2089 with a fresh new look and a bonus room too. Alluring arches give this house bold curb appeal. Formal living/dining spaces bring tradition back to house design. Bedroom 2 is perfect for in-laws and guests with private pool bath. Bedroom 4 can easily become home office/library with double doors that can open into living room. Kitchen is a dream with plenty of counter space and bar seating. The nook is large and has windows on two sides to let in plenty of light from the covered patio area. Double doors open into master suite with grand bed wall, sumptuous bath with step down "doorless" shower. A stairway frrom the family room, dining room area leads to the bonus space above the garage. 

See All Plan Options
 

FEATURES & DETAILS

Foundation Options
Basement
Crawlspace
Slab
Garage Location
Side
Garage Options
Attached
2,684 Ft
2
Total Heated
2,258 Ft
2
1st Floor
4
Bedrooms
3
Bathrooms
3
Garage
1.5
Stories
62' 4"
Width
57' 0"
Depth
Block
Framing
Truss
Roof Framing
6/12
Primary Roof Pitch
Single
Dwelling Number

Unheated Living Space
652 Ft
2
Garage
195 Ft
2
Porch
207 Ft
2
Patio
426 Ft
2
Bonus Room
Exterior Styles
 

Plan Package Options

 Select Plan Package
Sale: $581
PDF Bid Set
$700

PDFs NOW!™

Home plans stamped "NOT FOR CONSTRUCTION" for cost estimating and bidding purposes only; a minimum 5 set plan package must be purchased within 90 days for a license to build plan set; a credit will be applied towards your house plan upgrade

Sale: $581
Sale: $954
PDF Single Build
$1,150

PDFs NOW!™

Digital plans emailed to you in PDF format that allows for printing copies and sharing electronically with contractors, subs, decorators, and more. This package includes a license to build the home one time.

Sale: $954
Sale: $1,120
5 Printed Sets
$1,350

Five Printed Sets of Residential Construction Drawings are typically 24” x 36” documents and come with a license to construct a single residence shipped to a physical address. Keep in mind PDF Plan Packages are our most popular choice which allows you to print as many copies as you need and to electronically send files to your builder, subcontractors, etc.

Sale: $1,120
Sale: $1,245
5 Printed Sets + PDF
$1,500

PDFs NOW!™

Digital plan emailed to you in PDF format that allows for printing copies on a home printer or local print shop and sharing with contractors, subs, decorators, and more. PLUS five printed sets shipped and delivered 3-5 business days.

Sale: $1,245
Sale: $1,909
CAD + PDF Single Build
$2,300

CAD files are a complete set of construction drawings delivered electronically. They can be used for any type of modification—including major design changes and engineering—and include a release granting permission to modify the plan. Most CAD plan orders are emailed the same or next business day.
 
This package also comes with a PDF set of plans and a copyright release for making modifications and printing unlimited copies.
 
CAD files are provided in .dwg format. For details on the specific CAD program used, please refer to the PLAN DETAILS section located above the floor plan on each plan’s page.

Sale: $1,909
  Select Foundation Option
  Add-Ons (Optional)
INCLUDED WITH YOUR PURCHASE

Free Ground shipping in the Continental U.S.

FREE

Design consultation with the architect or designer to discuss your plan

Home Building & Product Ideas Organizer

Sub Total
$0
Free Shipping
QUESTIONS OR NEED HELP ORDERING? LIVE CHAT OR CALL US AT 866-214-2242
Plan Packages

Each set of construction documents includes detailed, dimensioned floor plans, basic electric layouts, cross sections, roof details, cabinet layouts and elevations, as well as general IRC specifications. They contain virtually all of the information required to construct your home. The typical plan set does not include any plumbing, HVAC drawings, or engineering stamps due to the wide variety of specific needs, local codes, and climatic conditions. These details and specifications are easily obtained from your builder, contractors, and/or local engineers.

BEST PRICE GUARANTEE

find the same house plan (modifications included!) and package for less on another site, show us the URL and we'll give you the difference plus an additional 5% back.

100% SATISFACTION GUARANTEE

We offer a one-time, 30-day exchange policy for unused, non-electronic plan packages in the event you aren't satisfied with your first selection.

 
 

Plan 6420  Back to plan page

Loading...