Get discounts,
promos, see our
newest plans
and more!
+ 15% off any plan
See terms opt out anytime


No Thanks

Thanks for
signing up!


Use Code:

SIGNUP15

And save 15% off any plan!

Check your email for details.

CLOSE
Search Plans
Customer Reviews
     
20% off ALL House Plans Sitewide
20% off ALL House Plans Sitewide
20% off ALL House Plans Sitewide

Code: HONOR20
Sale ends midnight 5/25/2026 PST

Jackson 2 4 Bedroom Craftsman Style House, Plan 9580

 
 

Sq Ft
2,754 FT²

Beds
4

Baths
3

Stories
1

Garage
2

Depth
50'

Width
50'
On Sale
$1,576.00
$1,970.00
© copyright by designer
 View All 6 Images | Photographs may reflect modified home
Sq Ft
2,754 FT²
Beds
4
Baths
3
Stories
1
Garage
2
Depth
50'
Width
50'
 
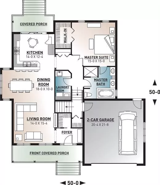
Click to Zoom In on Floor Plan
© copyright by designer
 
 

About This Plan

As at home in a development as it is in an orchard, this design combines country charm with Craftsman appeal. With both the flexibility of an open floor plan and traditionally defined rooms. Two windows and glass front door invite light inside, and front porch extend living space outdoors. The bonus room is perfectly positioned to create an additional bedroom, home gym, or playroom for the kids. This home has plenty of space for growing families. 

See All Plan Options
 

FEATURES & DETAILS

Kitchen features
Nook / Breakfast Area
Peninsula / Eating Bar
Walk-in Pantry
Bedroom features
2 Primary Suites
Double Vanity Sink
Guest Suite
His and Hers Primary Closets
Primary Bdrm Main Floor
Separate Tub and Shower
Sitting Area
Split Bedrooms
Walk-in Closet
Exterior features
Covered Front Porch
Covered Rear Porch
Deck
Front Porch
Foundation Options
Basement
Crawlspace
Slab
Lot Options
Suited for view lot
Additional features
Family Room
Formal LR
Foyer
Great Room
Home Office
In-law Suite
Laundry 1st Fl
Mud Room
Open Floor Plan
Rec Room
Storage Space
Garage Location
Front
Garage Options
Attached
Front-entry
2,754 Ft
2
Total Heated
2,754 Ft
2
1st Floor
1,377 Ft
2
2nd Floor
1,377 Ft
2
Lower Floor
4
Bedrooms
3
Bathrooms
2
Garage
1
Stories
50' 0"
Width
50' 0"
Depth
26' 10"
Height
9' 0"
Main Floor Ceiling
2x6
Framing
Truss
Roof Framing
9/12
Primary Roof Pitch
7/12
Secondary Roof Pitch
Single
Dwelling Number
None
Bonus Access

Unheated Living Space
480 Ft
2
Garage
 

Plan Package Options

 Select Plan Package
 Need To Reverse Plan? (Optional)
  Select Foundation Option
  Add-Ons (Optional)
INCLUDED WITH YOUR PURCHASE

Free Ground shipping in the U.S.

FREE

Home Building & Product Ideas Organizer

Sub Total
$0
Free Shipping
Please allow 3-5 business days for delivery of this plan Please check our PDFs NOW collection for plans that can be downloaded and received immediately or live chat us to help you find a similar plan available now.
QUESTIONS OR NEED HELP ORDERING? LIVE CHAT OR CALL US AT 866-214-2242
Plan Packages

Each set of construction documents typically includes detailed, dimensioned floor plans, basic electric layouts, cross sections, roof details, cabinet layouts, and elevations, as well as general IRC specifications. Please refer to the ARCHITECT or DESIGNER’S PLAN DETAILS link above the floor plan on any plan page to determine the specific details for each plan. Our house plans contain virtually all of the information required to construct your home. The typical plan set does not include plumbing, HVAC drawings, or engineering stamps due to the wide variety of specific needs, local codes, and climatic conditions. These details and specifications are easily obtained from your builder, contractors, and/or local engineers.

BEST PRICE GUARANTEE

Find the same house plan (modifications included!) and package for less on another site, show us the URL and we'll give you the difference plus an additional 10% back.

100% SATISFACTION GUARANTEE

We offer a one-time, 30-day exchange policy for unused, printed plan packages in the event you aren't satisfied with your first selection.

 
 

Plan 9580  Back to plan page

Loading...