Get discounts,
promos, see our
newest plans
and more!
+ 15% off any plan
See terms opt out anytime


No Thanks

Thanks for
signing up!


Use Code:

SIGNUP15

And save 15% off any plan!

Check your email for details.

CLOSE
Search Plans
Customer Reviews
     
15% off ALL House Plans Sitewide
15% off ALL House Plans Sitewide
15% off ALL House Plans Sitewide

Code: SAVE15
Sale ends midnight 4/22/2026 PST

Sq Ft
1,693 FT²

Beds
3

Baths
2

Stories
1.5

Garage
2

Depth
50'

Width
38'
On Sale
$1,305.60
$1,536.00
© copyright by designer
 View All 4 Images | Photographs may reflect modified home
Sq Ft
1,693 FT²
Beds
3
Baths
2
Stories
1.5
Garage
2
Depth
50'
Width
38'
 
Click to Zoom In on Floor Plan
© copyright by designer
 
 

About This Plan

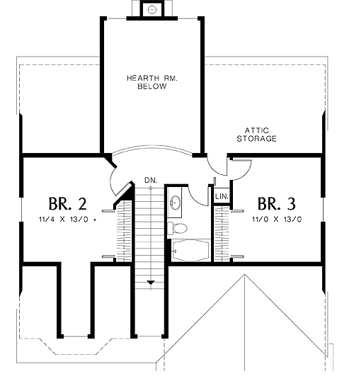
Quaint and comfortable, this Cape Cod plan offers split-bedroom planning, with the master suite on the main level and family bedrooms upstairs. Horizontal siding on the exterior complements two dormer windows and high gable roof, in the Colonial tradition. Living and dining rooms are open to one another; the living room features an enchanting bay window. For more casual occasions, the hearth room is vaulted, has a fireplace and is near the modified C-shaped kitchen. Tucked behind the garage, the master suite has a private bath and long wall closet. A laundry alcove graces the service entry to the two-car garage. The upper level has a wonderful balcony overlook in the hall, which separates the second-level bedrooms. Note the dormer window in Bedroom 2 and linen storage just outside Bedroom 3. Convenient attic storage opens from the upstairs hall.
 

See All Plan Options
 

FEATURES & DETAILS

Bedroom features
Primary Bdrm Main Floor
Foundation Options
Basement
Crawlspace
Slab
Garage Location
Front
Garage Options
Attached
Front-entry
1,693 Ft
2
Total Heated
1,150 Ft
2
1st Floor
543 Ft
2
2nd Floor
3
Bedrooms
2
Bathrooms
2
Garage
1.5
Stories
38' 0"
Width
50' 0"
Depth
24' 8"
Height
Varies' 0"
Main Floor Ceiling
8' 0"
Upper Floor Ceiling
2x6
Framing
Stick
Roof Framing
10/12
Primary Roof Pitch
Single
Dwelling Number

Unheated Living Space
434 Ft
2
Garage
Exterior Styles
 

Plan Package Options

 Select Plan Package
 Need To Reverse Plan? (Optional)
  Select Foundation Option
  Add-Ons (Optional)
INCLUDED WITH YOUR PURCHASE

Free Ground shipping in the U.S.

FREE

Home Building & Product Ideas Organizer

Sub Total
$0
Free Shipping
QUESTIONS OR NEED HELP ORDERING? LIVE CHAT OR CALL US AT 866-214-2242
Plan Packages

Each set of construction documents typically includes detailed, dimensioned floor plans, basic electric layouts, cross sections, roof details, cabinet layouts, and elevations, as well as general IRC specifications. Please refer to the ARCHITECT or DESIGNER’S PLAN DETAILS link above the floor plan on any plan page to determine the specific details for each plan. Our house plans contain virtually all of the information required to construct your home. The typical plan set does not include plumbing, HVAC drawings, or engineering stamps due to the wide variety of specific needs, local codes, and climatic conditions. These details and specifications are easily obtained from your builder, contractors, and/or local engineers.

BEST PRICE GUARANTEE

Find the same house plan (modifications included!) and package for less on another site, show us the URL and we'll give you the difference plus an additional 10% back.

100% SATISFACTION GUARANTEE

We offer a one-time, 30-day exchange policy for unused, printed plan packages in the event you aren't satisfied with your first selection.

 
 

Plan 2482  Back to plan page

Loading...