Get discounts,
promos, see our
newest plans
and more!
+ 15% off any plan
See terms opt out anytime


No Thanks

Thanks for
signing up!


Use Code:

SIGNUP15

And save 15% off any plan!

Check your email for details.

CLOSE
Search Plans
     
20% Off House Plans Sitewide Ends Tuesday
20% Off House Plans Sitewide Ends Tuesday
20% Off House Plans Sitewide Ends Tuesday

Code: VET20
Sale ends midnight 11/11/2025 PST

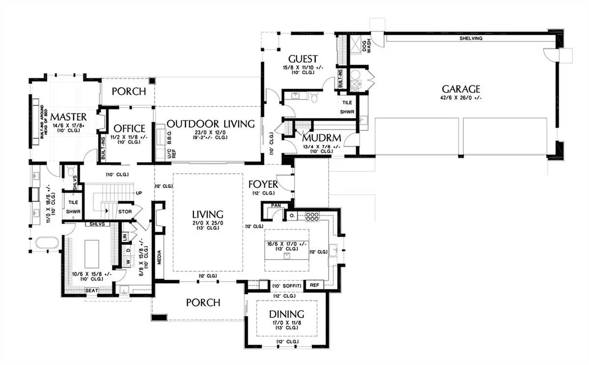
Ellis Two Story Contemporary Prairie Style House, Plan 5263

 
 

Sq Ft
3,882 FT²

Beds
4

Baths
4

Stories
2

Garage
4

Depth
115'

Width
68' 6"
On Sale
$1,860.00
$2,325.00
© copyright by designer
 View All 5 Images | Photographs may reflect modified home
Sq Ft
3,882 FT²
Beds
4
Baths
4
Stories
2
Garage
4
Depth
115'
Width
68' 6"
 
Click to Zoom In on Floor Plan
© copyright by designer
 
 

About This Plan

The best of both modern and Craftsman styles are joined together to create this amazing 2-story contemporary plan. A large layout of 3,882 square feet is both open and practical, offering 4 bedrooms, each with their own walk-in closet and en-suite. That includes the first-floor master and its spa bath, along with the nearby closet which is one of the most impressive spaces that you have ever seen. The first floor also has a fully private guest suite, while the second floor has 2 auxiliary bedroom spaces. Also on the first floor is an amazing 4-car garage, an open living room, gourmet kitchen and dining room, along with a private office and discreet laundry room. Upstairs has an open air loft and second-floor balcony, making for great multi-functionality, perfect for whatever you and your family may need. 

See All Plan Options
 

FEATURES & DETAILS

Kitchen features
Country Kitchen
Kitchen Island
Walk-in Pantry
Bedroom features
Guest Suite
Primary Bdrm Main Floor
Split Bedrooms
Walk-in Closet
Exterior features
Courtyard
Covered Front Porch
Covered Rear Porch
Front Porch
Rear Porch
Foundation Options
Basement
Crawlspace
Slab
Additional features
Home Office
Laundry 1st Fl
Loft / Balcony
Mud Room
Open Floor Plan
Vaulted Ceilings
Garage Location
Side
Garage Options
Attached
Side-entry
3,882 Ft
2
Total Heated
2,900 Ft
2
1st Floor
982 Ft
2
2nd Floor
4
Bedrooms
4
Bathrooms
4
Garage
2
Stories
68' 6"
Width
115' 0"
Depth
25' 6"
Height
10' 0"
Main Floor Ceiling
9' 0"
Upper Floor Ceiling
2x6
Framing
Truss
Roof Framing
4/12
Primary Roof Pitch
Single
Dwelling Number

Unheated Living Space
1,163 Ft
2
Garage
 

Plan Package Options

 Select Plan Package
Sale: $1,860
PDF Single Build
$2,325

Digital plans emailed to you in PDF format that allows for printing copies and sharing electronically with contractors, subs, decorators, and more. This package includes a license to build the home one time.

Sale: $1,860
Sale: $2,100
5 Printed Sets + PDF
$2,625

Digital plan emailed to you in PDF format that allows for printing copies on a home printer or local print shop and sharing with contractors, subs, decorators, and more. PLUS five printed sets shipped and delivered 3-5 business days.

Sale: $2,100
Sale: $3,720
CAD + PDF Single Build
$4,650

CAD files are a complete set of construction drawings delivered electronically. They can be used for any type of modification—including major design changes and engineering—and include a release granting permission to modify the plan. Most CAD plan orders are emailed the same or next business day.
 
This package also comes with a PDF set of plans and a copyright release for making modifications and printing unlimited copies.
 
CAD files are provided in .dwg format. For details on the specific CAD program used, please refer to the PLAN DETAILS section located above the floor plan on each plan’s page.

Sale: $3,720
 Need To Reverse Plan? (Optional)
$250
Readable Reverse

Reverse house plans with readable text and dimensions 

$250
  Select Foundation Option
  Add-Ons (Optional)
INCLUDED WITH YOUR PURCHASE

Free Ground shipping in the Continental U.S.

FREE

Design consultation with the architect or designer to discuss your plan

Home Building & Product Ideas Organizer

Sub Total
$0
Free Shipping
QUESTIONS OR NEED HELP ORDERING? LIVE CHAT OR CALL US AT 866-214-2242
Plan Packages

Each set of construction documents includes detailed, dimensioned floor plans, basic electric layouts, cross sections, roof details, cabinet layouts and elevations, as well as general IRC specifications. They contain virtually all of the information required to construct your home. The typical plan set does not include any plumbing, HVAC drawings, or engineering stamps due to the wide variety of specific needs, local codes, and climatic conditions. These details and specifications are easily obtained from your builder, contractors, and/or local engineers.

BEST PRICE GUARANTEE

find the same house plan (modifications included!) and package for less on another site, show us the URL and we'll give you the difference plus an additional 5% back.

100% SATISFACTION GUARANTEE

We offer a one-time, 30-day exchange policy for unused, non-electronic plan packages in the event you aren't satisfied with your first selection.

 
 

Plan 5263  Back to plan page

Loading...