Get discounts,
promos, see our
newest plans
and more!
+ 15% off any plan
See terms opt out anytime


No Thanks

Thanks for
signing up!


Use Code:

SIGNUP15

And save 15% off any plan!

Check your email for details.

CLOSE
Search Plans
Customer Reviews
     

Sq Ft
2,977 FT²

Beds
4

Baths
2.5

Stories
2

Garage
3

Depth
46' 6"

Width
62'
From
$2,115.00
© copyright by designer
 View All 5 Images | Photographs may reflect modified home
Sq Ft
2,977 FT²
Beds
4
Baths
2.5
Stories
2
Garage
3
Depth
46' 6"
Width
62'
 
Click to Zoom In on Floor Plan
© copyright by designer
 
 

About This Plan

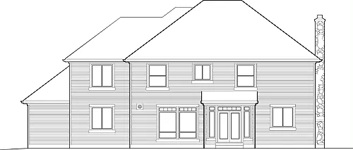
This home presents an exceptionally friendly face with its 16-foot-long porch, an inviting front door with sidelites and transom, and an oval window. Interior amenities also exude a sociable personality-a two-story foyer anchored by a majestic staircase and accented by an overhead plant shelf, living and dining rooms open to the foyer and each other, and a gather-round fireplace in the living room. The spacious kitchen and family room area is suited to today's style of casual entertaining. Stretches of countertop in the kitchen provide workstations for more than one cook. Fitted with a downdraft cooktop, the island serves as the cooking station and offers seating for kibitzers. The family room is graced with a built-in media center and fireplace. The double-sided gas fireplace is shared with the den. Windows across the rear wall and French doors in the dining nook link the interior to nature.

The second floor hosts the master bedroom and bath, three additional bedrooms, a compartmentalized bath, and a bonus room. A full-service laundry room with sink, cabinets, and counter is located upstairs with the bedrooms, where most laundry is generated. 


See All Plan Options
 

FEATURES & DETAILS

Foundation Options
Basement
Crawlspace
Slab
Additional features
Home Office
Garage Location
Front
Garage Options
Attached
Front-entry
2,977 Ft
2
Total Heated
1,570 Ft
2
1st Floor
1,407 Ft
2
2nd Floor
4
Bedrooms
2.5
Bathrooms
3
Garage
2
Stories
62' 0"
Width
46' 6"
Depth
31' 0"
Height
9' 1"' 0"
Main Floor Ceiling
8' 1"' 0"
Upper Floor Ceiling
2x6
Framing
9/12
Primary Roof Pitch
Single
Dwelling Number

Unheated Living Space
661 Ft
2
Garage
235 Ft
2
Bonus Room
Exterior Styles
 

Plan Package Options

 Select Plan Package
$2,440
5 Printed Sets + PDF

Includes 5 physical printed blueprints shipped and delivered within 3-5 business days and a copyright release license to construct one home and to make copies. A complimentary PDF plan set is also emailed within 1 business day for easy sharing and local printing. 

$2,440
$2,115
PDF Single Build

Digital plans emailed to you in PDF format that allows for printing copies and sharing electronically with contractors, subs, decorators, and more. This package includes a license to build the home one time.

$2,115
$4,230
CAD + PDF Single Build

This plan package is created in AutoCAD and delivered in .DWG format. CAD files are intended for use by design professionals, structural engineers, and builders to update plans for local building codes or to make revisions based on specific needs, lot requirements, and budget considerations. A complimentary PDF copy is included with this package for reference. CAD packages are delivered within 1 to 2 business days.
 
This package also comes with a copyright release for making revisions and printing unlimited copies.

For details on the specific CAD program used, please refer to the PLAN DETAILS section located above the floor plan on each plan page.

$4,230
 Need To Reverse Plan? (Optional)
$250
Readable Reverse

Reverse house plans with readable text and dimensions 

$250
  Select Foundation Option
  Add-Ons (Optional)
INCLUDED WITH YOUR PURCHASE

Free Ground shipping in the Continental U.S.

FREE

Home Building & Product Ideas Organizer

Sub Total
$0
Free Shipping
QUESTIONS OR NEED HELP ORDERING? LIVE CHAT OR CALL US AT 866-214-2242
Plan Packages

Each set of construction documents includes detailed, dimensioned floor plans, basic electric layouts, cross sections, roof details, cabinet layouts and elevations, as well as general IRC specifications. They contain virtually all of the information required to construct your home. The typical plan set does not include any plumbing, HVAC drawings, or engineering stamps due to the wide variety of specific needs, local codes, and climatic conditions. These details and specifications are easily obtained from your builder, contractors, and/or local engineers.

BEST PRICE GUARANTEE

Find the same house plan (modifications included!) and package for less on another site, show us the URL and we'll give you the difference plus an additional 5% back.

100% SATISFACTION GUARANTEE

We offer a one-time, 30-day exchange policy for unused, printed plan packages in the event you aren't satisfied with your first selection. Exchanges are subject to a 20% restocking fee.

 
 

Plan 2578  Back to plan page

Loading...