Get discounts,
promos, see our
newest plans
and more!
+ 15% off any plan
See terms opt out anytime


No Thanks

Thanks for
signing up!


Use Code:

SIGNUP15

And save 15% off any plan!

Check your email for details.

CLOSE
Search Plans
Customer Reviews
     
15% off ALL House Plans Sitewide
15% off ALL House Plans Sitewide
15% off ALL House Plans Sitewide

Code: HONOR
Sale ends midnight 5/31/2026 PST

Two Story 4 Bedroom Craftsman Style House, Plan 1159

 
 

Sq Ft
3,172 FT²

Beds
4

Baths
2.5

Stories
2

Garage
2

Depth
47'

Width
73'
On Sale
$1,827.50
$2,150.00
© copyright by designer
 View All 31 Images | Photographs may reflect modified home
Sq Ft
3,172 FT²
Beds
4
Baths
2.5
Stories
2
Garage
2
Depth
47'
Width
73'
 
Click to Zoom In on Floor Plan
© copyright by designer
 
 

About This Plan

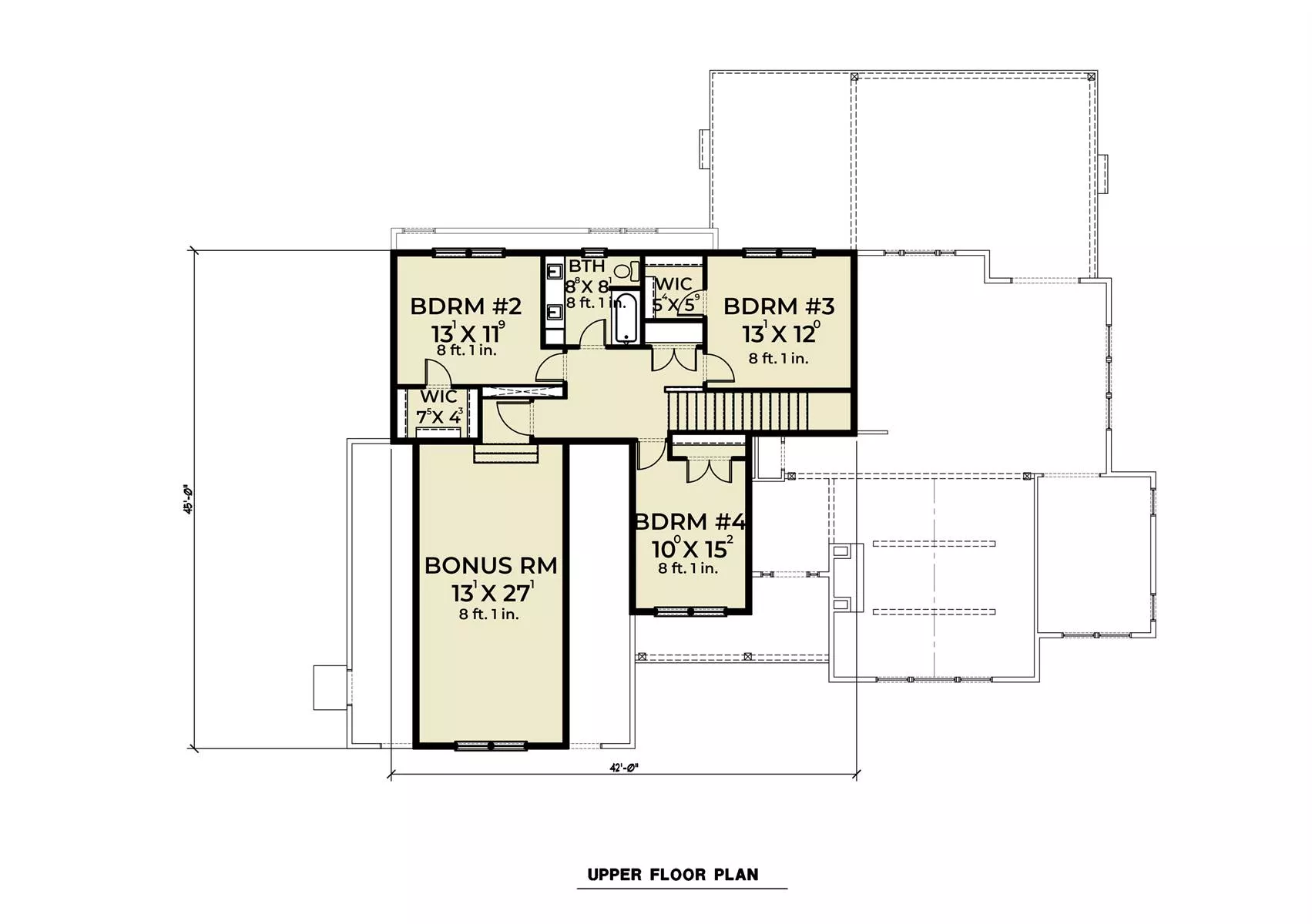
This 3,172 square foot house plan features Craftsman-styling inside and out! The vaulted family room has a wood-burning fireplace that's open to the L-shaped kitchen with island seating and dining room. The master bedroom is complete with a dual vanity sink, separate tub and shower and walk-in closet. The mud room and half bath are conveniently located at the entry from the two-car garage. Tucked behind the kitchen is a walk-in pantry and laundry room, complete with space for folding and ironing. A 10' x 14' home office is located at the front of the home with lots of windows. Upstairs features three bedrooms, a full bath, plus a bonus room above the garage.

 

  

See All Plan Options
 

FEATURES & DETAILS

Kitchen features
Country Kitchen
Kitchen Island
Bedroom features
Double Vanity Sink
Primary Bdrm Main Floor
Separate Tub and Shower
Split Bedrooms
Walk-in Closet
Exterior features
Covered Front Porch
Covered Rear Porch
Deck
Foundation Options
Crawlspace
Additional features
Bonus Room
Dining Room
Family Room
Fireplace
Home Office
Laundry 1st Fl
Mud Room
Open Floor Plan
Garage Location
Side
Garage Options
Attached
3,922 Ft
2
Total Structure
3,172 Ft
2
Total Heated
1,955 Ft
2
1st Floor
814 Ft
2
2nd Floor
4
Bedrooms
2.5
Bathrooms
2
Garage
2
Stories
73' 0"
Width
47' 0"
Depth
27' 5"
Height
9' 0"
Main Floor Ceiling
8' 0"
Upper Floor Ceiling
2x6
Framing
Truss
Roof Framing
10/12
Primary Roof Pitch
8/12
Secondary Roof Pitch
Single
Dwelling Number

Unheated Living Space
750 Ft
2
Garage
344 Ft
2
Porch
403 Ft
2
Bonus Room
 

Plan Package Options

 Select Plan Package
 Need To Reverse Plan? (Optional)
  Select Foundation Option
  Add-Ons (Optional)
INCLUDED WITH YOUR PURCHASE

Free Ground shipping in the U.S.

FREE

Home Building & Product Ideas Organizer

Sub Total
$0
Free Shipping
QUESTIONS OR NEED HELP ORDERING? LIVE CHAT OR CALL US AT 866-214-2242
Plan Packages

Each set of construction documents typically includes detailed, dimensioned floor plans, basic electric layouts, cross sections, roof details, cabinet layouts, and elevations, as well as general IRC specifications. Please refer to the ARCHITECT or DESIGNER’S PLAN DETAILS link above the floor plan on any plan page to determine the specific details for each plan. Our house plans contain virtually all of the information required to construct your home. The typical plan set does not include plumbing, HVAC drawings, or engineering stamps due to the wide variety of specific needs, local codes, and climatic conditions. These details and specifications are easily obtained from your builder, contractors, and/or local engineers.

BEST PRICE GUARANTEE

Find the same house plan (modifications included!) and package for less on another site, show us the URL and we'll give you the difference plus an additional 10% back.

100% SATISFACTION GUARANTEE

We offer a one-time, 30-day exchange policy for unused, printed plan packages in the event you aren't satisfied with your first selection.

 
 

Plan 1159  Back to plan page

Loading...