Get discounts,
promos, see our
newest plans
and more!
+ 15% off any plan
See terms opt out anytime


No Thanks

Thanks for
signing up!


Use Code:

SIGNUP15

And save 15% off any plan!

Check your email for details.

CLOSE
Search Plans
Customer Reviews
     
15% off ALL House Plans Sitewide
15% off ALL House Plans Sitewide
15% off ALL House Plans Sitewide

Code: SAVE15
Sale ends midnight 4/19/2026 PST

Farmhouse 824 Beautiful Two-Story Country House, Plan 7444

 
 

Sq Ft
3,190 FT²

Beds
4

Baths
2.5

Stories
2

Garage
2

Depth
80' 6"

Width
79' 11"
On Sale
$1,827.50
$2,150.00
© copyright by designer
 View All 39 Images | Photographs may reflect modified home
Sq Ft
3,190 FT²
Beds
4
Baths
2.5
Stories
2
Garage
2
Depth
80' 6"
Width
79' 11"
 
Click to Zoom In on Floor Plan
© copyright by designer
 
 

About This Plan

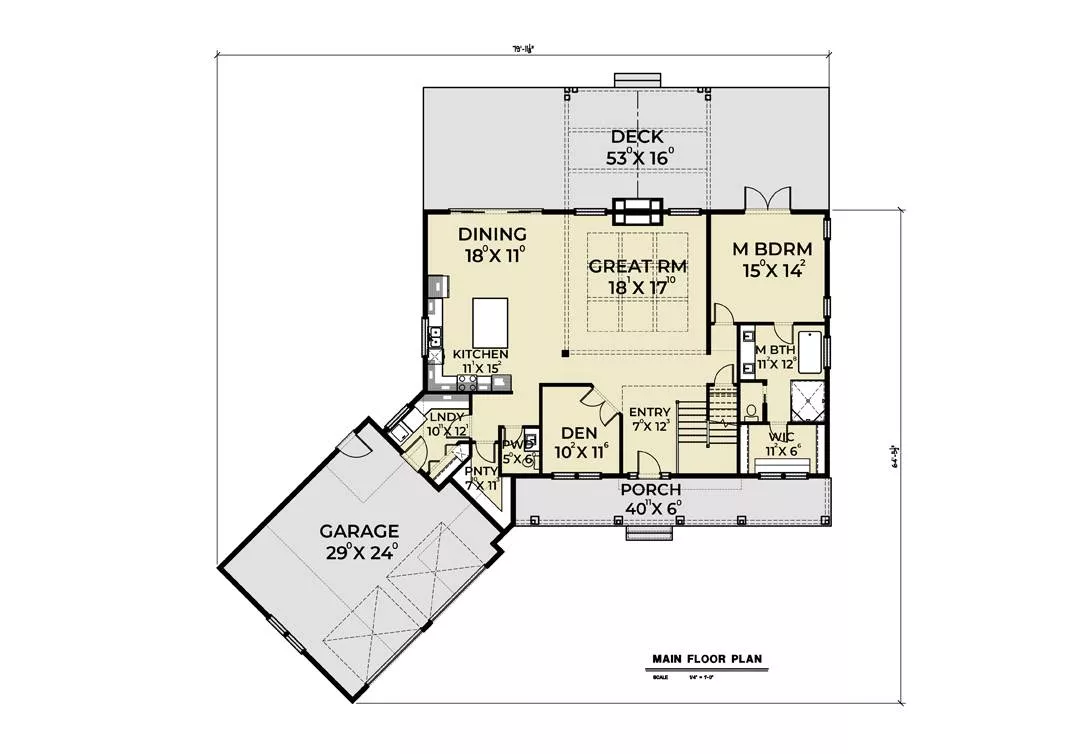
Southern charm pours out of every inch of this farm house style plan. Boasting a comfortable 2,849 square feet of living space, this home is as welcoming as it is cozy. A gently sloping roofline peaks in to a wraparound covered front porch and a functional 2-story design. Park your car inside the conveniently attached 2-car garage before stepping up on to your spacious porch. Enjoy a cold glass of lemonade on a hot summer’s day or a hot cup of coffee on a brisk spring morning, the enjoyment lasts year round! Enter through the front door and step foot on to the spacious foyer. Nearby is a formal den that can double as an office, while directly ahead lies an expansive open layout. Here you will love to find that the great room joins with the dining nook and island kitchen. In fact, the great room shares a double sided fireplace with the covered back deck area which is accessible via the dining room. Finally, the first floor is completed with the convenient master suite, complete with a large bathroom featuring dual vanities, as well as a spacious walk-in closet. The second floor is home to three more bedrooms, all of which provide ample space and share a full hallway bath, while looking down on the great room below. The addition of a large bonus room that spans the garage gives this home the benefit of being flexible to whatever you or your family may need! 

See All Plan Options
 

FEATURES & DETAILS

Kitchen features
Kitchen Island
Walk-in Pantry
Bedroom features
Double Vanity Sink
Primary Bdrm Main Floor
Separate Tub and Shower
Walk-in Closet
Exterior features
Covered Front Porch
Covered Rear Porch
Foundation Options
Crawlspace
Additional features
Bonus Room
Dining Room
Fireplace
Great Room
Home Office
Laundry 1st Fl
Library/Media Rm
Mud Room
Open Floor Plan
Vaulted Ceilings
Garage Location
Front
Garage Options
Attached
Front-entry
2,849 Ft
2
Total Structure
3,190 Ft
2
Total Heated
1,928 Ft
2
1st Floor
921 Ft
2
2nd Floor
4
Bedrooms
2.5
Bathrooms
2
Garage
2
Stories
79' 11"
Width
80' 6"
Depth
28' 10"
Height
9' 0"
Main Floor Ceiling
8' 0"
Upper Floor Ceiling
2x6
Framing
Truss
Roof Framing
10:12
Primary Roof Pitch
6:12
Secondary Roof Pitch
Single
Dwelling Number

Unheated Living Space
709 Ft
2
Garage
592 Ft
2
Patio
341 Ft
2
Bonus Room
 

Plan Package Options

 Select Plan Package
 Need To Reverse Plan? (Optional)
  Select Foundation Option
  Add-Ons (Optional)
INCLUDED WITH YOUR PURCHASE

Free Ground shipping in the U.S.

FREE

Home Building & Product Ideas Organizer

Sub Total
$0
Free Shipping
QUESTIONS OR NEED HELP ORDERING? LIVE CHAT OR CALL US AT 866-214-2242
Plan Packages

Each set of construction documents typically includes detailed, dimensioned floor plans, basic electric layouts, cross sections, roof details, cabinet layouts, and elevations, as well as general IRC specifications. Please refer to the ARCHITECT or DESIGNER’S PLAN DETAILS link above the floor plan on any plan page to determine the specific details for each plan. Our house plans contain virtually all of the information required to construct your home. The typical plan set does not include plumbing, HVAC drawings, or engineering stamps due to the wide variety of specific needs, local codes, and climatic conditions. These details and specifications are easily obtained from your builder, contractors, and/or local engineers.

BEST PRICE GUARANTEE

Find the same house plan (modifications included!) and package for less on another site, show us the URL and we'll give you the difference plus an additional 10% back.

100% SATISFACTION GUARANTEE

We offer a one-time, 30-day exchange policy for unused, printed plan packages in the event you aren't satisfied with your first selection.

 
 

Plan 7444  Back to plan page

Loading...