Get discounts,
promos, see our
newest plans
and more!
+ 15% off any plan
See terms opt out anytime


No Thanks

Thanks for
signing up!


Use Code:

SIGNUP15

And save 15% off any plan!

Check your email for details.

CLOSE
Search Plans
Customer Reviews
     
15% off ALL House Plans Sitewide
15% off ALL House Plans Sitewide
15% off ALL House Plans Sitewide

Code: HONOR
Sale ends midnight 5/29/2026 PST

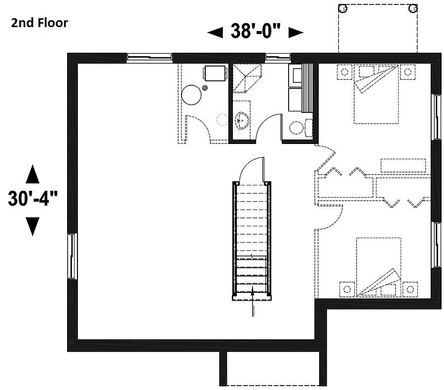
Barrington Affordable Ranch Style House, Plan 4705

 
 

Sq Ft
1,102 FT²

Beds
2

Baths
1

Stories
1

Garage
0

Depth
30' 4"

Width
38'
On Sale
$1,275.00
$1,500.00
© copyright by designer
 View All 6 Images | Photographs may reflect modified home
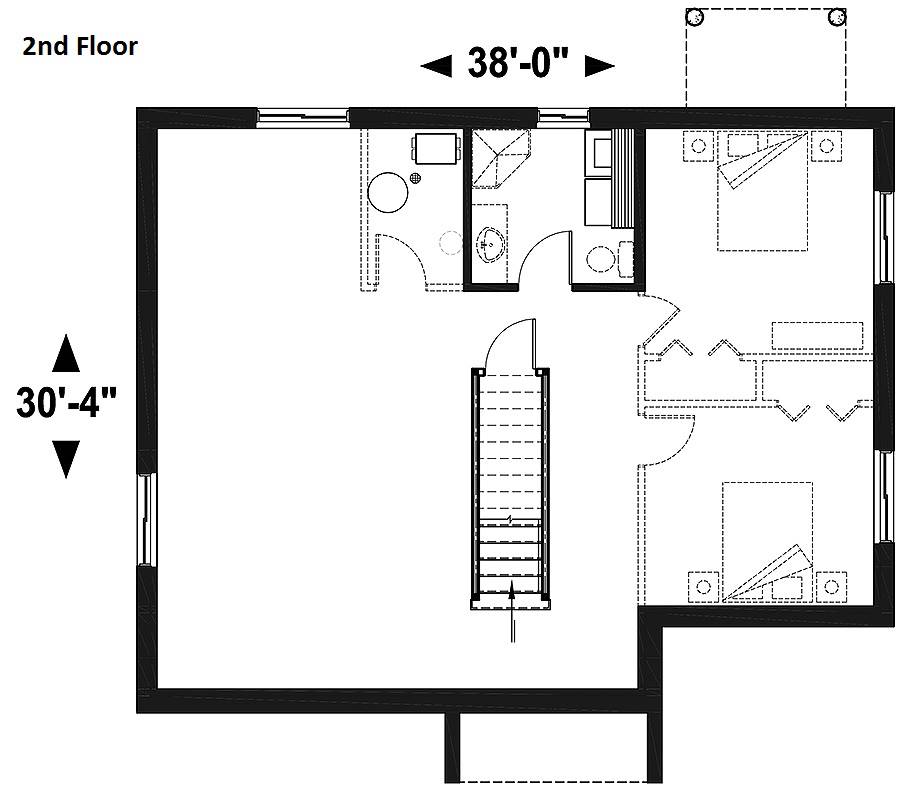
Sq Ft
1,102 FT²
Beds
2
Baths
1
Stories
1
Garage
0
Depth
30' 4"
Width
38'
 
Click to Zoom In on Floor Plan
© copyright by designer
 
 

About This Plan

Dynamic and affordable, this ranch style house plan offers an amazing layout with space that can adapt with your lifestyle. 1,102 square feet make up this 2 bedroom, 1 bathroom home. However, there is a surprise tucked away within the walls. This plan offers a basement that is slated as an unfinished space but can be adapted to house 2 additional bedrooms, a bathroom, and a secondary living space. By choosing this home, you are getting a plan that can grow with your family.  A charming front entryway, complete with craftsman finishes and stunning, ornate windows, gives this home maximum curb appeal. Upon entering, you are greeted with a grand foyer along with a coat closet which is great for guests and visitors. The open floor plan of this home then gives way to a grand living room which is connected to a formal dining room and eat-in kitchen. Majestic exposed beams highlight the vaulted ceiling and give the space a grandiose feel. This space also opens to an outdoor living area thanks to the sliding glass doors off of the dining room. A master bedroom with dual closets shares a bathroom with a second bedroom.  The second bedroom boasts a large walk-in closet, a true bonus for a non-master bedroom. A covered front porch at the front of the home completes the floor plan and beckons visitors indoors to enjoy all that this home has to offer.


See All Plan Options
 

FEATURES & DETAILS

Kitchen features
Kitchen Island
Bedroom features
Primary Bdrm Main Floor
Walk-in Closet
Foundation Options
Basement
Crawlspace
Slab
Additional features
Dining Room
Family Room
Fireplace
Laundry 1st Fl
Open Floor Plan
Vaulted Ceilings
Garage Location
None
Garage Options
None
1,102 Ft
2
Total Heated
1,102 Ft
2
1st Floor
1,102 Ft
2
Basement
2
Bedrooms
1
Bathrooms
0
Garage
1
Stories
38' 0"
Width
30' 4"
Depth
21' 0"
Height
8' 0"
Main Floor Ceiling
2x6
Framing
Truss
Roof Framing
Single
Dwelling Number

Unheated Living Space
38 Ft
2
Porch
 

Plan Package Options

 Select Plan Package
 Need To Reverse Plan? (Optional)
  Select Foundation Option
  Add-Ons (Optional)
INCLUDED WITH YOUR PURCHASE

Free Ground shipping in the U.S.

FREE

Home Building & Product Ideas Organizer

Sub Total
$0
Free Shipping
Please allow 3-5 business days for delivery of this plan Please check our PDFs NOW collection for plans that can be downloaded and received immediately or live chat us to help you find a similar plan available now.
QUESTIONS OR NEED HELP ORDERING? LIVE CHAT OR CALL US AT 866-214-2242
Plan Packages

Each set of construction documents typically includes detailed, dimensioned floor plans, basic electric layouts, cross sections, roof details, cabinet layouts, and elevations, as well as general IRC specifications. Please refer to the ARCHITECT or DESIGNER’S PLAN DETAILS link above the floor plan on any plan page to determine the specific details for each plan. Our house plans contain virtually all of the information required to construct your home. The typical plan set does not include plumbing, HVAC drawings, or engineering stamps due to the wide variety of specific needs, local codes, and climatic conditions. These details and specifications are easily obtained from your builder, contractors, and/or local engineers.

BEST PRICE GUARANTEE

Find the same house plan (modifications included!) and package for less on another site, show us the URL and we'll give you the difference plus an additional 10% back.

100% SATISFACTION GUARANTEE

We offer a one-time, 30-day exchange policy for unused, printed plan packages in the event you aren't satisfied with your first selection.

 
 

Plan 4705  Back to plan page

Loading...