Get discounts,
promos, see our
newest plans
and more!
+ 15% off any plan
See terms opt out anytime


No Thanks

Thanks for
signing up!


Use Code:

SIGNUP15

And save 15% off any plan!

Check your email for details.

CLOSE
Search Plans
Customer Reviews
     
15% off ALL House Plans Sitewide
15% off ALL House Plans Sitewide
15% off ALL House Plans Sitewide

Code: HONOR
Sale ends midnight 5/22/2026 PST

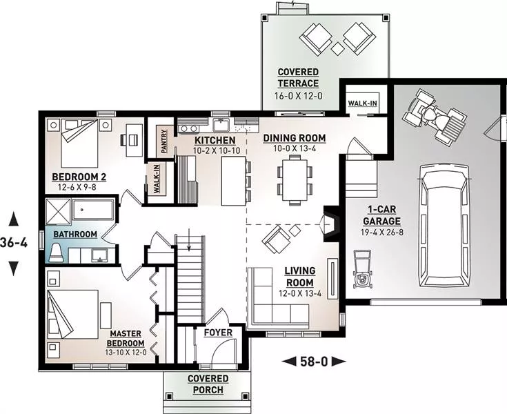
Barrington 2 - Top Selling Ranch Style House, Plan 7307

 
 

Sq Ft
1,240 FT²

Beds
2

Baths
1

Stories
1

Garage
1

Depth
36' 4"

Width
58'
On Sale
$1,283.50
$1,510.00
© copyright by designer
 View All 4 Images | Photographs may reflect modified home
Sq Ft
1,240 FT²
Beds
2
Baths
1
Stories
1
Garage
1
Depth
36' 4"
Width
58'
 
Click to Zoom In on Floor Plan
© copyright by designer
 
 

About This Plan

This 1,240 square foot 2 bedroom, 1 bath affordable, builder-friendly ranch style house plan is a mix of trendy modern and rustic. The front entrance has a coat closet located in the foyer that leads into the living room and dining room. The living room and dining room has an open concept with a fireplace located between them. The kitchen has a walk-in pantry and an island with seating for three. Off of the dining room is a covered terrace with sliding door access. The master bedroom has two closets and a full bathroom located in the hallway outside of the bedroom. There is a walk-in closet in the secondary bedroom. The garage can be accessed from the dining room, with a mud room and walk-in at the entrance.

 

See All Plan Options
 

FEATURES & DETAILS

Kitchen features
Kitchen Island
Bedroom features
Primary Bdrm Main Floor
Nursery Room
Split Bedrooms
Walk-in Closet
Exterior features
Covered Front Porch
Covered Rear Porch
Foundation Options
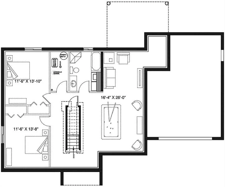
Basement
Crawlspace
Daylight Basement
Slab
Walkout Basement
Additional features
Arches
Family Room
Fireplace
Foyer
Mud Room
Open Floor Plan
Unfinished Space
Vaulted Ceilings
Garage Location
Front
Garage Options
Attached
Front-entry
Oversized
1,240 Ft
2
Total Heated
1,240 Ft
2
1st Floor
1,240 Ft
2
Lower Floor
2
Bedrooms
1
Bathrooms
1
Garage
1
Stories
58' 0"
Width
36' 4"
Depth
21' 10"
Height
8' 0"
Main Floor Ceiling
2x6
Framing
Truss
Roof Framing
Single
Dwelling Number

Unheated Living Space
 

Plan Package Options

 Select Plan Package
 Need To Reverse Plan? (Optional)
  Select Foundation Option
  Add-Ons (Optional)
INCLUDED WITH YOUR PURCHASE

Free Ground shipping in the U.S.

FREE

Home Building & Product Ideas Organizer

Sub Total
$0
Free Shipping
Please allow 3-5 business days for delivery of this plan Please check our PDFs NOW collection for plans that can be downloaded and received immediately or live chat us to help you find a similar plan available now.
QUESTIONS OR NEED HELP ORDERING? LIVE CHAT OR CALL US AT 866-214-2242
Plan Packages

Each set of construction documents typically includes detailed, dimensioned floor plans, basic electric layouts, cross sections, roof details, cabinet layouts, and elevations, as well as general IRC specifications. Please refer to the ARCHITECT or DESIGNER’S PLAN DETAILS link above the floor plan on any plan page to determine the specific details for each plan. Our house plans contain virtually all of the information required to construct your home. The typical plan set does not include plumbing, HVAC drawings, or engineering stamps due to the wide variety of specific needs, local codes, and climatic conditions. These details and specifications are easily obtained from your builder, contractors, and/or local engineers.

BEST PRICE GUARANTEE

Find the same house plan (modifications included!) and package for less on another site, show us the URL and we'll give you the difference plus an additional 10% back.

100% SATISFACTION GUARANTEE

We offer a one-time, 30-day exchange policy for unused, printed plan packages in the event you aren't satisfied with your first selection.

 
 

Plan 7307  Back to plan page

Loading...