Get discounts,
promos, see our
newest plans
and more!
+ 15% off any plan
See terms opt out anytime


No Thanks

Thanks for
signing up!


Use Code:

SIGNUP15

And save 15% off any plan!

Check your email for details.

CLOSE
Search Plans
Customer Reviews
     
22% Off House Plans Sitewide Ends Sunday

Code: SAVE22
Sale ends midnight 12/7/2025 PST

Sq Ft
1,527 FT²

Beds
3

Baths
2.5

Stories
2

Garage
1

Depth
61'

Width
18'
From
$2,281.00
© copyright by designer
 View All 4 Images | Photographs may reflect modified home
Sq Ft
1,527 FT²
Beds
3
Baths
2.5
Stories
2
Garage
1
Depth
61'
Width
18'
 
Click to Zoom In on Floor Plan
© copyright by designer
 
 

About This Plan

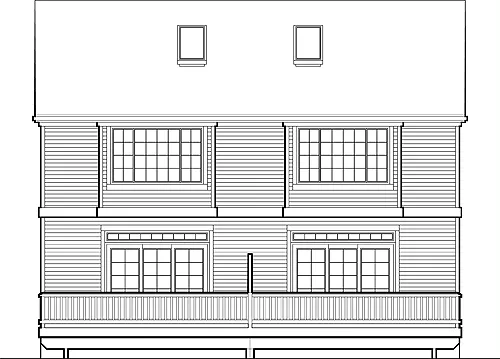
This quaint-looking cottage holds a secret - it is actually two separate, mirror-image units in one structure. Each side has identical floor space, opening from a covered angled entry. The raised foyer holds a half-bath and coat closet, plus stairs to the upper level. Under-stair storage is accessed via the half-bath. A large great room and open kitchen reside to the back of the plan. A nine-foot ceiling, corner fireplace and sliding glass doors to a rear deck make the great room special. A large pantry adds to kitchen storage.

The staircase is T-shaped and splits at the landing to Bedroom 3 on one side and the master suite and Bedroom 2 on the other. The master suite and the right-hand unit's Bedroom 3 features box-bay windows. Note the laundry alcove on the second floor and dual sinks in the master bath. A one-car garage at street level is reached by a door in the entry hall.
 


See All Plan Options
 

FEATURES & DETAILS

Kitchen features
Country Kitchen
Peninsula / Eating Bar
Walk-in Pantry
Bedroom features
Double Vanity Sink
Primary Bdrm Upstairs
Exterior features
Front Porch
Foundation Options
Basement
Crawlspace
Slab
Lot Options
Suited for narrow lot
Additional features
Dining Room
Fireplace
Foyer
Great Room
Laundry 2nd Fl
Open Floor Plan
Storage Space
Garage Location
Front
Garage Options
Attached
Front-entry
3,054 Ft
2
Total Structure
1,527 Ft
2
Unit Heated
637 Ft
2
1st Floor
890 Ft
2
2nd Floor
3
Bedrooms
2.5
Bathrooms
1
Garage
2
Stories
18' 0"
Width
61' 0"
Depth
28' 0"
Height
9' 0"
Main Floor Ceiling
8' 0"
Upper Floor Ceiling
2x6
Framing
Truss
Roof Framing
5/12
Primary Roof Pitch
7/12
Gable Roof Pitch
Duplex
Dwelling Number
None
Bonus Access

Unheated Living Space
284 Ft
2
Garage
Exterior Styles
Collections
 

Plan Package Options

 Select Plan Package
$2,281
PDF Single Build

Digital plans emailed to you in PDF format that allows for printing copies and sharing electronically with contractors, subs, decorators, and more. This package includes a license to build the home one time.

$2,281
$2,581
5 Printed Sets + PDF

Digital plan emailed to you in PDF format that allows for printing copies on a home printer or local print shop and sharing with contractors, subs, decorators, and more. PLUS five printed sets shipped and delivered 3-5 business days.

$2,581
$4,562
CAD + PDF Single Build

CAD files are a complete set of construction drawings delivered electronically. They can be used for any type of modification—including major design changes and engineering—and include a release granting permission to modify the plan. Most CAD plan orders are emailed the same or next business day.
 
This package also comes with a PDF set of plans and a copyright release for making modifications and printing unlimited copies.
 
CAD files are provided in .dwg format. For details on the specific CAD program used, please refer to the PLAN DETAILS section located above the floor plan on each plan’s page.

$4,562
 Need To Reverse Plan? (Optional)
$250
Readable Reverse

Reverse house plans with readable text and dimensions 

$250
  Select Foundation Option
  Add-Ons (Optional)
INCLUDED WITH YOUR PURCHASE

Free Ground shipping in the Continental U.S.

FREE

Design consultation with the architect or designer to discuss your plan

Home Building & Product Ideas Organizer

Sub Total
$0
Free Shipping
QUESTIONS OR NEED HELP ORDERING? LIVE CHAT OR CALL US AT 866-214-2242
Plan Packages

Each set of construction documents includes detailed, dimensioned floor plans, basic electric layouts, cross sections, roof details, cabinet layouts and elevations, as well as general IRC specifications. They contain virtually all of the information required to construct your home. The typical plan set does not include any plumbing, HVAC drawings, or engineering stamps due to the wide variety of specific needs, local codes, and climatic conditions. These details and specifications are easily obtained from your builder, contractors, and/or local engineers.

BEST PRICE GUARANTEE

find the same house plan (modifications included!) and package for less on another site, show us the URL and we'll give you the difference plus an additional 5% back.

100% SATISFACTION GUARANTEE

We offer a one-time, 30-day exchange policy for unused, non-electronic plan packages in the event you aren't satisfied with your first selection.

 
 

Plan 2770  Back to plan page

Loading...