Get discounts,
promos, see our
newest plans
and more!
+ 15% off any plan
See terms opt out anytime


No Thanks

Thanks for
signing up!


Use Code:

SIGNUP15

And save 15% off any plan!

Check your email for details.

CLOSE
Search Plans
Customer Reviews
     
22% Off House Plans Sitewide Ends Sunday

Code: SAVE22
Sale ends midnight 12/7/2025 PST

Sq Ft
2,004 FT²

Beds
4

Baths
2.5

Stories
2

Garage
2

Depth
54'

Width
48' 8"
From
$1,050.00
© copyright by designer
 View All 3 Images | Photographs may reflect modified home
Sq Ft
2,004 FT²
Beds
4
Baths
2.5
Stories
2
Garage
2
Depth
54'
Width
48' 8"
 
Click to Zoom In on Floor Plan
© copyright by designer
 
 

About This Plan

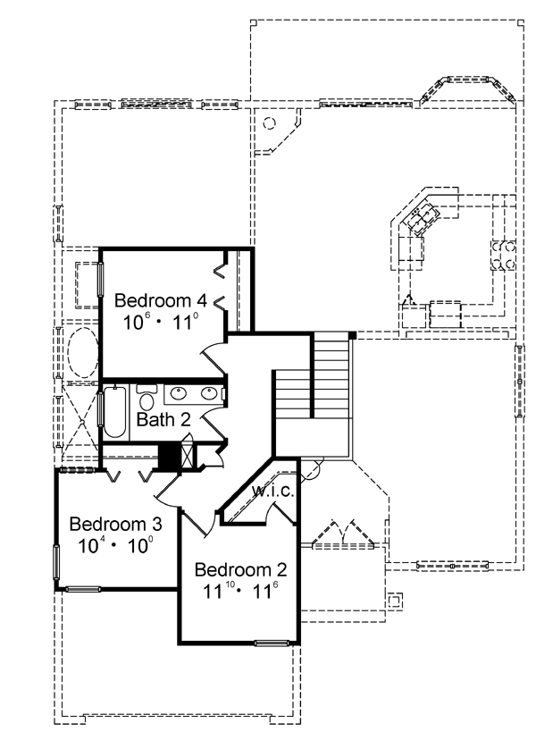
This, narrow lot, two story features an L shaped Family room/ nook, Master suite on the first floor, and even an optional third car garage. The formal living and dining room welcomes your clients into this magnificent home. The kitchen is large and open, spilling into the breakfast nook and family room allowing for smooth traffic flow and easy entertaining. The Master suite has its own sliding glass door and lots of windows for natural lighting. The Master Bath has his and her closets, tub, shower, and plenty of storage space. The remaining 3 bedrooms are found upstairs. All three bedrooms have ample space and storage. A laundry chute in the bath room is unexpected, clever, and quite functional, a feature any mother can appreciate. 

See All Plan Options
 

FEATURES & DETAILS

Exterior features
Rear Porch
Foundation Options
Basement
Crawlspace
Slab
Lot Options
Suited for narrow lot
Garage Location
Front
Garage Options
Attached
Front-entry
2,004 Ft
2
Total Heated
1,441 Ft
2
1st Floor
563 Ft
2
2nd Floor
4
Bedrooms
2.5
Bathrooms
2
Garage
2
Stories
48' 8"
Width
54' 0"
Depth
25' 4"
Height
8' 0"
Upper Floor Ceiling
8" Block/Wood
Framing
Truss
Roof Framing
6/12
Primary Roof Pitch
Single
Dwelling Number
None
Bonus Access

Unheated Living Space
482 Ft
2
Garage
166 Ft
2
Patio
 

Plan Package Options

 Select Plan Package
$600
PDF Bid Set

Home plans stamped "NOT FOR CONSTRUCTION" for cost estimating and bidding purposes only; a minimum 5 set plan package must be purchased within 90 days for a license to build plan set; a credit will be applied towards your house plan upgrade

$600
$1,050
PDF Single Build

Digital plans emailed to you in PDF format that allows for printing copies and sharing electronically with contractors, subs, decorators, and more. This package includes a license to build the home one time.

$1,050
$1,250
5 Printed Sets

Five Printed Sets of Residential Construction Drawings are typically 24” x 36” documents and come with a license to construct a single residence shipped to a physical address. Keep in mind PDF Plan Packages are our most popular choice which allows you to print as many copies as you need and to electronically send files to your builder, subcontractors, etc.

$1,250
$1,400
5 Printed Sets + PDF

Digital plan emailed to you in PDF format that allows for printing copies on a home printer or local print shop and sharing with contractors, subs, decorators, and more. PLUS five printed sets shipped and delivered 3-5 business days.

$1,400
$2,100
CAD + PDF Single Build

CAD files are a complete set of construction drawings delivered electronically. They can be used for any type of modification—including major design changes and engineering—and include a release granting permission to modify the plan. Most CAD plan orders are emailed the same or next business day.
 
This package also comes with a PDF set of plans and a copyright release for making modifications and printing unlimited copies.
 
CAD files are provided in .dwg format. For details on the specific CAD program used, please refer to the PLAN DETAILS section located above the floor plan on each plan’s page.

$2,100
  Select Foundation Option
  Add-Ons (Optional)
INCLUDED WITH YOUR PURCHASE

Free Ground shipping in the Continental U.S.

FREE

Design consultation with the architect or designer to discuss your plan

Home Building & Product Ideas Organizer

Sub Total
$0
Free Shipping
QUESTIONS OR NEED HELP ORDERING? LIVE CHAT OR CALL US AT 866-214-2242
Plan Packages

Each set of construction documents includes detailed, dimensioned floor plans, basic electric layouts, cross sections, roof details, cabinet layouts and elevations, as well as general IRC specifications. They contain virtually all of the information required to construct your home. The typical plan set does not include any plumbing, HVAC drawings, or engineering stamps due to the wide variety of specific needs, local codes, and climatic conditions. These details and specifications are easily obtained from your builder, contractors, and/or local engineers.

BEST PRICE GUARANTEE

find the same house plan (modifications included!) and package for less on another site, show us the URL and we'll give you the difference plus an additional 5% back.

100% SATISFACTION GUARANTEE

We offer a one-time, 30-day exchange policy for unused, non-electronic plan packages in the event you aren't satisfied with your first selection.

 
 

Plan 8919  Back to plan page

Loading...