Get discounts,
promos, see our
newest plans
and more!
+ 15% off any plan
See terms opt out anytime


No Thanks

Thanks for
signing up!


Use Code:

SIGNUP15

And save 15% off any plan!

Check your email for details.

CLOSE
Search Plans
Customer Reviews
     
15% off ALL House Plans Sitewide
15% off ALL House Plans Sitewide
15% off ALL House Plans Sitewide

Code: SAVE15
Sale ends midnight 4/19/2026 PST

Sq Ft
2,620 FT²

Beds
3

Baths
2

Stories
1.5

Garage
2

Depth
39'

Width
63'
On Sale
$935.00
$1,100.00
EXCLUSIVE PLAN
© copyright by designer
 View All 4 Images | Photographs may reflect modified home
Sq Ft
2,620 FT²
Beds
3
Baths
2
Stories
1.5
Garage
2
Depth
39'
Width
63'
 
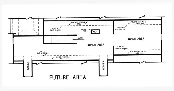
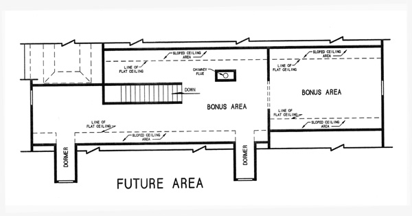
Click to Zoom In on Floor Plan
© copyright by designer
 
 

About This Plan

This memorable home abounds with windows and room to grow. A sumptuous dining area with windows on three sides is to the rear. The master suite is on the rear of the home and has a classic air of quality. The 2nd floor is depicted as future space which can be finished later. 

See All Plan Options
 

FEATURES & DETAILS

Kitchen features
Butler's Pantry
Peninsula / Eating Bar
Bedroom features
Walk-in Closet
Exterior features
Deck
Front Porch
Foundation Options
Crawlspace
Slab
Lot Options
Suited for corner lot
Additional features
Great Room
Unfinished Space
Vaulted Ceilings
Workshop
Garage Location
Side
Garage Options
Attached
Side-entry
3,132 Ft
2
Total Structure
2,620 Ft
2
Total Heated
1,617 Ft
2
1st Floor
1,003 Ft
2
2nd Floor
3
Bedrooms
2
Bathrooms
2
Garage
1.5
Stories
63' 0"
Width
39' 0"
Depth
23' 6"
Height
8' 0"
Main Floor Ceiling
8' 0"
Upper Floor Ceiling
2x4
Framing
Stick
Roof Framing
10/12
Primary Roof Pitch
Single
Dwelling Number
1st Floor
Bonus Access

Unheated Living Space
485 Ft
2
Garage
27 Ft
2
Porch
180 Ft
2
Patio
1,003 Ft
2
Bonus Room
 

Plan Package Options

 Select Plan Package
 Need To Reverse Plan? (Optional)
  Select Foundation Option
  Add-Ons (Optional)
INCLUDED WITH YOUR PURCHASE

Free Ground shipping in the U.S.

FREE

Home Building & Product Ideas Organizer

Sub Total
$0
Free Shipping
QUESTIONS OR NEED HELP ORDERING? LIVE CHAT OR CALL US AT 866-214-2242
Plan Packages

Each set of construction documents typically includes detailed, dimensioned floor plans, basic electric layouts, cross sections, roof details, cabinet layouts, and elevations, as well as general IRC specifications. Please refer to the ARCHITECT or DESIGNER’S PLAN DETAILS link above the floor plan on any plan page to determine the specific details for each plan. Our house plans contain virtually all of the information required to construct your home. The typical plan set does not include plumbing, HVAC drawings, or engineering stamps due to the wide variety of specific needs, local codes, and climatic conditions. These details and specifications are easily obtained from your builder, contractors, and/or local engineers.

BEST PRICE GUARANTEE

Find the same house plan (modifications included!) and package for less on another site, show us the URL and we'll give you the difference plus an additional 10% back.

100% SATISFACTION GUARANTEE

We offer a one-time, 30-day exchange policy for unused, printed plan packages in the event you aren't satisfied with your first selection.

 
 

Plan 7741  Back to plan page

Loading...