Get discounts,
promos, see our
newest plans
and more!
+ 15% off any plan
See terms opt out anytime


No Thanks

Thanks for
signing up!


Use Code:

SIGNUP15

And save 15% off any plan!

Check your email for details.

CLOSE
Search Plans
Customer Reviews
     
22% Off House Plans Sitewide Ends Sunday

Code: SAVE22
Sale ends midnight 12/7/2025 PST

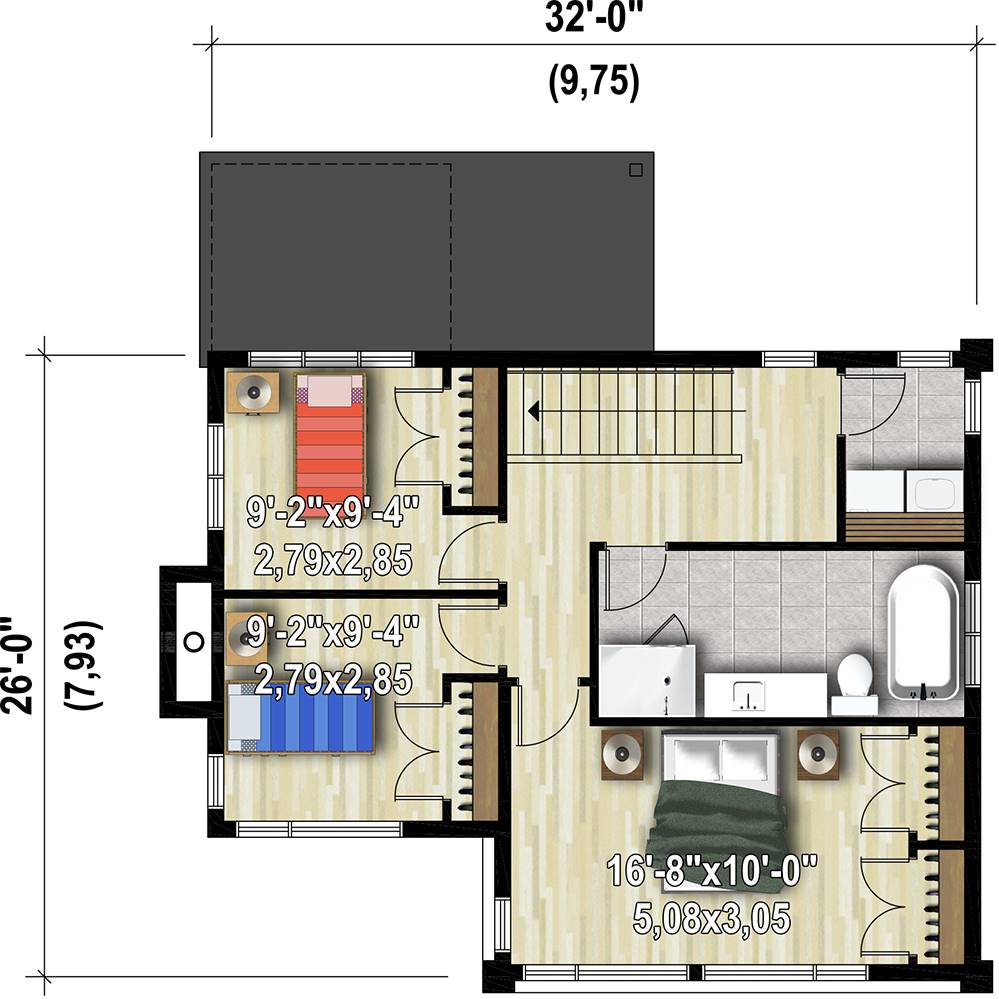
3 Bedroom Contemporary Style House, Plan 7576

 
 

Sq Ft
1,480 FT²

Beds
3

Baths
1.5

Stories
2

Garage
0

Depth
32'

Width
34'
From
$920.00
© copyright by designer
 View All 4 Images | Photographs may reflect modified home
Sq Ft
1,480 FT²
Beds
3
Baths
1.5
Stories
2
Garage
0
Depth
32'
Width
34'
 
Click to Zoom In on Floor Plan
© copyright by designer
 
 

About This Plan

An unforgettably unique design both inside and out, makes this contemporary house plan one that you’ll have to see to believe. A comfortable 2-story, 1,480 square foot floor plan provides plenty of space, including 3 bedrooms and 1.5 bathrooms. A sloping roof draws you in towards the front door where beyond you enter on to the air-lock foyer. From there, take note of the amazingly open main floor which finds the living room, dining room, and island kitchen all together via one large space, unencumbered by walls. Dual sliding glass doors open on to the amazing covered rear deck which has space for a full dining set, an entertainer’s dream. Upstairs you’ll find 3 bedrooms, including a spacious master suite with dual closets. All of the bedrooms share a bath which has a separate soaking tub and walk-in shower. A laundry room nearby makes for quick work of weekend chores. 

See All Plan Options
 

FEATURES & DETAILS

Kitchen features
Kitchen Island
Nook / Breakfast Area
Walk-in Pantry
Bedroom features
Primary Bdrm Upstairs
Exterior features
Covered Front Porch
Covered Rear Porch
Foundation Options
Basement
Lot Options
Suited for view lot
Additional features
Formal LR
Open Floor Plan
Garage Location
None
Garage Options
None
1,480 Ft
2
Total Heated
720 Ft
2
1st Floor
760 Ft
2
2nd Floor
3
Bedrooms
1.5
Bathrooms
0
Garage
2
Stories
34' 0"
Width
32' 0"
Depth
31' 6"
Height
9' 0"
Main Floor Ceiling
8' 0"
Upper Floor Ceiling
2x6
Framing
Truss
Roof Framing
4:12
Primary Roof Pitch
Single
Dwelling Number

Unheated Living Space
 

Plan Package Options

 Select Plan Package
$920
PDF Single Build

Digital plans emailed to you in PDF format that allows for printing copies and sharing electronically with contractors, subs, decorators, and more. This package includes a license to build the home one time.

$920
$965
5 Printed Sets

Five Printed Sets of Residential Construction Drawings are typically 24” x 36” documents and come with a license to construct a single residence shipped to a physical address. Keep in mind PDF Plan Packages are our most popular choice which allows you to print as many copies as you need and to electronically send files to your builder, subcontractors, etc.

$965
$1,055
5 Printed Sets + PDF

Digital plan emailed to you in PDF format that allows for printing copies on a home printer or local print shop and sharing with contractors, subs, decorators, and more. PLUS five printed sets shipped and delivered 3-5 business days.

$1,055
$1,940
CAD + PDF Single Build

CAD files are a complete set of construction drawings delivered electronically. They can be used for any type of modification—including major design changes and engineering—and include a release granting permission to modify the plan. Most CAD plan orders are emailed the same or next business day.
 
This package also comes with a PDF set of plans and a copyright release for making modifications and printing unlimited copies.
 
CAD files are provided in .dwg format. For details on the specific CAD program used, please refer to the PLAN DETAILS section located above the floor plan on each plan’s page.

$1,940
 Need To Reverse Plan? (Optional)
$150
Readable Reverse

Reverse house plans with readable text and dimensions 

$150
  Select Foundation Option
  Add-Ons (Optional)
INCLUDED WITH YOUR PURCHASE

Free Ground shipping in the Continental U.S.

FREE

Design consultation with the architect or designer to discuss your plan

Home Building & Product Ideas Organizer

Sub Total
$0
Free Shipping
Provinces of Québec and Ontario only: Purchasable options are 5 printed sets or 8 printed sets. PDF file and CAD file options are unavailable.
QUESTIONS OR NEED HELP ORDERING? LIVE CHAT OR CALL US AT 866-214-2242
Plan Packages

Each set of construction documents includes detailed, dimensioned floor plans, basic electric layouts, cross sections, roof details, cabinet layouts and elevations, as well as general IRC specifications. They contain virtually all of the information required to construct your home. The typical plan set does not include any plumbing, HVAC drawings, or engineering stamps due to the wide variety of specific needs, local codes, and climatic conditions. These details and specifications are easily obtained from your builder, contractors, and/or local engineers.

BEST PRICE GUARANTEE

find the same house plan (modifications included!) and package for less on another site, show us the URL and we'll give you the difference plus an additional 5% back.

100% SATISFACTION GUARANTEE

We offer a one-time, 30-day exchange policy for unused, non-electronic plan packages in the event you aren't satisfied with your first selection.

 
 

Plan 7576  Back to plan page

Loading...