Get discounts,
promos, see our
newest plans
and more!
+ 15% off any plan
See terms opt out anytime


No Thanks

Thanks for
signing up!


Use Code:

SIGNUP15

And save 15% off any plan!

Check your email for details.

CLOSE
Search Plans
Customer Reviews
     
15% off ALL House Plans Sitewide
15% off ALL House Plans Sitewide
15% off ALL House Plans Sitewide

Code: SAVE15
Sale ends midnight 4/12/2026 PST

Kazuna Two Story Mountain Cottage Style House, Plan 1245

 
 

Sq Ft
1,464 FT²

Beds
3

Baths
1.5

Stories
2

Garage
0

Depth
36'

Width
36'
On Sale
$1,066.75
$1,255.00
© copyright by designer
 View All 9 Images | Photographs may reflect modified home
Sq Ft
1,464 FT²
Beds
3
Baths
1.5
Stories
2
Garage
0
Depth
36'
Width
36'
 
Click to Zoom In on Floor Plan
© copyright by designer
 
 

About This Plan

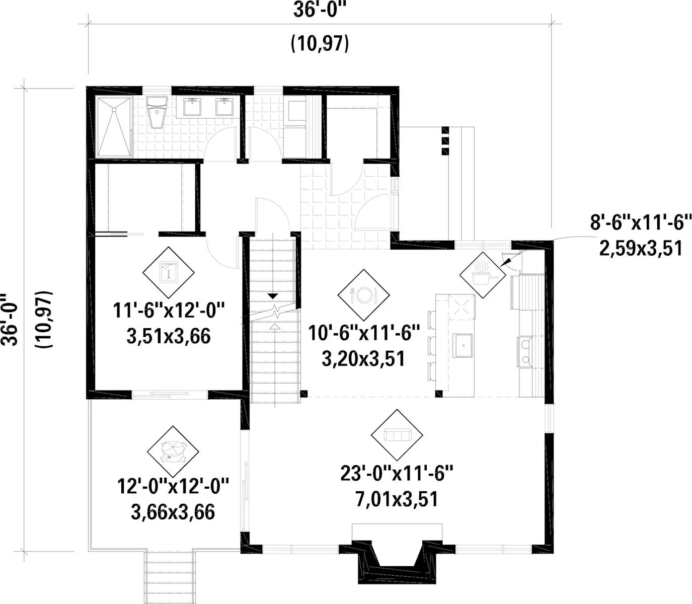
This affordably sized 1,464 sq. ft. modern cottage house plan takes on the deck house style and sets itself apart with its deep overhangs, ribbed metal roof and strategically placed clerestory windows.

Upon entrance, you’ll find the coat closet, laundry, and full bath. The gorgeous fireplace anchors the back wall in between two sets of vertical windows and the outside living space is accessed through sliding glass doors. The 2 story ceiling brings about airyness and enlarges the overall feel of the space. The cook of the home will have ease cooking in the 3 point efficient space and overflow seating is provided at the island.

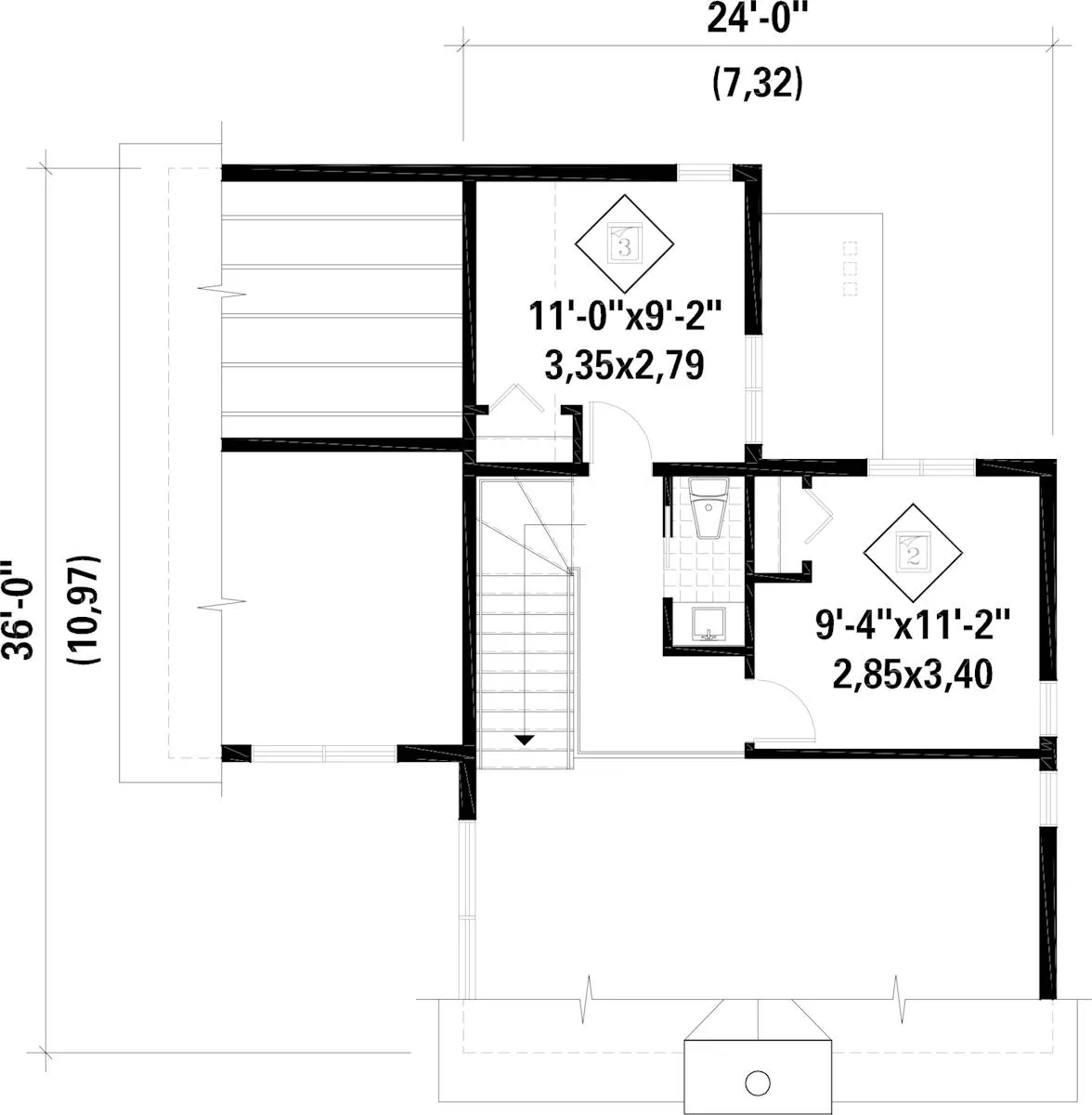
The main level hosts the master bedroom which also has private access to the deck as well as the only full bathroom of the house. Up the stairs you’ll find the remaining two bedrooms of the home as well as a half bath and the space is open below to the 2 story ceiling of the great room. 

See All Plan Options
 

FEATURES & DETAILS

Kitchen features
Kitchen Island
Bedroom features
Primary Bdrm Main Floor
Walk-in Closet
Exterior features
Deck
Lot Options
Suited for view lot
Additional features
Fireplace
Great Room
Laundry 1st Fl
Open Floor Plan
Garage Location
None
Garage Options
None
1,464 Ft
2
Total Heated
1,008 Ft
2
1st Floor
456 Ft
2
2nd Floor
3
Bedrooms
1.5
Bathrooms
0
Garage
2
Stories
36' 0"
Width
36' 0"
Depth
34' 0"
Height
10' 0"
Main Floor Ceiling
9' 0"
Upper Floor Ceiling
2x6
Framing
Truss
Roof Framing
8:12
Primary Roof Pitch
8:12
Secondary Roof Pitch
Single
Dwelling Number

Unheated Living Space
 

Plan Package Options

 Select Plan Package
 Need To Reverse Plan? (Optional)
  Select Foundation Option
  Add-Ons (Optional)
INCLUDED WITH YOUR PURCHASE

Free Ground shipping in the U.S.

FREE

Home Building & Product Ideas Organizer

Sub Total
$0
Free Shipping
Provinces of Québec and Ontario only: Purchasable options are 5 printed sets or 8 printed sets. PDF file and CAD file options are unavailable.
QUESTIONS OR NEED HELP ORDERING? LIVE CHAT OR CALL US AT 866-214-2242
Plan Packages

Each set of construction documents includes detailed, dimensioned floor plans, basic electric layouts, cross sections, roof details, cabinet layouts and elevations, as well as general IRC specifications. They contain virtually all of the information required to construct your home. The typical plan set does not include any plumbing, HVAC drawings, or engineering stamps due to the wide variety of specific needs, local codes, and climatic conditions. These details and specifications are easily obtained from your builder, contractors, and/or local engineers.

BEST PRICE GUARANTEE

Find the same house plan (modifications included!) and package for less on another site, show us the URL and we'll give you the difference plus an additional 10% back.

100% SATISFACTION GUARANTEE

We offer a one-time, 30-day exchange policy for unused, printed plan packages in the event you aren't satisfied with your first selection.

 
 

Plan 1245  Back to plan page

Loading...