Get discounts,
promos, see our
newest plans
and more!
+ 15% off any plan
See terms opt out anytime


No Thanks

Thanks for
signing up!


Use Code:

SIGNUP15

And save 15% off any plan!

Check your email for details.

CLOSE
Search Plans
Customer Reviews
     
15% Off House Plans Sitewide Ends Sunday

Code: SAVE15
Sale ends midnight 1/11/2026 PST

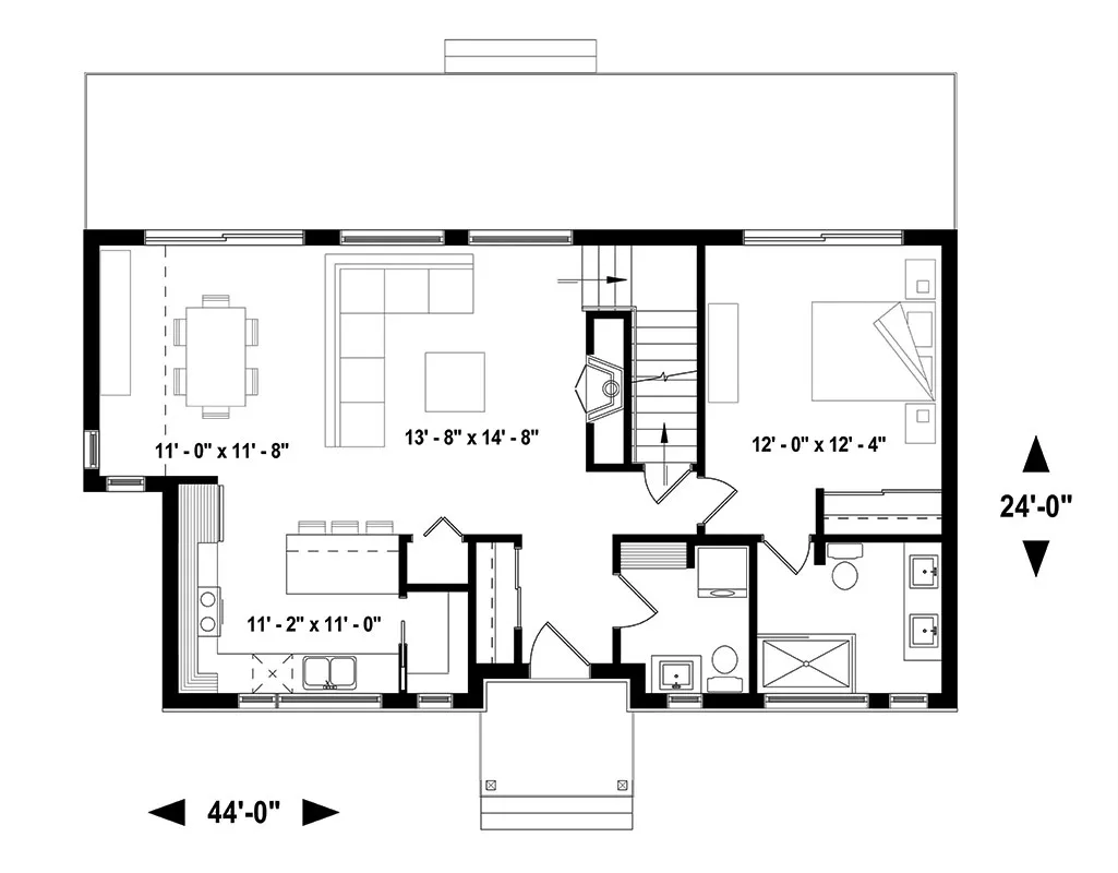
Magnolia House 2 1 Bedroom Cottage Style House, Plan 1459

 
 

Sq Ft
1,587 FT²

Beds
1

Baths
1.5

Stories
2

Garage
0

Depth
24'

Width
44'
From
$1,680.00
© copyright by designer
 View All 11 Images | Photographs may reflect modified home
Sq Ft
1,587 FT²
Beds
1
Baths
1.5
Stories
2
Garage
0
Depth
24'
Width
44'
 
Click to Zoom In on Floor Plan
© copyright by designer
 
 

About This Plan

For fans of simplified living, this cottage style plan is perfect. Best suited for a new couple or first-time home buyers, this 1 bedroom 1.5 bathroom home provides 2 stories and 1,587 square feet of living space, making it feel very large for a one bedroom. Modeled with a traditional farmhouse exterior and a ranch styled floor plan, this home is as functional as it is unique. A covered front entryway is paired with beautiful windows, but the true beauty of this home is its versatility on the exterior. Whether you want a stone or brick façade, or if hardy plank or vinyl siding is more your style, this plan can be adapted for anything. Upon entering this home, you are immediately greeted with a spacious grand foyer and coat closet, as well as a powder room that is great for guests. From there you move further inside in to the open layout in which the living room, dining room, and eat-in kitchen are all found. A spacious walk-in pantry and gracious cabinet space ensures that storage will never be an issue with this home. A first floor master suite completes the first and primary level of this floor plan. Off of the family room is a staircase leading to a second floor. While the original plan leaves the second floor unfinished, this space has endless uses. Whether you use it as an attic for more storage or elect to finish the space and add bedrooms or more living areas, this space is another opportunity to make this home one-of-a-kind. 

See All Plan Options
 

FEATURES & DETAILS

Kitchen features
Kitchen Island
Walk-in Pantry
Bedroom features
Double Vanity Sink
Primary Bdrm Main Floor
Exterior features
Covered Front Porch
Deck
Front Porch
Foundation Options
Basement
Crawlspace
Slab
Lot Options
Suited for narrow lot
Additional features
Dining Room
Family Room
Fireplace
Foyer
Great Room
Laundry 1st Fl
Open Floor Plan
Garage Options
None
1,587 Ft
2
Total Heated
1,000 Ft
2
1st Floor
587 Ft
2
2nd Floor
1
Bedrooms
1.5
Bathrooms
0
Garage
2
Stories
44' 0"
Width
24' 0"
Depth
25' 3"
Height
9' 0"
Main Floor Ceiling
8' 0"
Upper Floor Ceiling
2x6
Framing
Truss
Roof Framing
14/12
Primary Roof Pitch
Single
Dwelling Number

Unheated Living Space
 

Plan Package Options

 Select Plan Package
$1,820
3 Printed Sets + PDF

Includes 3 physical printed blueprints shipped and delivered within 3-5 business days and a copyright release license to construct one home and to make copies. A complimentary PDF plan set is also emailed within 1 business day for easy sharing and local printing. 

$1,820
$1,680
PDF Single Build

Digital plans emailed to you in PDF format that allows for printing copies and sharing electronically with contractors, subs, decorators, and more. This package includes a license to build the home one time.

$1,680
$2,680
CAD + PDF Single Build

This plan package is created in AutoCAD and delivered in .DWG format. CAD files are intended for use by design professionals, structural engineers, and builders to update plans for local building codes or to make revisions based on specific needs, lot requirements, and budget considerations. A complimentary PDF copy is included with this package for reference. CAD packages are delivered within 1 to 2 business days.
 
This package also comes with a copyright release for making revisions and printing unlimited copies.

For details on the specific CAD program used, please refer to the PLAN DETAILS section located above the floor plan on each plan page.

$2,680
 Need To Reverse Plan? (Optional)
$265
Readable Reverse

Reverse house plans with readable text and dimensions 

$265
  Select Foundation Option
  Add-Ons (Optional)
INCLUDED WITH YOUR PURCHASE

Free Ground shipping in the Continental U.S.

FREE

Home Building & Product Ideas Organizer

Sub Total
$0
Free Shipping
Please allow 3-5 business days for delivery of this plan Please check our PDFs NOW collection for plans that can be downloaded and received immediately or live chat us to help you find a similar plan available now.

Note: Please allow for 8 business days for plan delivery
QUESTIONS OR NEED HELP ORDERING? LIVE CHAT OR CALL US AT 866-214-2242
Plan Packages

Each set of construction documents includes detailed, dimensioned floor plans, basic electric layouts, cross sections, roof details, cabinet layouts and elevations, as well as general IRC specifications. They contain virtually all of the information required to construct your home. The typical plan set does not include any plumbing, HVAC drawings, or engineering stamps due to the wide variety of specific needs, local codes, and climatic conditions. These details and specifications are easily obtained from your builder, contractors, and/or local engineers.

BEST PRICE GUARANTEE

Find the same house plan (modifications included!) and package for less on another site, show us the URL and we'll give you the difference plus an additional 5% back.

100% SATISFACTION GUARANTEE

We offer a one-time, 30-day exchange policy for unused, printed plan packages in the event you aren't satisfied with your first selection. Exchanges are subject to a 20% restocking fee.

 
 

Plan 1459  Back to plan page

Loading...