Get discounts,
promos, see our
newest plans
and more!
+ 15% off any plan
See terms opt out anytime


No Thanks

Thanks for
signing up!


Use Code:

SIGNUP15

And save 15% off any plan!

Check your email for details.

CLOSE
Search Plans
Customer Reviews
     

Sq Ft
1,815 FT²

Beds
3

Baths
2.5

Stories
1.5

Garage
2

Depth
52'

Width
47'
From
$625.00
© copyright by designer
 View All 6 Images | Photographs may reflect modified home
Sq Ft
1,815 FT²
Beds
3
Baths
2.5
Stories
1.5
Garage
2
Depth
52'
Width
47'
 
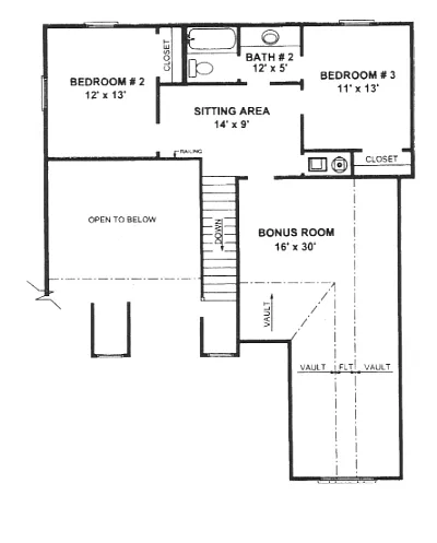
Click to Zoom In on Floor Plan
© copyright by designer
 
 

About This Plan

Decorative arches and windows give a metropolitan feel to this unique floor plan. Two floors and a bonus room offer more space for buyers with smaller lots. The awesome great room with grand ceilings and fireplace opens to a distinctively styled kitchen with a corner sink and a great view. The spacious master suite, dual closets and vanities, and large tub are icing on the cake for this wonderfully designed home. 

See All Plan Options
 

FEATURES & DETAILS

Kitchen features
Kitchen Island
Exterior features
Front Porch
Screened Porch/Sunroom
Foundation Options
Crawlspace
Slab
Lot Options
Suited for narrow lot
Additional features
Fireplace
Great Room
Garage Location
Front
Garage Options
Attached
Front-entry
1,815 Ft
2
Total Heated
1,257 Ft
2
1st Floor
558 Ft
2
2nd Floor
3
Bedrooms
2.5
Bathrooms
2
Garage
1.5
Stories
47' 0"
Width
52' 0"
Depth
28' 0"
Height
9' 0"
Main Floor Ceiling
8' 0"
Upper Floor Ceiling
2x4
Framing
8/12
Primary Roof Pitch
12:12
Gable Roof Pitch
12:12
Dormer Roof Pitch
5:12
Porch Roof Pitch
Single
Dwelling Number

Unheated Living Space
506 Ft
2
Garage
235 Ft
2
Porch
426 Ft
2
Bonus Room
Exterior Styles
 

Plan Package Options

 Select Plan Package
  Select Foundation Option
  Add-Ons (Optional)
INCLUDED WITH YOUR PURCHASE

Free Ground shipping in the Continental U.S.

FREE

Home Building & Product Ideas Organizer

Sub Total
$0
Free Shipping
QUESTIONS OR NEED HELP ORDERING? LIVE CHAT OR CALL US AT 866-214-2242
Plan Packages

Each set of construction documents includes detailed, dimensioned floor plans, basic electric layouts, cross sections, roof details, cabinet layouts and elevations, as well as general IRC specifications. They contain virtually all of the information required to construct your home. The typical plan set does not include any plumbing, HVAC drawings, or engineering stamps due to the wide variety of specific needs, local codes, and climatic conditions. These details and specifications are easily obtained from your builder, contractors, and/or local engineers.

BEST PRICE GUARANTEE

Find the same house plan (modifications included!) and package for less on another site, show us the URL and we'll give you the difference plus an additional 10% back.

100% SATISFACTION GUARANTEE

We offer a one-time, 30-day exchange policy for unused, printed plan packages in the event you aren't satisfied with your first selection. Exchanges are subject to a 20% restocking fee.

 
 

Plan 5924  Back to plan page

Loading...