Get discounts,
promos, see our
newest plans
and more!
+ 15% off any plan
See terms opt out anytime


No Thanks

Thanks for
signing up!


Use Code:

SIGNUP15

And save 15% off any plan!

Check your email for details.

CLOSE
Search Plans
Customer Reviews
     
22% Off House Plans Sitewide Ends Sunday

Code: SAVE22
Sale ends midnight 12/7/2025 PST

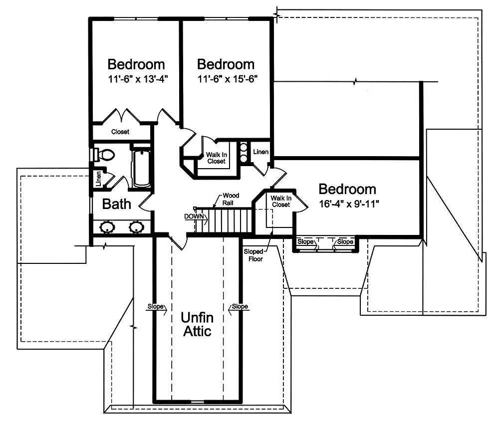
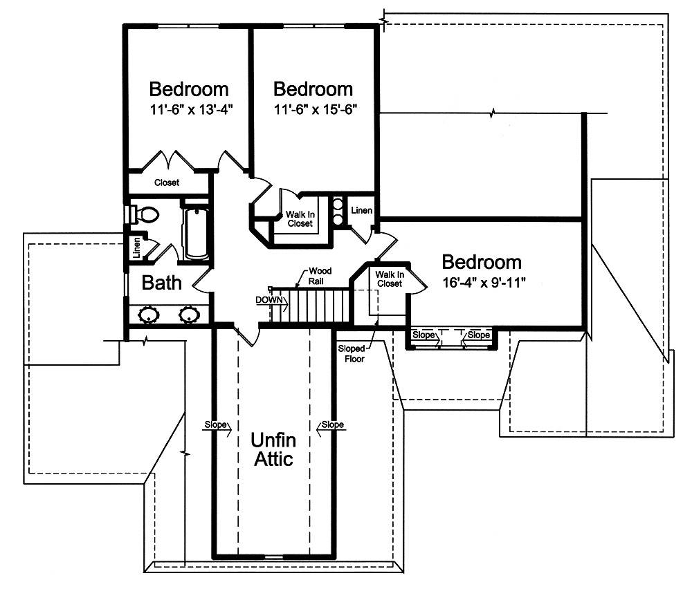
Whitford 4 Bedroom Traditional Style House, Plan 6984

 
 

Sq Ft
2,481 FT²

Beds
4

Baths
2.5

Stories
1.5

Garage
3

Depth
51' 1"

Width
59' 10"
From
$1,050.00
© copyright by designer
 View All 7 Images | Photographs may reflect modified home
Sq Ft
2,481 FT²
Beds
4
Baths
2.5
Stories
1.5
Garage
3
Depth
51' 1"
Width
59' 10"
 
Click to Zoom In on Floor Plan
© copyright by designer
 
 

About This Plan

 A home with the traditionalist in mind, this craftsman cottage style plan is brimming with appeal, without the hefty price tag. Coming in at 2,481 square feet, this plan offers enough space, especially with its 4 bedrooms and 3 car garage. Nine foot ceilings span the first floor, making it feel even more spacious than it already is. A great room and dining room combination open both to the kitchen inside and the patio area outside. A first floor master suite comes complete with a massive walk-in shower and a stunningly large walk-in closet. The second floor offers 3 more bedrooms, each with walk-in closets, and a shared bathroom. There is also an unfinished attic space which can be used for more storage, or even as a bonus room if you need more space. The same goes for the basement, which comes unfinished, but can be modified based on your needs and budget.  A little bit goes a long way in this traditional style home. Every inch is utilized, and every detail is poured over to ensure that you are getting only the highest quality home from start to finish. 

See All Plan Options
 

FEATURES & DETAILS

Foundation Options
Basement
Garage Location
Front
Garage Options
Attached
Front-entry
2,481 Ft
2
Total Heated
1,576 Ft
2
1st Floor
905 Ft
2
2nd Floor
4
Bedrooms
2.5
Bathrooms
3
Garage
1.5
Stories
59' 10"
Width
51' 1"
Depth
25' 2"
Height
9' 0"
Main Floor Ceiling
8' 0"
Upper Floor Ceiling
2x4
Framing
Truss
Roof Framing
8:12
Primary Roof Pitch
14:12
Secondary Roof Pitch
Single
Dwelling Number

Unheated Living Space
698 Ft
2
Garage
71 Ft
2
Porch
 

Plan Package Options

 Select Plan Package
$870
PDF Bid Set

Home plans stamped "NOT FOR CONSTRUCTION" for cost estimating and bidding purposes only; a minimum 5 set plan package must be purchased within 90 days for a license to build plan set; a credit will be applied towards your house plan upgrade

$870
$1,050
PDF Single Build
PDFs NOW!™

Digital plans emailed to you in PDF format that allows for printing copies and sharing electronically with contractors, subs, decorators, and more. This package includes a license to build the home one time.

$1,050
$1,150
5 Printed Sets + PDF
PDFs NOW!™

Digital plan emailed to you in PDF format that allows for printing copies on a home printer or local print shop and sharing with contractors, subs, decorators, and more. PLUS five printed sets shipped and delivered 3-5 business days.

$1,150
$1,180
8 Printed Sets + PDF
PDFs NOW!™

Digital plan emailed to you in PDF format that allows for printing copies on a home printer or local print shop and sharing with contractors, subs, decorators, and more. PLUS eight printed sets shipped and delivered 3-5 business days.

$1,180
$1,825
CAD + PDF Single Build

CAD files are a complete set of construction drawings delivered electronically. They can be used for any type of modification—including major design changes and engineering—and include a release granting permission to modify the plan. Most CAD plan orders are emailed the same or next business day.
 
This package also comes with a PDF set of plans and a copyright release for making modifications and printing unlimited copies.
 
CAD files are provided in .dwg format. For details on the specific CAD program used, please refer to the PLAN DETAILS section located above the floor plan on each plan’s page.

$1,825
 Need To Reverse Plan? (Optional)
$200
Readable Reverse

Reverse house plans with readable text and dimensions 

$200
  Select Foundation Option
  Add-Ons (Optional)
INCLUDED WITH YOUR PURCHASE

Free Ground shipping in the Continental U.S.

FREE

Design consultation with the architect or designer to discuss your plan

Home Building & Product Ideas Organizer

Sub Total
$0
Free Shipping
QUESTIONS OR NEED HELP ORDERING? LIVE CHAT OR CALL US AT 866-214-2242
Plan Packages

Each set of construction documents includes detailed, dimensioned floor plans, basic electric layouts, cross sections, roof details, cabinet layouts and elevations, as well as general IRC specifications. They contain virtually all of the information required to construct your home. The typical plan set does not include any plumbing, HVAC drawings, or engineering stamps due to the wide variety of specific needs, local codes, and climatic conditions. These details and specifications are easily obtained from your builder, contractors, and/or local engineers.

BEST PRICE GUARANTEE

find the same house plan (modifications included!) and package for less on another site, show us the URL and we'll give you the difference plus an additional 5% back.

100% SATISFACTION GUARANTEE

We offer a one-time, 30-day exchange policy for unused, non-electronic plan packages in the event you aren't satisfied with your first selection.

 
 

Plan 6984  Back to plan page

Loading...