Get discounts,
promos, see our
newest plans
and more!
+ 15% off any plan
See terms opt out anytime


No Thanks

Thanks for
signing up!


Use Code:

SIGNUP15

And save 15% off any plan!

Check your email for details.

CLOSE
Search Plans
Customer Reviews
     
15% Off House Plans Sitewide Ends Sunday

Code: SAVE15
Sale ends midnight 1/11/2026 PST

Sq Ft
3,565 FT²

Beds
4

Baths
4

Stories
1

Garage
2

Depth
59'

Width
60'
From
$2,216.00
© copyright by designer
 View All 4 Images | Photographs may reflect modified home
Sq Ft
3,565 FT²
Beds
4
Baths
4
Stories
1
Garage
2
Depth
59'
Width
60'
 
Click to Zoom In on Floor Plan
© copyright by designer
 
 

About This Plan

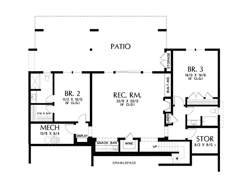
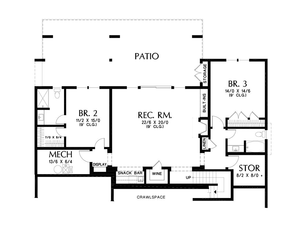
Steep rooflines, a gabled entry, and well-placed windows greet the day with grace in this large, 4+ bedroom Craftsman home. Adjacent to the oversized dining and great rooms (which feature coffered ceilings): an expansive outdoor living space enjoys its own fireplace, barbeque and built-in storage. A large, downstairs bonus space boasts a wine storage room and full snack bar. Three bedrooms (with an optional fourth, or den) are chock-full with built-ins yet maintain plenty of unobstructed space; finishes such as built-in shelving, a master bath spa, and a fourth bedroom window seat impress without imposing. 

See All Plan Options
 

FEATURES & DETAILS

Kitchen features
Nook / Breakfast Area
Peninsula / Eating Bar
Walk-in Pantry
Bedroom features
Double Vanity Sink
Primary Bdrm Main Floor
Separate Tub and Shower
Split Bedrooms
Walk-in Closet
Exterior features
Covered Front Porch
Covered Rear Porch
Deck
Front Porch
Foundation Options
Crawlspace
Daylight Basement
Walkout Basement
Lot Options
Suited for sloping lot
Suited for view lot
Additional features
Dining Room
Fireplace
Foyer
Great Room
Home Office
Laundry 1st Fl
Open Floor Plan
Rec Room
Storage Space
Garage Location
Front
Garage Options
Attached
Front-entry
3,565 Ft
2
Total Heated
2,152 Ft
2
1st Floor
1,413 Ft
2
Lower Floor
4
Bedrooms
4
Bathrooms
2
Garage
1
Stories
60' 0"
Width
59' 0"
Depth
28' 0"
Height
Varies' 0"
Main Floor Ceiling
9' 0"
Upper Floor Ceiling
2x6
Framing
Truss
Roof Framing
10/12
Primary Roof Pitch
12/12
Gable Roof Pitch
Single
Dwelling Number
None
Bonus Access

Unheated Living Space
426 Ft
2
Garage
352 Ft
2
Deck
 

Plan Package Options

 Select Plan Package
$2,541
5 Printed Sets + PDF

Includes 5 physical printed blueprints shipped and delivered within 3-5 business days and a copyright release license to construct one home and to make copies. A complimentary PDF plan set is also emailed within 1 business day for easy sharing and local printing. 

$2,541
$2,216
PDF Single Build

Digital plans emailed to you in PDF format that allows for printing copies and sharing electronically with contractors, subs, decorators, and more. This package includes a license to build the home one time.

$2,216
$4,432
CAD + PDF Single Build

This plan package is created in AutoCAD and delivered in .DWG format. CAD files are intended for use by design professionals, structural engineers, and builders to update plans for local building codes or to make revisions based on specific needs, lot requirements, and budget considerations. A complimentary PDF copy is included with this package for reference. CAD packages are delivered within 1 to 2 business days.
 
This package also comes with a copyright release for making revisions and printing unlimited copies.

For details on the specific CAD program used, please refer to the PLAN DETAILS section located above the floor plan on each plan page.

$4,432
 Need To Reverse Plan? (Optional)
$250
Readable Reverse

Reverse house plans with readable text and dimensions 

$250
  Select Foundation Option
  Add-Ons (Optional)
INCLUDED WITH YOUR PURCHASE

Free Ground shipping in the Continental U.S.

FREE

Home Building & Product Ideas Organizer

Sub Total
$0
Free Shipping
QUESTIONS OR NEED HELP ORDERING? LIVE CHAT OR CALL US AT 866-214-2242
Plan Packages

Each set of construction documents includes detailed, dimensioned floor plans, basic electric layouts, cross sections, roof details, cabinet layouts and elevations, as well as general IRC specifications. They contain virtually all of the information required to construct your home. The typical plan set does not include any plumbing, HVAC drawings, or engineering stamps due to the wide variety of specific needs, local codes, and climatic conditions. These details and specifications are easily obtained from your builder, contractors, and/or local engineers.

BEST PRICE GUARANTEE

Find the same house plan (modifications included!) and package for less on another site, show us the URL and we'll give you the difference plus an additional 5% back.

100% SATISFACTION GUARANTEE

We offer a one-time, 30-day exchange policy for unused, printed plan packages in the event you aren't satisfied with your first selection. Exchanges are subject to a 20% restocking fee.

 
 

Plan 8232  Back to plan page

Loading...