Get discounts,
promos, see our
newest plans
and more!
+ 15% off any plan
See terms opt out anytime


No Thanks

Thanks for
signing up!


Use Code:

SIGNUP15

And save 15% off any plan!

Check your email for details.

CLOSE
Search Plans
     
20% Off House Plans Sitewide Ends Tuesday
20% Off House Plans Sitewide Ends Tuesday
20% Off House Plans Sitewide Ends Tuesday

Code: VET20
Sale ends midnight 11/11/2025 PST

Sq Ft
4,150 FT²

Beds
4

Baths
4.5

Stories
2

Garage
3

Depth
68'

Width
78'
On Sale
$2,058.40
$2,573.00
© copyright by designer
 View All 31 Images | Photographs may reflect modified home
Sq Ft
4,150 FT²
Beds
4
Baths
4.5
Stories
2
Garage
3
Depth
68'
Width
78'
 
Click to Zoom In on Floor Plan
© copyright by designer
 
 

About This Plan

At the 2002 Portland Street of Dreams this beautiful home won numerous Professional's Choice awards:
Best of show
Best Architectural Design
Best Master Suite
Best Kitchen
Best Home Furnishings
Best Use of Technology
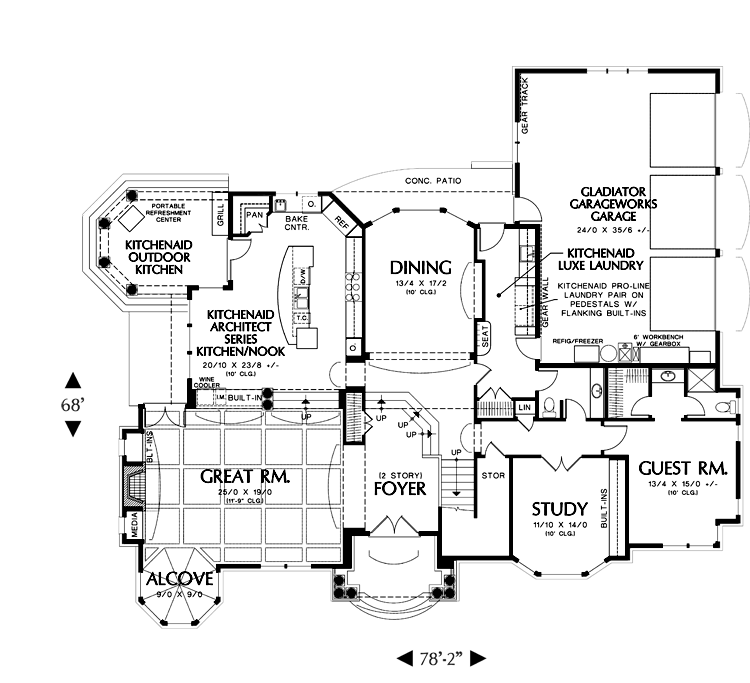
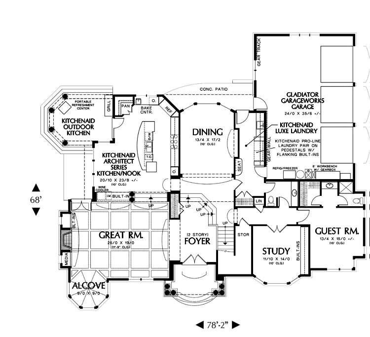
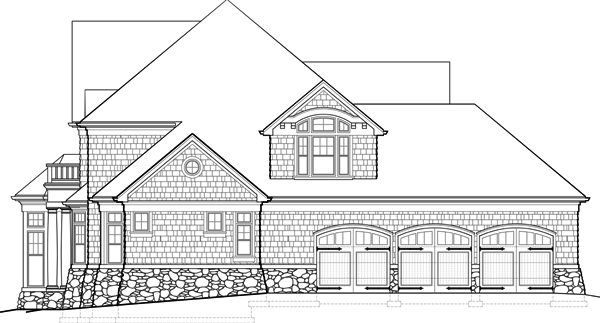
Graceful and gracious, this superb shingle design delights with handsome exterior elements. A whimsical turret, a covered entry, an upper-level balcony and a bay window all bring their charm to the facade. Spaciousness is the watchword of the interior. Opening from a two-story foyer, the main level offers a commodious great room with beamed ceiling, alcove, fireplace and built-ins. Go up a few steps to the dining nook and kitchen, where you'll find a baking center, walk-in pantry and access to a covered side porch.



The formal dining room lies a few steps up from the foyer and sports a bay window and hutch space. The study also has a bay window and handy built-in shelves. Across the hall is a half-bath. A guest suite at the end of the hall features a private bath and walk-in closet.



Three additional bedrooms on the upper level have private baths as well. A fireplace flanked by built-ins warms the master bedroom. Its bath contains a spa tub, compartmented toilet and huge shower. Vaulted bonus space and attic storage complete the second level. 

See All Plan Options
 

FEATURES & DETAILS

Kitchen features
Kitchen Island
Nook / Breakfast Area
Walk-in Pantry
Bedroom features
2 Primary Suites
Double Vanity Sink
Guest Suite
Primary Bdrm Upstairs
Separate Tub and Shower
Walk-in Closet
Exterior features
Covered Rear Porch
Front Porch
Foundation Options
Basement
Crawlspace
Slab
Lot Options
Suited for corner lot
Suited for view lot
Additional features
2 Story Volume
Arches
Bonus Room
Dining Room
Fireplace
Foyer
Great Room
Home Office
In-law Suite
Laundry 1st Fl
Mud Room
Open Floor Plan
Storage Space
Vaulted Ceilings
Garage Location
Side
Garage Options
Attached
Oversized
Side-entry
4,150 Ft
2
Total Heated
2,572 Ft
2
1st Floor
1,578 Ft
2
2nd Floor
4
Bedrooms
4.5
Bathrooms
3
Garage
2
Stories
78' 0"
Width
68' 0"
Depth
38' 0"
Height
10' 0"
Main Floor Ceiling
9' 0"
Upper Floor Ceiling
2x6
Framing
Stick
Roof Framing
10/12
Primary Roof Pitch
Single
Dwelling Number
2nd Floor
Bonus Access

Unheated Living Space
850 Ft
2
Garage
218 Ft
2
Storage
315 Ft
2
Bonus Room
 

Plan Package Options

 Select Plan Package
Sale: $2,058
PDF Single Build
$2,573

Digital plans emailed to you in PDF format that allows for printing copies and sharing electronically with contractors, subs, decorators, and more. This package includes a license to build the home one time.

Sale: $2,058
Sale: $2,298
5 Printed Sets + PDF
$2,873

Digital plan emailed to you in PDF format that allows for printing copies on a home printer or local print shop and sharing with contractors, subs, decorators, and more. PLUS five printed sets shipped and delivered 3-5 business days.

Sale: $2,298
Sale: $4,117
CAD + PDF Single Build
$5,146

CAD files are a complete set of construction drawings delivered electronically. They can be used for any type of modification—including major design changes and engineering—and include a release granting permission to modify the plan. Most CAD plan orders are emailed the same or next business day.
 
This package also comes with a PDF set of plans and a copyright release for making modifications and printing unlimited copies.
 
CAD files are provided in .dwg format. For details on the specific CAD program used, please refer to the PLAN DETAILS section located above the floor plan on each plan’s page.

Sale: $4,117
 Need To Reverse Plan? (Optional)
$250
Readable Reverse

Reverse house plans with readable text and dimensions 

$250
  Select Foundation Option
  Add-Ons (Optional)
INCLUDED WITH YOUR PURCHASE

Free Ground shipping in the Continental U.S.

FREE

Design consultation with the architect or designer to discuss your plan

Home Building & Product Ideas Organizer

Sub Total
$0
Free Shipping
QUESTIONS OR NEED HELP ORDERING? LIVE CHAT OR CALL US AT 866-214-2242
Plan Packages

Each set of construction documents includes detailed, dimensioned floor plans, basic electric layouts, cross sections, roof details, cabinet layouts and elevations, as well as general IRC specifications. They contain virtually all of the information required to construct your home. The typical plan set does not include any plumbing, HVAC drawings, or engineering stamps due to the wide variety of specific needs, local codes, and climatic conditions. These details and specifications are easily obtained from your builder, contractors, and/or local engineers.

BEST PRICE GUARANTEE

find the same house plan (modifications included!) and package for less on another site, show us the URL and we'll give you the difference plus an additional 5% back.

100% SATISFACTION GUARANTEE

We offer a one-time, 30-day exchange policy for unused, non-electronic plan packages in the event you aren't satisfied with your first selection.

 
 

Plan 4608  Back to plan page

Loading...