Get discounts,
promos, see our
newest plans
and more!
+ 15% off any plan
See terms opt out anytime


No Thanks

Thanks for
signing up!


Use Code:

SIGNUP15

And save 15% off any plan!

Check your email for details.

CLOSE
Search Plans
Customer Reviews
     
20% off ALL House Plans Sitewide
20% off ALL House Plans Sitewide
20% off ALL House Plans Sitewide

Code: LOVE20
Sale ends midnight 2/15/2026 PST

Tree Top Treasure | Efficient Contemporary Style House, Plan 6940

 
 

Sq Ft
4,958 FT²

Beds
5

Baths
3.5

Stories
1

Garage
3

Depth
75' 10"

Width
106' 4"
On Sale
$1,344.00
$1,680.00
© copyright by architect
 View All 12 Images | Photographs may reflect modified home
Sq Ft
4,958 FT²
Beds
5
Baths
3.5
Stories
1
Garage
3
Depth
75' 10"
Width
106' 4"
 
Click to Zoom In on Floor Plan
© copyright by architect
 
 

About This Plan

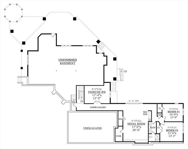
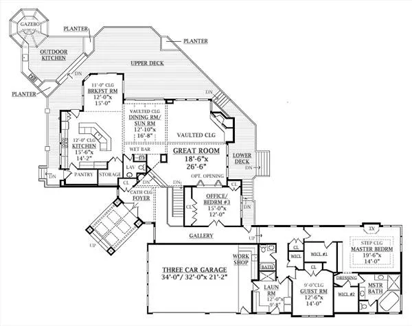
This stunning contemporary, energy-efficient Arts & Crafts style home is specifically designed for challenging down sloping lots. Small steps within the essentially ranch floor plan and a two-level basement allow this home to handle 14 feet of grade difference from front to rear. The magnificent open-concept main living space features a large kitchen with angled island with eating bar, vaulted ceilings in the dining room and great room, and a sunny breakfast room. A huge rear deck with outdoor kitchen and gazebo is the perfect place to entertain family and friends. There’s also a 3,300-square-foot, above-grade walkout lower level that can be finished to your needs. 

See All Plan Options
 

FEATURES & DETAILS

Kitchen features
Kitchen Island
Nook / Breakfast Area
Peninsula / Eating Bar
Walk-in Pantry
Bedroom features
Primary Bdrm Upstairs
Exterior features
Front Porch
Foundation Options
Daylight Basement
Walkout Basement
Lot Options
Suited for sloping lot
Suited for view lot
Additional features
Exercise Room
Great Room
Home Office
Laundry 1st Fl
Library/Media Rm
Garage Location
Side
Garage Options
Attached
4,958 Ft
2
Total Heated
3,301 Ft
2
1st Floor
1,657 Ft
2
Lower Floor
5
Bedrooms
3.5
Bathrooms
3
Garage
1
Stories
106' 4"
Width
75' 10"
Depth
32' 0"
Height
Varies' 0"
Main Floor Ceiling
2x6
Framing
Stick
Roof Framing
8/12
Primary Roof Pitch
Single
Dwelling Number
None
Bonus Access

Unheated Living Space
718 Ft
2
Garage
158 Ft
2
Porch
1,469 Ft
2
Deck
 

Plan Package Options

 Select Plan Package
 Need To Reverse Plan? (Optional)
  Select Foundation Option
  Add-Ons (Optional)
INCLUDED WITH YOUR PURCHASE

Free Ground shipping in the U.S.

FREE

Home Building & Product Ideas Organizer

Sub Total
$0
Free Shipping
QUESTIONS OR NEED HELP ORDERING? LIVE CHAT OR CALL US AT 866-214-2242
Plan Packages

Each set of construction documents includes detailed, dimensioned floor plans, basic electric layouts, cross sections, roof details, cabinet layouts and elevations, as well as general IRC specifications. They contain virtually all of the information required to construct your home. The typical plan set does not include any plumbing, HVAC drawings, or engineering stamps due to the wide variety of specific needs, local codes, and climatic conditions. These details and specifications are easily obtained from your builder, contractors, and/or local engineers.

BEST PRICE GUARANTEE

Find the same house plan (modifications included!) and package for less on another site, show us the URL and we'll give you the difference plus an additional 10% back.

100% SATISFACTION GUARANTEE

We offer a one-time, 30-day exchange policy for unused, printed plan packages in the event you aren't satisfied with your first selection.

 
 

Plan 6940  Back to plan page

Loading...