Get discounts,
promos, see our
newest plans
and more!
+ 15% off any plan
See terms opt out anytime


No Thanks

Thanks for
signing up!


Use Code:

SIGNUP15

And save 15% off any plan!

Check your email for details.

CLOSE
Search Plans
Customer Reviews
     
15% off ALL House Plans Sitewide
15% off ALL House Plans Sitewide
15% off ALL House Plans Sitewide

Code: HONOR
Sale ends midnight 5/31/2026 PST

Sq Ft
2,355 FT²

Beds
4

Baths
3.5

Stories
2

Garage
2

Depth
64'

Width
75'
On Sale
$1,100.75
$1,295.00
© copyright by designer
 View All 24 Images | Photographs may reflect modified home
Sq Ft
2,355 FT²
Beds
4
Baths
3.5
Stories
2
Garage
2
Depth
64'
Width
75'
 
Click to Zoom In on Floor Plan
© copyright by designer
 
 

About This Plan

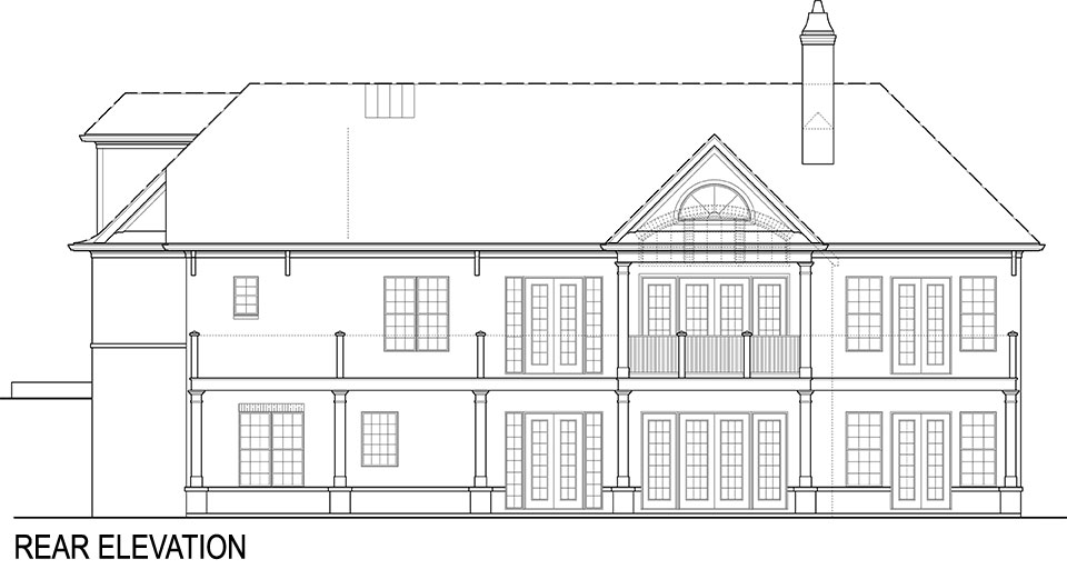
The Tilly Ranch House Plan is an amazing bungalow intertwined with the softness of a Country Home. Upon arrival you are amazed by its stunning curb appeal. There are large and swooping roofs, adorned with elegant gables & shutters. 

See All Plan Options
 

FEATURES & DETAILS

Kitchen features
Kitchen Island
Nook / Breakfast Area
Bedroom features
Primary Bdrm Main Floor
Separate Tub and Shower
Walk-in Closet
Exterior features
Covered Rear Porch
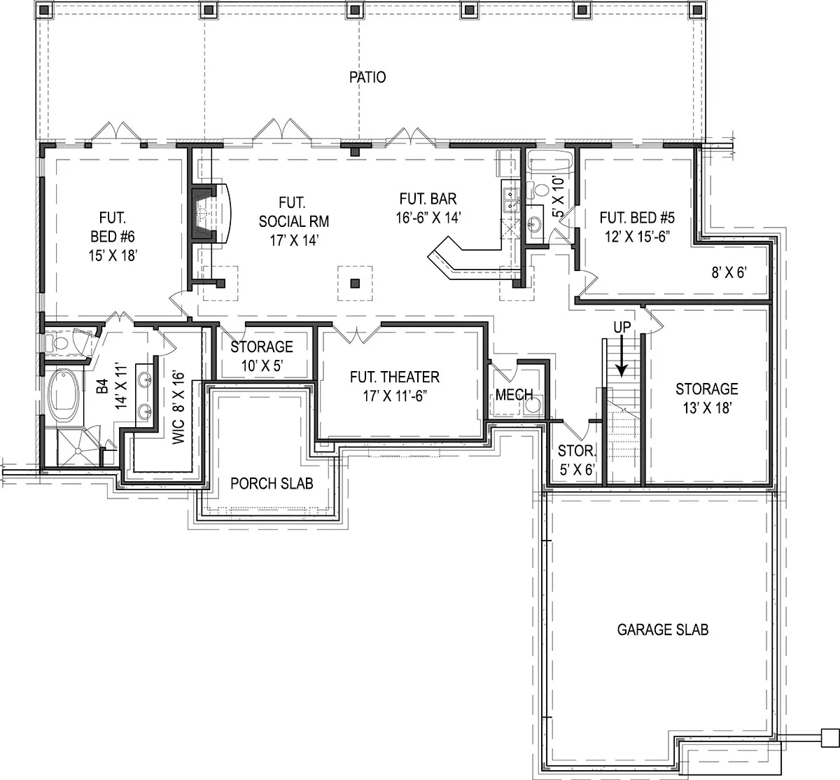
Foundation Options
Walkout Basement
Additional features
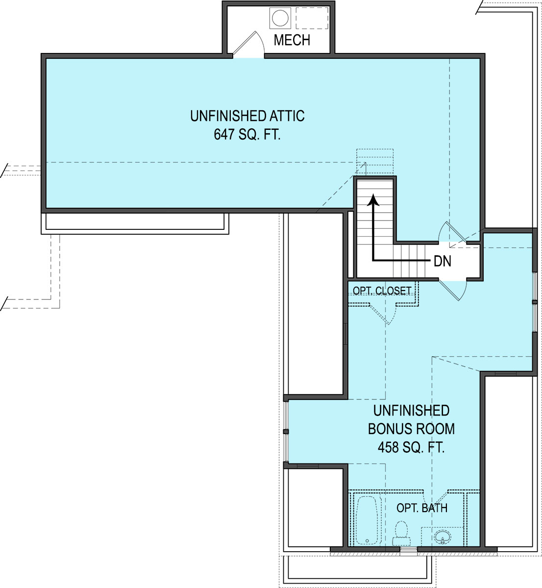
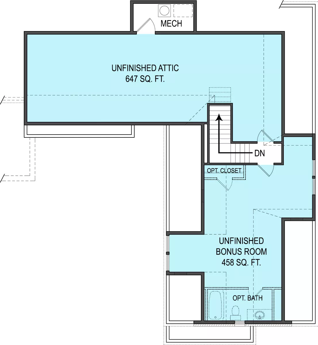
Bonus Room
Unfinished Space
2,355 Ft
2
Total Heated
2,355 Ft
2
1st Floor
2,196 Ft
2
Lower Floor
4
Bedrooms
3.5
Bathrooms
2
Garage
2
Stories
75' 0"
Width
64' 0"
Depth
31' 0"
Height
10' 0"
Main Floor Ceiling
9' 0"
Upper Floor Ceiling
2x6
Framing
Stick
Roof Framing
Single
Dwelling Number
2nd Floor
Bonus Access

Unheated Living Space
615 Ft
2
Garage
1,141 Ft
2
Bonus Room
 

Plan Package Options

 Select Plan Package
 Need To Reverse Plan? (Optional)
  Select Foundation Option
  Add-Ons (Optional)
INCLUDED WITH YOUR PURCHASE

Free Ground shipping in the U.S.

FREE

Home Building & Product Ideas Organizer

Sub Total
$0
Free Shipping
QUESTIONS OR NEED HELP ORDERING? LIVE CHAT OR CALL US AT 866-214-2242
Plan Packages

Each set of construction documents typically includes detailed, dimensioned floor plans, basic electric layouts, cross sections, roof details, cabinet layouts, and elevations, as well as general IRC specifications. Please refer to the ARCHITECT or DESIGNER’S PLAN DETAILS link above the floor plan on any plan page to determine the specific details for each plan. Our house plans contain virtually all of the information required to construct your home. The typical plan set does not include plumbing, HVAC drawings, or engineering stamps due to the wide variety of specific needs, local codes, and climatic conditions. These details and specifications are easily obtained from your builder, contractors, and/or local engineers.

BEST PRICE GUARANTEE

Find the same house plan (modifications included!) and package for less on another site, show us the URL and we'll give you the difference plus an additional 10% back.

100% SATISFACTION GUARANTEE

We offer a one-time, 30-day exchange policy for unused, printed plan packages in the event you aren't satisfied with your first selection.

 
 

Plan 9616  Back to plan page

Loading...