Get discounts,
promos, see our
newest plans
and more!
+ 15% off any plan
See terms opt out anytime


No Thanks

Thanks for
signing up!


Use Code:

SIGNUP15

And save 15% off any plan!

Check your email for details.

CLOSE
Search Plans
     

Sq Ft
4,536 FT²

Beds
4

Baths
4.5

Stories
1

Garage
3

Depth
87'

Width
110' 2"
From
$1,700.00
© copyright by designer
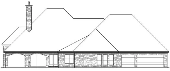
 View All 14 Images | Photographs may reflect modified home
Sq Ft
4,536 FT²
Beds
4
Baths
4.5
Stories
1
Garage
3
Depth
87'
Width
110' 2"
 
Click to Zoom In on Floor Plan
© copyright by designer
 
 

About This Plan

This European luxury home can also be a lovely retirement home with everything on one level and plenty of room for guests. The elegant foyer is flanked by the spacious study with coffered ceiling and built-ins, and the formal dining room with its circular tray sits adjacent to the bar and kitchen for ease in serving. The family gathering area consists of the kitchen, breakfast area and family room. The family room offers a corner fireplace and a large wall of windows. Step onto the patio and enjoy cooking in the outdoor cooking area while taking in the views of the (concept) pool. The gourmet kitchen offers a free-standing island for extra counter space, and a breakfast bar that is shared with the family room. Two bedrooms with walk-in closets and full baths sit in the rear of the home near the three-car rear entry garage with built-ins. A guest suite with walk-in closet and full bath sits between the master suite and dining room. The luxurious master suite boasts a bayed window, tray ceiling, master bath with his and hers vanities, separate shower, whirlpool, and his and hers wardrobes with cedar closet. 

See All Plan Options
 

FEATURES & DETAILS

Kitchen features
Kitchen Island
Nook / Breakfast Area
Walk-in Pantry
Bedroom features
Double Vanity Sink
Guest Suite
His and Hers Primary Closets
Primary Bdrm Main Floor
Separate Tub and Shower
Split Bedrooms
Walk-in Closet
Exterior features
Covered Front Porch
Covered Rear Porch
Front Porch
Rear Porch
Foundation Options
Slab
Lot Options
Suited for view lot
Additional features
Arches
Dining Room
Family Room
Fireplace
Foyer
Home Office
Laundry 1st Fl
Open Floor Plan
Garage Location
Rear
Garage Options
Attached
Rear-entry
6,727 Ft
2
Total Structure
4,536 Ft
2
Total Heated
4
Bedrooms
4.5
Bathrooms
3
Garage
1
Stories
110' 2"
Width
87' 0"
Depth
39' 9"
Height
11' 0"
Main Floor Ceiling
2x4
Framing
Stick
Roof Framing
12
Primary Roof Pitch
24
Dormer Roof Pitch
Single
Dwelling Number

Unheated Living Space
909 Ft
2
Garage
306 Ft
2
Porch
976 Ft
2
Patio
 

Plan Package Options

 Select Plan Package
$1,700
PDF Single Build

Digital plans emailed to you in PDF format that allows for printing copies and sharing electronically with contractors, subs, decorators, and more. This package includes a license to build the home one time.

$1,700
$2,560
5 Printed Sets

Five Printed Sets of Residential Construction Drawings are typically 24” x 36” documents and come with a license to construct a single residence shipped to a physical address. Keep in mind PDF Plan Packages are our most popular choice which allows you to print as many copies as you need and to electronically send files to your builder, subcontractors, etc.

$2,560
$2,560
CAD + PDF Single Build

CAD files are a complete set of construction drawings delivered electronically. They can be used for any type of modification—including major design changes and engineering—and include a release granting permission to modify the plan. Most CAD plan orders are emailed the same or next business day.
 
This package also comes with a PDF set of plans and a copyright release for making modifications and printing unlimited copies.
 
CAD files are provided in .dwg format. For details on the specific CAD program used, please refer to the PLAN DETAILS section located above the floor plan on each plan’s page.

$2,560
 Need To Reverse Plan? (Optional)
$200
Readable Reverse

Reverse house plans with readable text and dimensions 

$200
  Select Foundation Option
  Add-Ons (Optional)
INCLUDED WITH YOUR PURCHASE

Free Ground shipping in the Continental U.S.

FREE

Design consultation with the architect or designer to discuss your plan

Home Building & Product Ideas Organizer

Sub Total
$0
Free Shipping
QUESTIONS OR NEED HELP ORDERING? LIVE CHAT OR CALL US AT 866-214-2242
Plan Packages

Each set of construction documents includes detailed, dimensioned floor plans, basic electric layouts, cross sections, roof details, cabinet layouts and elevations, as well as general IRC specifications. They contain virtually all of the information required to construct your home. The typical plan set does not include any plumbing, HVAC drawings, or engineering stamps due to the wide variety of specific needs, local codes, and climatic conditions. These details and specifications are easily obtained from your builder, contractors, and/or local engineers.

BEST PRICE GUARANTEE

find the same house plan (modifications included!) and package for less on another site, show us the URL and we'll give you the difference plus an additional 5% back.

100% SATISFACTION GUARANTEE

We offer a one-time, 30-day exchange policy for unused, non-electronic plan packages in the event you aren't satisfied with your first selection.

 
 

Plan 4506  Back to plan page

Loading...