Get discounts,
promos, see our
newest plans
and more!
+ 15% off any plan
See terms opt out anytime


No Thanks

Thanks for
signing up!


Use Code:

SIGNUP15

And save 15% off any plan!

Check your email for details.

CLOSE
Search Plans
Customer Reviews
     
15% off ALL House Plans Sitewide
15% off ALL House Plans Sitewide
15% off ALL House Plans Sitewide

Code: HONOR
Sale ends midnight 5/29/2026 PST

Sq Ft
3,943 FT²

Beds
4

Baths
3.5

Stories
2

Garage
2

Depth
58'

Width
76'
On Sale
$1,440.75
$1,695.00
© copyright by designer
 View All 4 Images | Photographs may reflect modified home
Sq Ft
3,943 FT²
Beds
4
Baths
3.5
Stories
2
Garage
2
Depth
58'
Width
76'
 
Click to Zoom In on Floor Plan
© copyright by designer
 
 

About This Plan

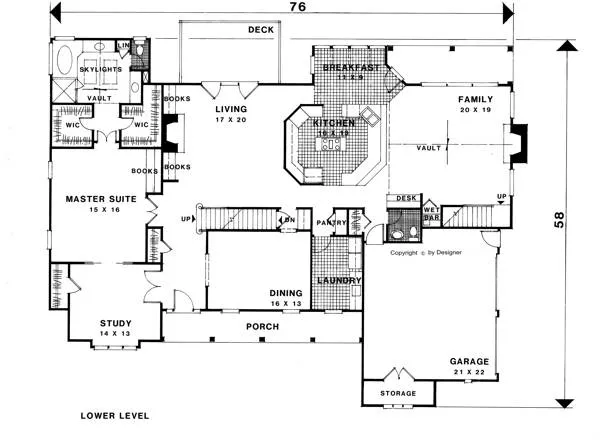
This 3,943 sq. ft. design is a two-story traditional with English Tudor details. The exterior consists of stucco and stacked stone with rough-sawn columns. Featuring 4 bedrooms and 3-1/2 baths, this plan includes front and rear stairs for access to the upper level. The 20'x19' family room is high- lighted by a fireplace, built-in desk and wet bar. The family room also features a vaulted ceiling. Measuring 17'x20', the living room features built-in bookcases on either side of the fireplace. The master suite, located on the lower level, is truly an owner's retreat. It features two walk-in closets and a built-in bookcase. The master bath, with vaulted ceiling and skylights, has separate garden tub and shower, separate vanities and a linen closet. Located just off of the master suite is a study measuring 14'x13' which could also serve as a nursery. Completing the lower level is a 16'x13' dining room, large gourmet kitchen and steps leading down to the basement can be eliminated and replaced by a utility closet in areas which do not permit a basement.
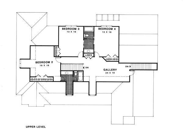
The upper level features 3 bedrooms and a gallery. Bedroom 2 measures 16'x16' and has a private bath. Bedrooms 3 and 4 each measure 13'x16' and share a private bath. The gallery measures 24'x10' and makes a comfortable sitting area.
 

See All Plan Options
 

FEATURES & DETAILS

Exterior features
Front Porch
Foundation Options
Basement
Garage Location
Side
Garage Options
Attached
3,943 Ft
2
Total Heated
2,646 Ft
2
1st Floor
1,297 Ft
2
2nd Floor
4
Bedrooms
3.5
Bathrooms
2
Garage
2
Stories
76' 0"
Width
58' 0"
Depth
48' 0"
Height
9' 0"
Main Floor Ceiling
8' 0"
Upper Floor Ceiling
2x4
Framing
Stick
Roof Framing
10/12
Primary Roof Pitch
Single
Dwelling Number
None
Bonus Access

Unheated Living Space
 

Plan Package Options

 Select Plan Package
  Select Foundation Option
  Add-Ons (Optional)
INCLUDED WITH YOUR PURCHASE

Free Ground shipping in the U.S.

FREE

Home Building & Product Ideas Organizer

Sub Total
$0
Free Shipping
QUESTIONS OR NEED HELP ORDERING? LIVE CHAT OR CALL US AT 866-214-2242
Plan Packages

Each set of construction documents typically includes detailed, dimensioned floor plans, basic electric layouts, cross sections, roof details, cabinet layouts, and elevations, as well as general IRC specifications. Please refer to the ARCHITECT or DESIGNER’S PLAN DETAILS link above the floor plan on any plan page to determine the specific details for each plan. Our house plans contain virtually all of the information required to construct your home. The typical plan set does not include plumbing, HVAC drawings, or engineering stamps due to the wide variety of specific needs, local codes, and climatic conditions. These details and specifications are easily obtained from your builder, contractors, and/or local engineers.

BEST PRICE GUARANTEE

Find the same house plan (modifications included!) and package for less on another site, show us the URL and we'll give you the difference plus an additional 10% back.

100% SATISFACTION GUARANTEE

We offer a one-time, 30-day exchange policy for unused, printed plan packages in the event you aren't satisfied with your first selection.

 
 

Plan 7636  Back to plan page

Loading...