Get discounts,
promos, see our
newest plans
and more!
+ 15% off any plan
See terms opt out anytime


No Thanks

Thanks for
signing up!


Use Code:

SIGNUP15

And save 15% off any plan!

Check your email for details.

CLOSE
Search Plans
Customer Reviews
     
15% off ALL House Plans Sitewide
15% off ALL House Plans Sitewide
15% off ALL House Plans Sitewide

Code: HONOR
Sale ends midnight 5/31/2026 PST

Sq Ft
2,218 FT²

Beds
3

Baths
3.5

Stories
1.5

Garage
2

Depth
62' 6"

Width
78'
On Sale
$1,190.00
$1,400.00
© copyright by designer
 View All 6 Images | Photographs may reflect modified home
Sq Ft
2,218 FT²
Beds
3
Baths
3.5
Stories
1.5
Garage
2
Depth
62' 6"
Width
78'
 
Click to Zoom In on Floor Plan
© copyright by designer
 
 

About This Plan

What style! What features! This home features a 3 bedroom, split-bedroom/open floor plan design with the popular bonus room over garage. The design also includes many of the "most requested" home features such as expansive master suite with a vaulted ceiling and sitting area, large his and her walk-in closets, oversized jet tub, and 4' x 4' shower. The fully-appointed kitchen area includes a large island, raised-bar, easy-access to the "flex" space, large dining area, and well-placed laundry. The 2-bedroom wing functions well with oversized bedrooms (each with their own bath), large walk-in closets, and easy access to a centrally-located media room. The oversized garage easily accommodates large vehicles and includes both open and closed storage. A full basement also provides great space for storage. A wonderfully flexible house plan! 

See All Plan Options
 

FEATURES & DETAILS

Kitchen features
Country Kitchen
Peninsula / Eating Bar
Bedroom features
Double Vanity Sink
His and Hers Primary Closets
Primary Bdrm Main Floor
Separate Tub and Shower
Sitting Area
Split Bedrooms
Walk-in Closet
Exterior features
Covered Front Porch
Covered Rear Porch
Front Porch
Rear Porch
Foundation Options
Basement
Lot Options
Suited for corner lot
Suited for sloping lot
Suited for view lot
Additional features
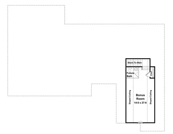
Bonus Room
Dining Room
Exercise Room
Fireplace
Foyer
Great Room
Home Office
Laundry 1st Fl
Library/Media Rm
Open Floor Plan
Storage Space
Unfinished Space
Workshop
Garage Location
Side
Garage Options
Attached
2,218 Ft
2
Total Heated
2,218 Ft
2
1st Floor
3
Bedrooms
3.5
Bathrooms
2
Garage
1.5
Stories
78' 0"
Width
62' 6"
Depth
24' 10"
Height
9' 0"
Main Floor Ceiling
8' 0"
Upper Floor Ceiling
2x4
Framing
Stick
Roof Framing
10/12
Primary Roof Pitch
12/12
Secondary Roof Pitch
Single
Dwelling Number
2nd Floor
Bonus Access

Unheated Living Space
774 Ft
2
Garage
353 Ft
2
Porch
458 Ft
2
Bonus Room
 

Plan Package Options

 Select Plan Package
 Need To Reverse Plan? (Optional)
  Select Foundation Option
  Add-Ons (Optional)
INCLUDED WITH YOUR PURCHASE

Free Ground shipping in the U.S.

FREE

Home Building & Product Ideas Organizer

Sub Total
$0
Free Shipping
QUESTIONS OR NEED HELP ORDERING? LIVE CHAT OR CALL US AT 866-214-2242
Plan Packages

Each set of construction documents typically includes detailed, dimensioned floor plans, basic electric layouts, cross sections, roof details, cabinet layouts, and elevations, as well as general IRC specifications. Please refer to the ARCHITECT or DESIGNER’S PLAN DETAILS link above the floor plan on any plan page to determine the specific details for each plan. Our house plans contain virtually all of the information required to construct your home. The typical plan set does not include plumbing, HVAC drawings, or engineering stamps due to the wide variety of specific needs, local codes, and climatic conditions. These details and specifications are easily obtained from your builder, contractors, and/or local engineers.

BEST PRICE GUARANTEE

Find the same house plan (modifications included!) and package for less on another site, show us the URL and we'll give you the difference plus an additional 10% back.

100% SATISFACTION GUARANTEE

We offer a one-time, 30-day exchange policy for unused, printed plan packages in the event you aren't satisfied with your first selection.

 
 

Plan 6672  Back to plan page

Loading...