Get discounts,
promos, see our
newest plans
and more!
+ 15% off any plan
See terms opt out anytime


No Thanks

Thanks for
signing up!


Use Code:

SIGNUP15

And save 15% off any plan!

Check your email for details.

CLOSE
Search Plans
     
15% Off House Plans Sitewide Ends Sunday
15% Off House Plans Sitewide Ends Sunday
15% Off House Plans Sitewide Ends Sunday

Code: SAVE15
Sale ends midnight 11/16/2025 PST

Sq Ft
2,008 FT²

Beds
3

Baths
2.5

Stories
1.5

Garage
2

Depth
49' 6"

Width
78'
On Sale
$1,190.00
$1,400.00
© copyright by designer
 View All 7 Images | Photographs may reflect modified home
Sq Ft
2,008 FT²
Beds
3
Baths
2.5
Stories
1.5
Garage
2
Depth
49' 6"
Width
78'
 
Click to Zoom In on Floor Plan
© copyright by designer
 
 

About This Plan

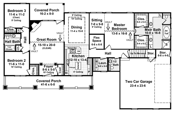
The inviting Down Home exterior of this plan is certain to make visitors feel welcome. This open plan with split-bedroom layout offers a master suite with vaulted ceiling, sitting area, two walk-in closets, large jet tub and shower, dual lavatories, and plenty of counter space. The kitchen features a raised bar, an island, a flex space for a walk-in pantry or home office, and is located in close proximity to the laundry. Large dining has raised ceiling and multiple rhythmic windows for light and views. Guests to the home are greeted in the well-appointed foyer which includes decorative columns. From the foyer, guests are led into the large vaulted great room with fireplace, oversized windows, and a French door with transoms above. There is a great bonus room, over the garage, with a much-requested half bath option. A covered front and rear porch provide ample space for conversation and grilling out. The garage is oversized for large SUV-type vehicles. A fun house for active families!
 

See All Plan Options
 

FEATURES & DETAILS

Kitchen features
Country Kitchen
Kitchen Island
Peninsula / Eating Bar
Bedroom features
Double Vanity Sink
His and Hers Primary Closets
Primary Bdrm Main Floor
Nursery Room
Separate Tub and Shower
Sitting Area
Split Bedrooms
Walk-in Closet
Exterior features
Covered Front Porch
Covered Rear Porch
Front Porch
Rear Porch
Foundation Options
Basement
Crawlspace
Slab
Lot Options
Suited for corner lot
Suited for sloping lot
Suited for view lot
Additional features
Bonus Room
Exercise Room
Fireplace
Foyer
Great Room
Home Office
Laundry 1st Fl
Library/Media Rm
Open Floor Plan
Storage Space
Unfinished Space
Workshop
Garage Location
Side
Garage Options
Attached
Oversized
2,008 Ft
2
Total Heated
2,008 Ft
2
1st Floor
3
Bedrooms
2.5
Bathrooms
2
Garage
1.5
Stories
78' 0"
Width
49' 6"
Depth
24' 10"
Height
9' 0"
Main Floor Ceiling
2x4
Framing
Stick
Roof Framing
10/12
Primary Roof Pitch
12:12
Secondary Roof Pitch
8:12
Teritary Roof Pitch
Single
Dwelling Number
2nd Floor
Bonus Access

Unheated Living Space
647 Ft
2
Garage
377 Ft
2
Porch
354 Ft
2
Bonus Room
 

Plan Package Options

 Select Plan Package
Sale: $1,062
Study Set - Printed
$1,250
One printed set of house plans stamped NOT FOR CONSTRUCTION". This set is intended for review purposes and are mailed to you. To build from the plans, you need to upgrade to a licensed set.
Sale: $1,062
Sale: $1,190
PDF Single Build
$1,400

Digital plans emailed to you in PDF format that allows for printing copies and sharing electronically with contractors, subs, decorators, and more. This package includes a license to build the home one time.

Sale: $1,190
Sale: $1,275
5 Printed Sets
$1,500

Five Printed Sets of Residential Construction Drawings are typically 24” x 36” documents and come with a license to construct a single residence shipped to a physical address. Keep in mind PDF Plan Packages are our most popular choice which allows you to print as many copies as you need and to electronically send files to your builder, subcontractors, etc.

Sale: $1,275
Sale: $1,445
5 Printed Sets + PDF
$1,700

Digital plan emailed to you in PDF format that allows for printing copies on a home printer or local print shop and sharing with contractors, subs, decorators, and more. PLUS five printed sets shipped and delivered 3-5 business days.

Sale: $1,445
Sale: $1,785
CAD + PDF Single Build
$2,100

CAD files are a complete set of construction drawings delivered electronically. They can be used for any type of modification—including major design changes and engineering—and include a release granting permission to modify the plan. Most CAD plan orders are emailed the same or next business day.
 
This package also comes with a PDF set of plans and a copyright release for making modifications and printing unlimited copies.
 
CAD files are provided in .dwg format. For details on the specific CAD program used, please refer to the PLAN DETAILS section located above the floor plan on each plan’s page.

Sale: $1,785
 Need To Reverse Plan? (Optional)
$150
Readable Reverse

Reverse house plans with readable text and dimensions 

$150
  Select Foundation Option
  Add-Ons (Optional)
INCLUDED WITH YOUR PURCHASE

Free Ground shipping in the Continental U.S.

FREE

Design consultation with the architect or designer to discuss your plan

Home Building & Product Ideas Organizer

Sub Total
$0
Free Shipping
QUESTIONS OR NEED HELP ORDERING? LIVE CHAT OR CALL US AT 866-214-2242
Plan Packages

Each set of construction documents includes detailed, dimensioned floor plans, basic electric layouts, cross sections, roof details, cabinet layouts and elevations, as well as general IRC specifications. They contain virtually all of the information required to construct your home. The typical plan set does not include any plumbing, HVAC drawings, or engineering stamps due to the wide variety of specific needs, local codes, and climatic conditions. These details and specifications are easily obtained from your builder, contractors, and/or local engineers.

BEST PRICE GUARANTEE

find the same house plan (modifications included!) and package for less on another site, show us the URL and we'll give you the difference plus an additional 5% back.

100% SATISFACTION GUARANTEE

We offer a one-time, 30-day exchange policy for unused, non-electronic plan packages in the event you aren't satisfied with your first selection.

 
 

Plan 5764  Back to plan page

Loading...