Get discounts,
promos, see our
newest plans
and more!
+ 15% off any plan
See terms opt out anytime


No Thanks

Thanks for
signing up!


Use Code:

SIGNUP15

And save 15% off any plan!

Check your email for details.

CLOSE
Search Plans
Customer Reviews
     
20% off ALL House Plans Sitewide
20% off ALL House Plans Sitewide
20% off ALL House Plans Sitewide

Code: LOVE20
Sale ends midnight 2/15/2026 PST

The Twin Hills Open Floor Plan Craftsman Style House, Plan 7201

 
 

Sq Ft
1,801 FT²

Beds
3

Baths
2

Stories
1

Garage
2

Depth
57' 4"

Width
67'
On Sale
$1,040.00
$1,300.00
© copyright by designer
 View All 3 Images | Photographs may reflect modified home
Sq Ft
1,801 FT²
Beds
3
Baths
2
Stories
1
Garage
2
Depth
57' 4"
Width
67'
 
Click to Zoom In on Floor Plan
© copyright by designer
 
 

About This Plan

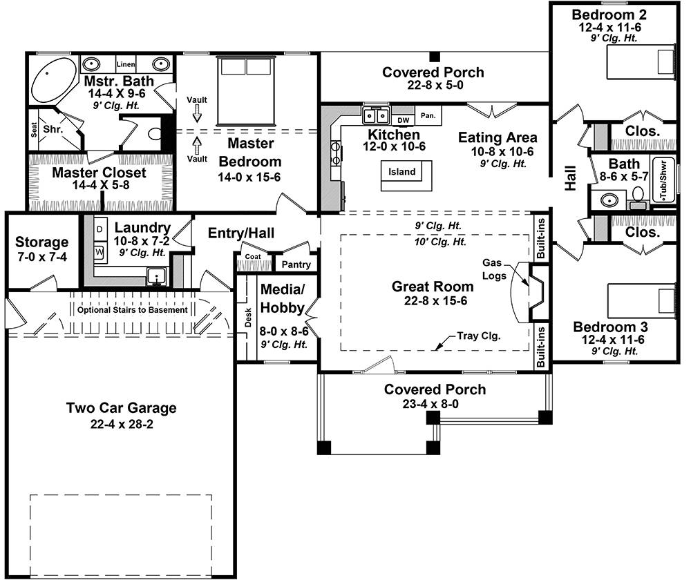
This inviting home has craftsman styling with upscale features. The front and rear covered porches add usable outdoor living space. Great room is vaulted with built in cabinets and gas fireplace. The spacious kitchen has an island with an eating bar. The master bedroom has a vaulted ceiling and opens into the well equipped bath with dual lavatories, corner tub, corner shower, and large walk in closet. There is a generous storage room off of the garage. There is a media room that would make a nice office or hobby space. This is a very flexible home with lots of options to choose from. 

See All Plan Options
 

FEATURES & DETAILS

Kitchen features
Kitchen Island
Nook / Breakfast Area
Peninsula / Eating Bar
Walk-in Pantry
Bedroom features
Double Vanity Sink
His and Hers Primary Closets
Primary Bdrm Main Floor
Split Bedrooms
Walk-in Closet
Exterior features
Covered Front Porch
Covered Rear Porch
Front Porch
Rear Porch
Foundation Options
Basement
Crawlspace
Slab
Additional features
Family Room
Fireplace
Great Room
Home Office
Laundry 1st Fl
Open Floor Plan
Storage Space
Garage Location
Front
Garage Options
Attached
Front-entry
Oversized
1,801 Ft
2
Total Heated
3
Bedrooms
2
Bathrooms
2
Garage
1
Stories
67' 0"
Width
57' 4"
Depth
22' 3"
Height
9' 0"
Main Floor Ceiling
2x4
Framing
Stick
Roof Framing
8/12
Primary Roof Pitch
Single
Dwelling Number
None
Bonus Access

Unheated Living Space
653 Ft
2
Garage
57 Ft
2
Storage
266 Ft
2
Porch
 

Plan Package Options

 Select Plan Package
 Need To Reverse Plan? (Optional)
  Select Foundation Option
  Add-Ons (Optional)
INCLUDED WITH YOUR PURCHASE

Free Ground shipping in the U.S.

FREE

Home Building & Product Ideas Organizer

Sub Total
$0
Free Shipping
QUESTIONS OR NEED HELP ORDERING? LIVE CHAT OR CALL US AT 866-214-2242
Plan Packages

Each set of construction documents includes detailed, dimensioned floor plans, basic electric layouts, cross sections, roof details, cabinet layouts and elevations, as well as general IRC specifications. They contain virtually all of the information required to construct your home. The typical plan set does not include any plumbing, HVAC drawings, or engineering stamps due to the wide variety of specific needs, local codes, and climatic conditions. These details and specifications are easily obtained from your builder, contractors, and/or local engineers.

BEST PRICE GUARANTEE

Find the same house plan (modifications included!) and package for less on another site, show us the URL and we'll give you the difference plus an additional 10% back.

100% SATISFACTION GUARANTEE

We offer a one-time, 30-day exchange policy for unused, printed plan packages in the event you aren't satisfied with your first selection.

 
 

Plan 7201  Back to plan page

Loading...