Get discounts,
promos, see our
newest plans
and more!
+ 15% off any plan
See terms opt out anytime


No Thanks

Thanks for
signing up!


Use Code:

SIGNUP15

And save 15% off any plan!

Check your email for details.

CLOSE
Search Plans
Customer Reviews
     
20% off ALL House Plans Sitewide
20% off ALL House Plans Sitewide
20% off ALL House Plans Sitewide

Code: HONOR20
Sale ends midnight 5/25/2026 PST

Sq Ft
2,274 FT²

Beds
4

Baths
2.5

Stories
2

Garage
2

Depth
47' 4"

Width
39'
On Sale
$1,036.00
$1,295.00
© copyright by architect
 View All 6 Images | Photographs may reflect modified home
Sq Ft
2,274 FT²
Beds
4
Baths
2.5
Stories
2
Garage
2
Depth
47' 4"
Width
39'
 
Click to Zoom In on Floor Plan
© copyright by architect
 
 

About This Plan

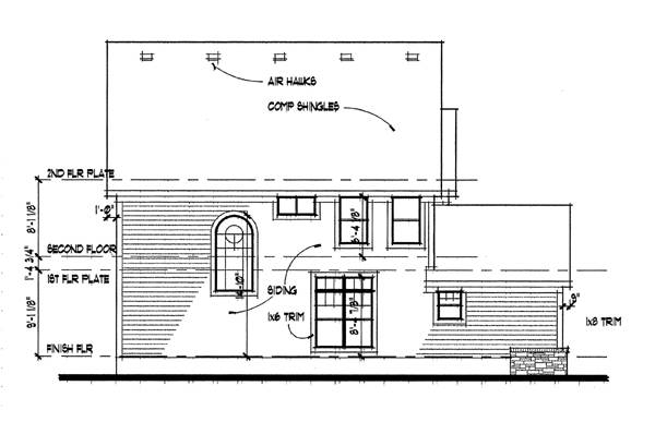
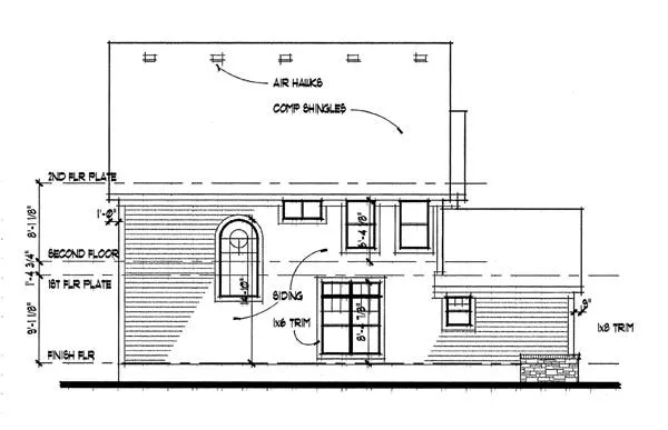
This plan features a unique front entrance. The main living spaces are open to one another, while still maintaining their integrity by the use of columns. An interesting Kitchen layout provides plenty of storage and counter space. A large Nook opens onto the covered porch making outdoor dining simple. The enormous second floor Master Suite and Bath are full of custom elements. 

See All Plan Options
 

FEATURES & DETAILS

Exterior features
Wraparound Porch
Foundation Options
Basement
Crawlspace
Slab
Walkout Basement
Lot Options
Suited for corner lot
Suited for narrow lot
Suited for sloping lot
Suited for view lot
Additional features
Home Office
Garage Location
Side
Garage Options
Detached
Front-entry
2,274 Ft
2
Total Heated
1,239 Ft
2
1st Floor
1,035 Ft
2
2nd Floor
4
Bedrooms
2.5
Bathrooms
2
Garage
2
Stories
39' 0"
Width
47' 4"
Depth
33' 2"
Height
9' 0"
Main Floor Ceiling
8' 0"
Upper Floor Ceiling
2x4
Framing
Stick
Roof Framing
12/12
Primary Roof Pitch
4:12
Porch Roof Pitch
Single
Dwelling Number

Unheated Living Space
484 Ft
2
Garage
327 Ft
2
Porch
19 Ft
2
Patio
 

Plan Package Options

 Select Plan Package
 Need To Reverse Plan? (Optional)
  Select Foundation Option
  Add-Ons (Optional)
INCLUDED WITH YOUR PURCHASE

Free Ground shipping in the U.S.

FREE

Home Building & Product Ideas Organizer

Sub Total
$0
Free Shipping
QUESTIONS OR NEED HELP ORDERING? LIVE CHAT OR CALL US AT 866-214-2242
Plan Packages

Each set of construction documents typically includes detailed, dimensioned floor plans, basic electric layouts, cross sections, roof details, cabinet layouts, and elevations, as well as general IRC specifications. Please refer to the ARCHITECT or DESIGNER’S PLAN DETAILS link above the floor plan on any plan page to determine the specific details for each plan. Our house plans contain virtually all of the information required to construct your home. The typical plan set does not include plumbing, HVAC drawings, or engineering stamps due to the wide variety of specific needs, local codes, and climatic conditions. These details and specifications are easily obtained from your builder, contractors, and/or local engineers.

BEST PRICE GUARANTEE

Find the same house plan (modifications included!) and package for less on another site, show us the URL and we'll give you the difference plus an additional 10% back.

100% SATISFACTION GUARANTEE

We offer a one-time, 30-day exchange policy for unused, printed plan packages in the event you aren't satisfied with your first selection.

 
 

Plan 5794  Back to plan page

Loading...