Get discounts,
promos, see our
newest plans
and more!
+ 15% off any plan
See terms opt out anytime


No Thanks

Thanks for
signing up!


Use Code:

SIGNUP15

And save 15% off any plan!

Check your email for details.

CLOSE
Search Plans
Customer Reviews
     
15% off ALL House Plans Sitewide
15% off ALL House Plans Sitewide
15% off ALL House Plans Sitewide

Code: HONOR
Sale ends midnight 5/29/2026 PST

Sq Ft
1,468 FT²

Beds
3

Baths
2

Stories
1.5

Garage
0

Depth
30'

Width
35'
On Sale
$1,283.50
$1,510.00
© copyright by designer
 View All 4 Images | Photographs may reflect modified home
Sq Ft
1,468 FT²
Beds
3
Baths
2
Stories
1.5
Garage
0
Depth
30'
Width
35'
 
Click to Zoom In on Floor Plan
© copyright by designer
 
 

About This Plan

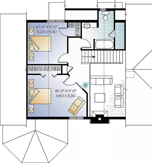
1st level: Closed foyer coat closet, family room with fireplace, eat-in kitchen, guest room with walk-in closet, laundry room, full bathroom
2nd Level: Master bedroom with sitting area, secondary bedroom, full bathroom, mezzanine.
 

See All Plan Options
 

FEATURES & DETAILS

Bedroom features
Primary Bdrm Main Floor
Walk-in Closet
Exterior features
Front Porch
Rear Porch
Screened Porch/Sunroom
Foundation Options
Basement
Crawlspace
Slab
Lot Options
Suited for corner lot
Suited for narrow lot
Suited for view lot
Additional features
Laundry 1st Fl
Vaulted Ceilings
Garage Location
None
Garage Options
None
1,468 Ft
2
Total Heated
958 Ft
2
1st Floor
510 Ft
2
2nd Floor
3
Bedrooms
2
Bathrooms
0
Garage
1.5
Stories
35' 0"
Width
30' 0"
Depth
26' 2"
Height
8' 0"
Main Floor Ceiling
8' 0"
Upper Floor Ceiling
2x6
Framing
Truss
Roof Framing
10
Primary Roof Pitch
10
Gable Roof Pitch
10
Porch Roof Pitch
Single
Dwelling Number
None
Bonus Access

Unheated Living Space
 

Plan Package Options

 Select Plan Package
 Need To Reverse Plan? (Optional)
  Select Foundation Option
  Add-Ons (Optional)
INCLUDED WITH YOUR PURCHASE

Free Ground shipping in the U.S.

FREE

Home Building & Product Ideas Organizer

Sub Total
$0
Free Shipping
Please allow 3-5 business days for delivery of this plan Please check our PDFs NOW collection for plans that can be downloaded and received immediately or live chat us to help you find a similar plan available now.
QUESTIONS OR NEED HELP ORDERING? LIVE CHAT OR CALL US AT 866-214-2242
Plan Packages

Each set of construction documents typically includes detailed, dimensioned floor plans, basic electric layouts, cross sections, roof details, cabinet layouts, and elevations, as well as general IRC specifications. Please refer to the ARCHITECT or DESIGNER’S PLAN DETAILS link above the floor plan on any plan page to determine the specific details for each plan. Our house plans contain virtually all of the information required to construct your home. The typical plan set does not include plumbing, HVAC drawings, or engineering stamps due to the wide variety of specific needs, local codes, and climatic conditions. These details and specifications are easily obtained from your builder, contractors, and/or local engineers.

BEST PRICE GUARANTEE

Find the same house plan (modifications included!) and package for less on another site, show us the URL and we'll give you the difference plus an additional 10% back.

100% SATISFACTION GUARANTEE

We offer a one-time, 30-day exchange policy for unused, printed plan packages in the event you aren't satisfied with your first selection.

 
 

Plan 1483  Back to plan page

Loading...