Get discounts,
promos, see our
newest plans
and more!
+ 15% off any plan
See terms opt out anytime


No Thanks

Thanks for
signing up!


Use Code:

SIGNUP15

And save 15% off any plan!

Check your email for details.

CLOSE
Search Plans
Customer Reviews
     
15% Off House Plans Sitewide Ends Sunday

Code: SAVE15
Sale ends midnight 2/8/2026 PST

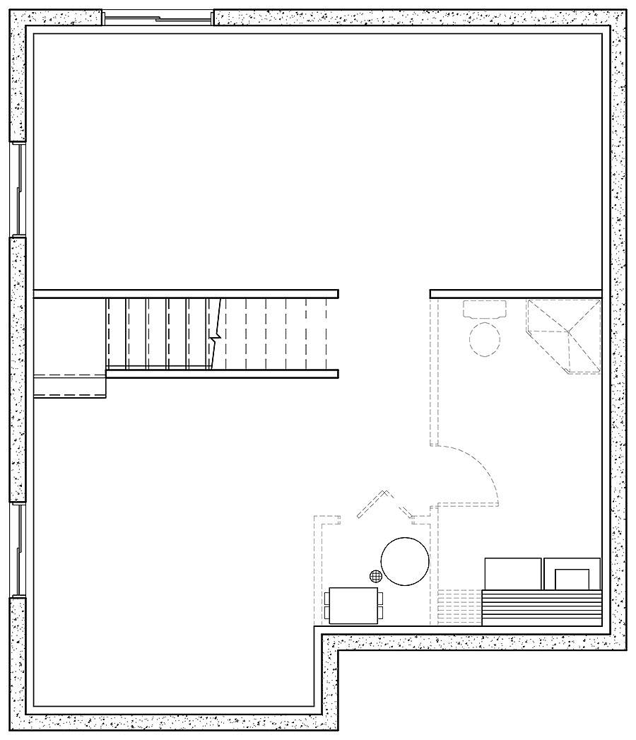
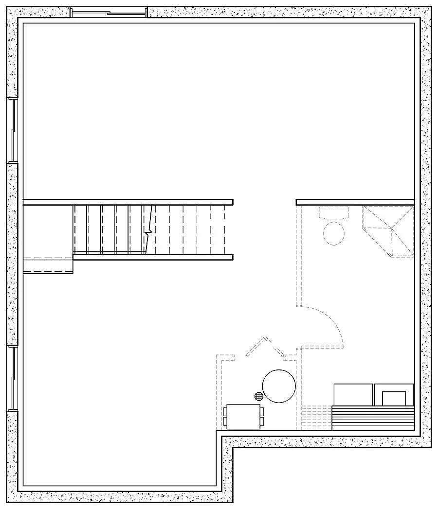
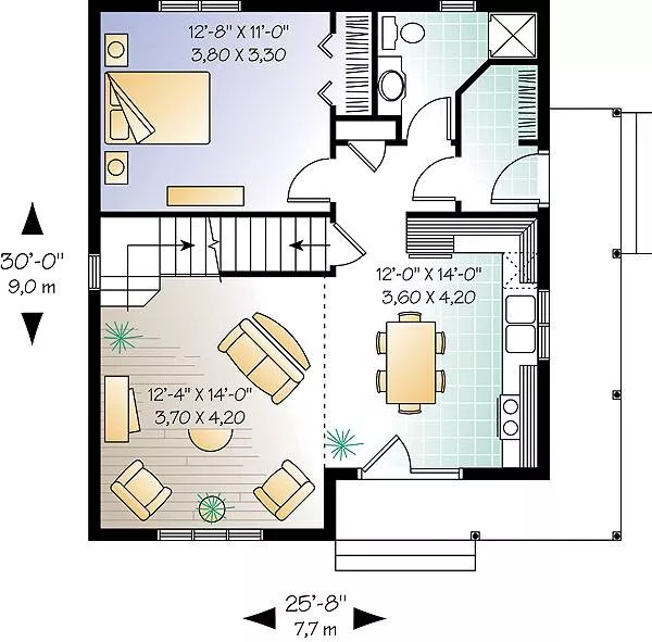
Celeste 2 - 3 Bedroom Cottage Style House, Plan 1151

 
 

Sq Ft
1,168 FT²

Beds
3

Baths
2

Stories
1.5

Garage
0

Depth
30'

Width
25' 8"
From
$1,500.00
© copyright by designer
 View All 5 Images | Photographs may reflect modified home
Sq Ft
1,168 FT²
Beds
3
Baths
2
Stories
1.5
Garage
0
Depth
30'
Width
25' 8"
 
Click to Zoom In on Floor Plan
© copyright by designer
 
 

About This Plan

Cozy and quaint cottage style 1,168 sqft two level house it just the right layout for a small family. The dedicated dual entry foyer is ideal for keeping the inclement weather from entering the home. The combination kitchen and dining area is open to the main living area with two story ceiling which makes the home feel spacious. The master suite is located on the main floor with 2 additional sleeping areas upstairs.  

See All Plan Options
 

FEATURES & DETAILS

Kitchen features
Country Kitchen
Bedroom features
Primary Bdrm Main Floor
Walk-in Closet
Exterior features
Covered Front Porch
Wraparound Porch
Foundation Options
Basement
Crawlspace
Slab
Lot Options
Suited for narrow lot
Additional features
Formal LR
Loft / Balcony
Mud Room
Open Floor Plan
Unfinished Space
Vaulted Ceilings
Garage Location
None
Garage Options
None
1,168 Ft
2
Total Heated
730 Ft
2
1st Floor
438 Ft
2
2nd Floor
730 Ft
2
Lower Floor
3
Bedrooms
2
Bathrooms
0
Garage
1.5
Stories
25' 8"
Width
30' 0"
Depth
25' 8"
Height
8' 0"
Main Floor Ceiling
8' 0"
Upper Floor Ceiling
2x6
Framing
Truss
Roof Framing
12
Primary Roof Pitch
5
Porch Roof Pitch
Single
Dwelling Number
None
Bonus Access

Unheated Living Space
 

Plan Package Options

 Select Plan Package
 Need To Reverse Plan? (Optional)
  Select Foundation Option
  Add-Ons (Optional)
INCLUDED WITH YOUR PURCHASE

Free Ground shipping in the U.S.

FREE

Home Building & Product Ideas Organizer

Sub Total
$0
Free Shipping
Please allow 3-5 business days for delivery of this plan Please check our PDFs NOW collection for plans that can be downloaded and received immediately or live chat us to help you find a similar plan available now.
QUESTIONS OR NEED HELP ORDERING? LIVE CHAT OR CALL US AT 866-214-2242
Plan Packages

Each set of construction documents includes detailed, dimensioned floor plans, basic electric layouts, cross sections, roof details, cabinet layouts and elevations, as well as general IRC specifications. They contain virtually all of the information required to construct your home. The typical plan set does not include any plumbing, HVAC drawings, or engineering stamps due to the wide variety of specific needs, local codes, and climatic conditions. These details and specifications are easily obtained from your builder, contractors, and/or local engineers.

BEST PRICE GUARANTEE

Find the same house plan (modifications included!) and package for less on another site, show us the URL and we'll give you the difference plus an additional 10% back.

100% SATISFACTION GUARANTEE

We offer a one-time, 30-day exchange policy for unused, printed plan packages in the event you aren't satisfied with your first selection.

 
 

Plan 1151  Back to plan page

Loading...