Get discounts,
promos, see our
newest plans
and more!
+ 15% off any plan
See terms opt out anytime


No Thanks

Thanks for
signing up!


Use Code:

SIGNUP15

And save 15% off any plan!

Check your email for details.

CLOSE
Search Plans
Customer Reviews
     
15% off ALL House Plans Sitewide
15% off ALL House Plans Sitewide
15% off ALL House Plans Sitewide

Code: SAVE15
Sale ends midnight 4/12/2026 PST

The Celeste 3 Efficient Farm House Style House, Plan 1197

 
 

Sq Ft
1,226 FT²

Beds
2

Baths
2

Stories
1.5

Garage
0

Depth
32'

Width
26'
On Sale
$1,283.50
$1,510.00
© copyright by designer
 View All 7 Images | Photographs may reflect modified home
Sq Ft
1,226 FT²
Beds
2
Baths
2
Stories
1.5
Garage
0
Depth
32'
Width
26'
 
Click to Zoom In on Floor Plan
© copyright by designer
 
 

About This Plan

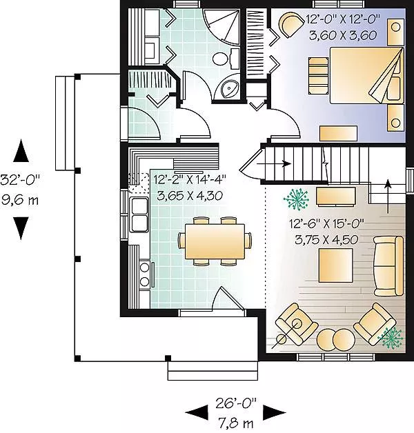
Simplicity and versatility are what make this farmhouse style plan so popular. Pictured in just a few of the many exterior varieties that it can come in, this 1,226 square foot home can be modified in countless ways to make it a unique expression of you. Two bedrooms and 2 bathrooms can be found amongst the 2 stories of this home, making it a wonderful option for a new family. And the reduced footprint of the layout allows this home to be built on virtually any lot size. A wraparound covered front porch adorns the front of the home as you move inside. Two separate entryways are also featured here, one in to the foyer by the master bed and bath, and one in to the dining room and spacious kitchen. A large family room ties this space together and is great for bringing everyone together. The second floor of this home provides a secondary bedroom and full bathroom, as well as another family room that looks down on the one below. This clever use of space ensures that this home is intimate yet also private, allowing for maximum enjoyment no matter the setting.

  

See All Plan Options
 

FEATURES & DETAILS

Bedroom features
Primary Bdrm Main Floor
Exterior features
Covered Front Porch
Front Porch
Wraparound Porch
Foundation Options
Basement
Crawlspace
Slab
Lot Options
Suited for narrow lot
Suited for view lot
Additional features
Family Room
Great Room
Laundry 1st Fl
Open Floor Plan
Vaulted Ceilings
Garage Options
None
1,226 Ft
2
Total Heated
783 Ft
2
1st Floor
443 Ft
2
2nd Floor
2
Bedrooms
2
Bathrooms
0
Garage
1.5
Stories
26' 0"
Width
32' 0"
Depth
25' 10"
Height
8' 0"
Main Floor Ceiling
8' 0"
Upper Floor Ceiling
2x6
Framing
Truss
Roof Framing
12/12
Primary Roof Pitch
12/12
Dormer Roof Pitch
5/12
Porch Roof Pitch
Single
Dwelling Number
None
Bonus Access

Unheated Living Space
 

Plan Package Options

 Select Plan Package
 Need To Reverse Plan? (Optional)
  Select Foundation Option
  Add-Ons (Optional)
INCLUDED WITH YOUR PURCHASE

Free Ground shipping in the U.S.

FREE

Home Building & Product Ideas Organizer

Sub Total
$0
Free Shipping
Please allow 3-5 business days for delivery of this plan Please check our PDFs NOW collection for plans that can be downloaded and received immediately or live chat us to help you find a similar plan available now.
QUESTIONS OR NEED HELP ORDERING? LIVE CHAT OR CALL US AT 866-214-2242
Plan Packages

Each set of construction documents includes detailed, dimensioned floor plans, basic electric layouts, cross sections, roof details, cabinet layouts and elevations, as well as general IRC specifications. They contain virtually all of the information required to construct your home. The typical plan set does not include any plumbing, HVAC drawings, or engineering stamps due to the wide variety of specific needs, local codes, and climatic conditions. These details and specifications are easily obtained from your builder, contractors, and/or local engineers.

BEST PRICE GUARANTEE

Find the same house plan (modifications included!) and package for less on another site, show us the URL and we'll give you the difference plus an additional 10% back.

100% SATISFACTION GUARANTEE

We offer a one-time, 30-day exchange policy for unused, printed plan packages in the event you aren't satisfied with your first selection.

 
 

Plan 1197  Back to plan page

Loading...